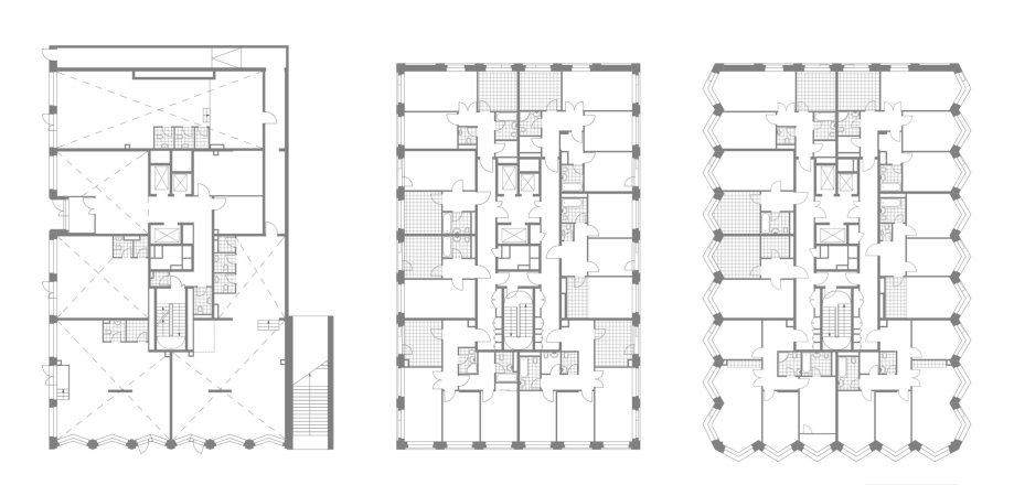
Общая структура «Ривер Парка» представляется исключительно удачной. Это три квартала с разомкнутым контуром. То есть каждый квартал состоит из трех отдельных домов, проход между домами есть, но воспринимаются они как единый квартал.
Причем здесь применен театральный принцип. Три стены у квартала есть: задник и две кулисы, а передней стенки нет, и перед зрителями, плывущими на речных трамвайчиках или гуляющими по нижней набережной, раскрываются как бы три сцены. Потому что дворы кварталов подняты на стилобаты, а под стилобатами, разумеется, спрятаны парковки. Но со стилобатов можно спуститься по двум лестницам, слева и справа от двора, то есть как бы со сцены в зал, на очень уютную набережную. Часть набережной, примыкающую к жилому комплексу, также спроектировало бюро ADM.
Кварталы разделены проездами, которые одновременно служат общественными бульварами, открытыми, как и набережная, для горожан: по ним можно попасть из западной части комплекса и от старого микрорайона, от Судостроительной улицы, к берегу затона. Но над проездами переброшены пешеходные мостики, соединяющие кварталы в верхнем уровне приватных дворов и предназначенные только для жителей.
Пешеходные мосты – предмет гордости архитекторов. Они начинаются в квадратных арках бежевых корпусов и соединяют их с проходом между домами следующего квартала. Таким образом жители «Ривер Парка» и их дети могут перемещаться внутри трех кварталов по второму ярусу, не спускаясь на проезжую часть и не пересекаясь с общегородским пространством.
Дворы, как и кварталы в целом, организованы весьма театрально. Выход во дворы на подиумах осуществляется из высоких лобби. Во дворах высажены сосны (глубину грунта архитекторы специально предусмотрели достаточную для корней деревьев), устроены детские площадки, а ближе к набережной – зоны для барбекю. И даже установлено соответствующее оборудование. Самые эффектные элементы дворов – так называемые сандеки (sundeck – солнечная терраса по-английски) – стеклянные мостики с деревянными настилами, вынесенные над набережной, на которых стоят шезлонги, чтобы греться на солнышке и загорать. Это не мосты в полном смысле слова, они никуда не ведут, но, как в парке Зарядье, делают петлю. По ним можно совершить обход по кругу, по треугольнику или по каре – в каждом дворе своя форма солнечной террасы. И смысл их, по мнению Андрея Романова, в том, чтобы приблизиться к воде. Это трансгрессия полуприватного пространства жителей в город – по сути, выходы к рампе.
Взаимопроникновение дворов и набережной, полуприватных зон и публичного пространства – это интересный подход. С одной стороны, возникает визуальный контакт между жителями и городской публикой, с другой стороны – фактическое проникновение посторонних людей с набережной во двор невозможно, а наоборот – пожалуйста (через прозрачную ограду владельцам квартир «Ривер Парка» доступен проход по карточке). Есть еще и частные пространства стеклянных террас – полностью приватных пространств. Иерархия частных, полуприватных и публичных пространств выстроена со всем вниманием.
Если продолжить театральные ассоциации, то набережная играет роль оркестровой ямы. В любом случае многоуровневый город в таком изводе – это находка Андрея Романова. Даже если бы дома не обладали индивидуальной, тщательно разработанной пластикой, одной структуры бы хватило для успешной организации комплекса. Но дома разные и по-своему примечательные.
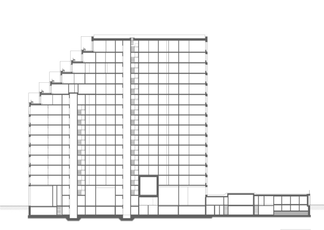
Мы применили в «Ривер Парке» три типа домов. Первый тип – красная башня. Фасад строится так: здание начинается от простой сетки и переходит к складчатой фактуре. Эркеры наверху объемные, а внизу они как бы растворяются в плоскости стены. Таких башен у нас три, они выступают к набережной. Второй тип – бежевый ступенчатый дом, на котором мы по просьбе заказчика сделали каскад террас, выходящих на воду. Таких домов тоже три. Третий тип – корпуса с набегающими эркерами, которые стоят в глубине. Здесь использован тот же принцип постепенного наращивания объема эркеров к верхним этажам, но в отличие от башен это происходит асимметрично, придавая динамику фасаду.
Так возник четко структурированный ритм объемов: вертикальные красные корпуса, раскрывающиеся кверху похожей на цветок «гармошкой» – и горизонтальные светлые корпуса, чей торец решительно срезан террасами, представляют два полюса, две противоположности. Дальний корпус связывает их как фон – отчасти впитывая все приемы, он становится переходом-перемычкой, примиряющей два полюса. Между тем если смотреть с противоположного берега затона, чередование читается как очень определенное, построение – как на парад.
Жилой комплекс «Ривер парк»: кварталы 1-3
Фотография © Ярослав Лукьянченко / предоставлена ADM
Жилой комплекс «Ривер парк»: кварталы 1-3
Фотография © Ярослав Лукьянченко / предоставлена ADM
Пластика красных корпусов особенно интересна. В нижних этажах треугольный контур окон углублен, а лопатки выступают углом – фасад получает зигзагообразный контур. Посередине плоскости простенков и окон выравниваются, а вверху угол окон, этаж за этажом, всё сильнее выступает вперед. Таким образом, если смотреть снизу вверх, мы наблюдаем поступательную инверсию объемов.
Решение поддержано незначительным изменением планов квартир от этажа к этажу – что надо признать одним их любимых приемов ADM architects. В этом приеме есть, однако, что-то родственное крепостной башне – этакому донжону, который «сторожит» квартал на каждом «внешнем» углу, южном, обращенном к городу.
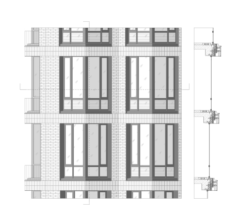
Построение красных корпусов строго-сетчато, углы «закреплены» кирпичными лопатками. В светлых корпусах окна объединены попарно по горизонтали затемненным и углубленным простенком с «деревянной» фактурой. Но лент окна не образуют – скорее мы видим узор крупного зигзага, особенно на углах, где чередуются стеклянные углы и углы с кирпичным контуром. Кажется, что зигзаги вторят террасам на торцах корпусов: дома как будто бы на наших глазах «раскрываются» к реке, уступают, минимизируют материальность своего силуэта.
Террасы, размещенные на пяти этажах, с одиннадцатого по шестнадцатый, – безусловно выигрышное решение. Они достаточно просторны, с них открывается вид на воду и городскую панораму.
Жилой комплекс «Ривер парк»: кварталы 1-3
Фотография © Ярослав Лукьянченко / предоставлена ADM
Торцы светлых корпусов разделены на две половины, террасы слева и справа смещены так, чтобы с одной не было видно другую, что делает пространство приватным, сродни тому, что мы привыкли ожидать от дачного или курортного домика – весь силуэт, конечно же, напоминает о Средиземноморье. Ограждения – стеклянные безимпостные, деликатно обеспечивают безопасность, не вторгаясь в панораму. Террасы оказались востребованы, и квартиры с ними были проданы очень быстро.
У бюро ADM большой опыт «тактильных» кирпичных фасадов для клубных домов в центре Москвы, и здесь он применен в полной мере в несколько более массовом, хотя и высокого класса, жилье. Все фасады облицованы клинкером Hagemeister. Красные башни чередуются с бежевыми, те и другие фасады не монохромны, а являются миксами благородных оттенков. Корпуса, расположенные в глубине, высветляются снизу наверх от коричневого к песочному цвету.
Во многих квартирах есть французские окна до пола с металлическими оградами. Там, где окна обычные, все ажурные металлические решетки в нижней части окон, маскирующие кондиционеры, выполнены по авторским рисункам. Некоторые вертикальные простенки воспроизводят деревянные панели. Все это вместе создает интересную для рассматривания, хорошо детализированную поверхность, а применение натурального долговечного клинкера вместе с ясно артикулированной структурой и другими авторскими идеями обещает архитектуре «Ривер Парка» долгую жизнь.




