ЖК River Park Towers Кутузовский. Общий вид с реки через мост
© ADM
Образ пяти стеклянных башен с эркерами и террасами, обращенными к реке, мы нашли практически сразу, в первых эскизах. Затем были поиски, сомнения, но в конечном счете было решено вернуться к первоначальной идее, с «чешуей» эркеров и террас в средней части и плавным скруглением вверху, где дома как будто обточены ветром с реки. Заказчик принял идею. Мы не впервые работаем с AEON, этот девелопер всегда очень ответственно относится к качеству реализации, надеемся, что результат получится впечатляющим.
В целом я считаю River Park Towers одним из наших лучших проектов. Именно здесь мы впервые начали работать с пластикой высотных стеклянных объемов; Fili II и Летниковская появились позднее. Сейчас мы считаем типологию башен наиболее выигрышной и правильной. Пластическую задачу при их проектировании я бы описал как двухсоставную: вначале мы лепим форму и работаем над силуэтом – затем добавляем пластику эркеров. Подход соответствует нашему темпераменту – я, к примеру, не считаю, что стеклянные башни должны быть обязательно прямыми, мне нравится, когда есть какая-то дополнительная интрига, скульптурность.
В целом я считаю River Park Towers одним из наших лучших проектов. Именно здесь мы впервые начали работать с пластикой высотных стеклянных объемов; Fili II и Летниковская появились позднее. Сейчас мы считаем типологию башен наиболее выигрышной и правильной. Пластическую задачу при их проектировании я бы описал как двухсоставную: вначале мы лепим форму и работаем над силуэтом – затем добавляем пластику эркеров. Подход соответствует нашему темпераменту – я, к примеру, не считаю, что стеклянные башни должны быть обязательно прямыми, мне нравится, когда есть какая-то дополнительная интрига, скульптурность.
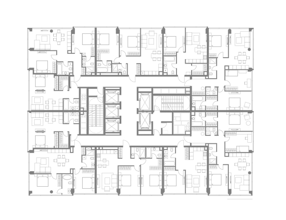
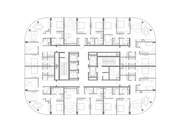
Итак, пять жилых башен высотой 180 м каждая, в плане – прямоугольники, стремящиеся к квадрату, расставлены в восточной, самый выигрышной части территории, у реки: три дома ближе к берегу, два чуть в глубине. В западной части треугольной в плане территории планируется детский центр.
ЖК River Park Towers Кутузовский. Ситиплан
© ADM
Башни развернуты диагонально, так что углы ориентированы приблизительно по странам света, что в данном случае позволяет уловить максимум речных видов и лучшие из окружающих панорам, которые в последние годы все более прирастают высотными акцентами (окрестности можно рассмотреть на риелторском сайте).
Пять высоток объединены стилобатом, который помогает нивелировать перепад высот, со стороны реки его высота – около 7 метров, со стороны города меньше, но место для зигзагообразного фронта витрин, чьи линии вторят направлениям фасадов башен, остается. В стилобат встроены фитнес-центр, супермаркет, так же как и магазины и кафе поменьше. Вокруг образуются небольшие городские площади, запланированы гостевые парковки для посетителей. Приватный двор расположен на кровле стилобата; благоустройством занимается WEST 8 Адриана Гёзе, предусмотрены крупноразмерные деревья.
ЖК River Park Towers Кутузовский
© ADM / предоставлено AEON
ЖК River Park Towers Кутузовский
© ADM / предоставлено AEON
Башни слегка различаются как компоновкой деталей, так и разворотом, с разных ракурсов одни оказываются чуть стройнее, другие чуть шире. Но в целом они очень похожи друг на друга – не как сестры даже, а как сестры-близнецы – и образуют «стайку» стеклянных высоток, которая, если посмотреть на ближайших соседей, в большей степени созвучна ММДЦ, чем ЖК Headliner. С соседями «речные башни Кутузовского» перекликаются высотностью и блеском стекла, но отличаются большей равномерностью силуэта: здесь нет главного высотного акцента, который собирал бы остальные объемы вокруг себя, нет и внезапных тонких «всплесков» – группа пяти башен с разных точек выглядит примерно одинаково, играя лишь нюансами восприятия. В этом смысле их можно сравнить с речной водой, над которой башни, собственно, и возвышаются: ее поверхность в целом одинакова, но время от времени оживляется рябью, и в результате, как известно, на воду можно смотреть бесконечно.
ЖК River Park Towers Кутузовский. Общий вид с ЖД путей
© ADM
ЖК River Park Towers Кутузовский
© ADM
ЖК River Park Towers Кутузовский. Общий вид с реки
© ADM
Объемная «рябь» на стеклянных фасадах образуется следующим образом. В нижней части башни прямоугольные и расчерчены сеткой горизонтальных пропорций: принцип построения рисунка можно сравнить с кирпичной кладкой ложкового типа, где стык двух прямоугольников приходится на середину прямоугольника верхнего и нижнего ряда – здесь, однако, тонкие алюминиевые контуры обрамляют роскошные стекла-витражи, лишенные внутренних переплетов: по два квадратных стекла 3 х 3 метра на прямоугольник.
Стекла разделены и обрамлены тонкими полосками форточек, в которые также встроена система забора воздуха, индивидуальная для каждой квартиры и совмещенная с системой центрального кондиционирования, что тоже надо признать дорогим решением, по словам архитекторов, еще недавно оно было более характерно для домов не столько премиального, сколько элитного класса. Темные узкие форточки и светлые обрамления складываются в тонкую сетку, отдавая безусловный приоритет главному «игроку» – стеклянным поверхностям.
Выше – где-то начиная со второго этажа, а где-то с одиннадцатого, – сетка приобретает объем: прямоугольники выдвигаются вперед эркерами, поначалу слегка, затем сильнее, до 2.5 метров выноса. Возникает ощущение деконструкции объема, он как будто производит некую трансформацию у нас на глазах, раскладывается на элементы, раздвигается, претендуя на экспансию во внешнее пространство. Но сдерживает подвижность формы, поскольку вскоре – этажа где-то с пятнадцатого, где-то с двадцать пятого – собирается обратно. И не просто собирается, а усиливает компактность: скругление углов плавно нарастает, форма приобретает аэродинамическую обтекаемость, логичную для 150-метровой высоты.
ЖК River Park Towers Кутузовский
© ADM
ЖК River Park Towers Кутузовский
© ADM
На выступах эркеров образуются балконы-террасы верхних квартир. Они в основном группируются со стороны реки. Именно «речные» террасы – признаются Андрей Романов и Екатерина Кузнецова – стали смысловым импульсом и причиной возникновения предложенной пластики стеклянных башен.
Дело в том, что для того же заказчика, AEON, ADM architects уже спроектировали и отчасти реализовали комплекс Ривер Парк 2 в Нагатинском затоне, опробовав там как пластику террас с видом на воду, так и рыночный спрос на квартиры с террасами. Вопреки первоначальным опасениям спрос оказался хорошим и квартиры с террасами были проданы раньше других. Это дало уверенность и девелоперам, и архитекторам – следующим шагом стали стеклянные башни с террасами.
Несложно заметить, что террасы в Нагатино – часть архитектуры с совершенно иными свойствами, менее высотной, но подчиненной более отчетливой, резко очерченной форме. Однако между двумя проектами можно обнаружить и переклички: к примеру, дома с террасами Ривер Парка 2 используют подобную же горизонтально ориентированную сетку светлых рамок – хотя здесь она приобрела новый лоск. Если эркеры на Кутузовском можно было бы, по старой привычке, сравнить с «телевизорами», то – «жидкокристаллическими с плоским экраном», это своего рода лидер рынка.
ЖК River Park Towers Кутузовский
© ADM
ЖК River Park Towers Кутузовский
© ADM
Кровли всех башен – эксплуатируемые и будут доступны для жильцов каждого дома. Они окружены прозрачным 7-метровым экраном, на них планируется установить купола, которые можно будет использовать для проведения отдельных праздников и защиты от дождя и ветра.
ЖК River Park Towers Кутузовский
© ADM
Таким образом городские променады и миниплощади, которые должны образоваться вокруг; приватный, но общий для всех башен двор на кровле стилобата и эксплуатируемые кровли высоток образуют логичную и развитую иерархию общественных пространств внутри комплекса. С видом на город с 180-метровой высоты в качестве «вишенки на торте».
Между тем жители верхних этажей-пентхаусов, которым эти виды будут доступны постоянно, получат также и 6-метровую высоту потолков, которая позволяет разделить квартиру на два уровня или же просто наслаждаться простором над головой.
В целом же пластика башен предстает высокотехнологичной «результирующей» стремления архитекторов к стройному силуэту, эффектному стеклянному блеску и актуальной пластике – и рыночных преимуществ, которые стартуют от главного преимущества, соседства реки, и желания раскрыть и максимально использовать самые выигрышные панорамы, и воплощаются в люксовом остеклении и внушительной высотности, впрочем для контекста проектов сегодняшней Москвы – даже и не слишком большой.




