Аграрный экспо- и конференц-центр дельты Хуанхэ
Фото © ZY Studio
Поэтому выставочный центр на юге города оказался еще в момент строительства окружен многоквартирными домами – как непосредственно, так через проходящую с севера магистраль; рядом также возвели образовательный комплекс. Поэтому архитекторы постарались придать его фасадам разнообразие, далеко не всегда свойственное таким сооружениям, а также окружить общественными пространствами (в том числе озелененными), площадками для фермерских рынков и проведения праздников.
Аграрный экспо- и конференц-центр дельты Хуанхэ
Фото © ZY Studio
Ключевым фасадом стал северный, обращенный к городу. Здесь архитекторы вдохновлялись пенящимися волнами Бохайского залива, хотя в больших серебристых сегментах можно увидеть и мотив вееров.
Главенствующей по функции стала восточная сторона – с главным входом и площадью перед ним, выходящими к другой оживленной дороге и озеру за ней. Здесь протяженный фасад упорядочили с помощью Л-образных опор, а золотистым алюминиевым панелям придали «тканую» фактуру – это отсылка к традиционным ремеслам. Еще одно народное искусство, тонкого вырезания узоров и фигурок из бумаги, вдохновило ажурные фасады меньших выставочных залов.
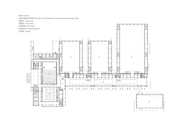
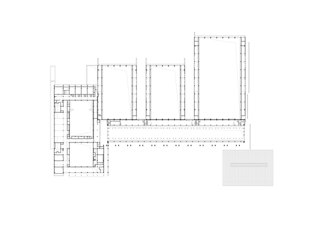
Общая площадь комплекса превышает 100 тыс. м2. Главной коммуникационной осью служит вытянутый Центральный зал высотой около 24 м, с верхним светом и наклонными опорами. Он объединяет самый крупный зал (10 тыс. м2), два средних по 5 тыс. м2, малый (3 тыс. м2), а также конференц-центр. Все пространства связаны между собой дополнительными коридорами, что позволяет использовать их в разных сочетаниях, тем более что здесь проводят не только агро-выставки, но и съезды депутатов.
Аграрный экспо- и конференц-центр дельты Хуанхэ
Фото © ZY Studio
Аграрный экспо- и конференц-центр дельты Хуанхэ
Фото © ZY Studio
Аграрный экспо- и конференц-центр дельты Хуанхэ
Фото © ZY Studio
Аграрный экспо- и конференц-центр дельты Хуанхэ
Фото © ZY Studio
Аграрный экспо- и конференц-центр дельты Хуанхэ
Фото © ZY Studio
