Спорткомплекс Хэси Шаосинского университета
Фото © Zhao Qiang
Поэтому на новый спортивный центр в дополнение к имеющимся было выделено не так много места: участок, ограниченный двумя улицами и рекой.
Спорткомплекс Хэси Шаосинского университета
Фото © Zhao Qiang
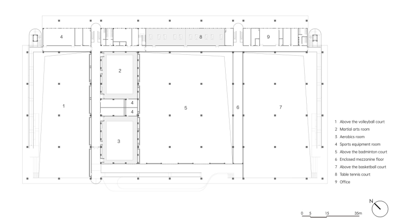
Поэтому футбольное поле решено было водрузить на крышу, а под ней разместить меньшие спортивные зоны. Архитекторы стремились, помимо основной задачи, создать также и общественные пространства – как укрытие от палящего солнца или ливня, но также и для привлечения горожан к спортивным занятиям – хотя бы в роли зрителей.
Спорткомплекс Хэси Шаосинского университета
Фото © Zhao Qiang
Так получился полуоткрытый первый этаж с эффектными бетонными арками и сводами, вторящими окружающим сооружение деревьям (на кровле они также высажены).
Спорткомплекс Хэси Шаосинского университета
Фото © Zhao Qiang
С торцов размещены баскетбольные и волейбольные площадки, 50-метровая беговая дорожка: по сути они продолжение пространства города. В центре стеклянными выгородками отделены требующие микроклимата зоны для занятий тяжелой атлетикой, боевыми искусствами, игры в бадминтон и теннис.
Пандус с оградой из перфорированных листов алюминия позволяет удобно перемещаться между уровнями. Рекреационные зоны, трибуны и так далее оформлены темным деревом, широко использована темно-зеленая глазурованная плитка.
Спорткомплекс Хэси Шаосинского университета
Фото © Zhao Qiang
Спорткомплекс Хэси Шаосинского университета
Фото © Zhao Qiang
Спорткомплекс Хэси Шаосинского университета
Фото © Zhao Qiang
