Спортивный центр Фуян-Иньху
Фото © Zhao Qiang
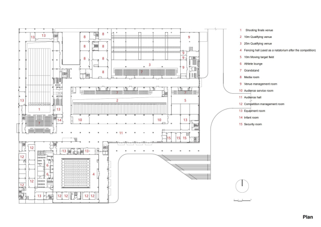
Поэтому авторы проекта из Архитектурного проектно-исследовательского института Чжэцзянского университета (UAD) постарались создать запоминающиеся сооружения и при этом учесть их судьбу после игр. Так, вместо требующих длительной подготовки и высокого мастерства стрельбы, стрельбы из лука и современного пятиборья, куда входят конкур и фехтование (здесь будут проходить именно эти соревнования) после 2023-го жители Ханчжоу смогут заняться здесь плаванием, настольным теннисом, бадминтоном, баскетболом – гораздо более популярными и демократичными видами спорта.
Спортивный центр Фуян-Иньху
Фото © Zhao Qiang
Чтобы облегчить процесс перестройки и демонтажа, все сооружения получили лаконичную планировку и простые конструктивные схемы. Однако было важным дать им выразительный облик. Так возник многочастный профиль крыш и, главное, необычный фасад. Спортивный центр расположен в знаменитых своей красотой горах Фучань у одноименной реки. В средние века эти виды привлекали многих художников, а самым известным их изображением стал свиток «Обитая в горах Фучань» Хуан Гунвана.
Спортивный центр Фуян-Иньху
Фото © Zhao Qiang
Именно его архитекторы перенесли на фасады спорткомплекса, применив популярный прием пикселизации. Так как характер проекта не позволял использования высокотехнологических решений, изображение передано с помощью подвижных панелей размером 30х52 см общим количеством 37 тыс. штук. Они фиксируются на вертикальных стержнях с шагом в 5 ° с «размахом» 15–85 градусов. Изображение возникает за счет игры светотени, точнее, четких теней, падающих при ярком освещении – естественном или искусственном – на установленные под разным углом панели из сплава алюминия.
Спортивный центр Фуян-Иньху
Фото © Zhao Qiang
Спортивный центр Фуян-Иньху
Фото © Zhao Qiang
Спортивный центр Фуян-Иньху
Фото © Zhao Qiang
Спортивный центр Фуян-Иньху
Фото © Zhao Qiang
Спортивный центр Фуян-Иньху
Фото © Zhao Qiang
Спортивный центр Фуян-Иньху
Фото © Zhao Qiang
Спортивный центр Фуян-Иньху
Фото © Zhao Qiang
Спортивный центр Фуян-Иньху
Фото © Zhao Qiang
Спортивный центр Фуян-Иньху
© Zhao Qiang + UAD
