Две башни в комплексе De Zalmhaven
Фото © Sebastian van Damme
У северного конца моста Эразма в наши дни возвели жилой комплекс, в состав которого входит самая высокая постройка Нидерландов – башня высотой 215 м авторства Dam & Partners Architecten. Рядом с ней построены две 70-метровые (23 этажа) башни с 4-этажным подиумом. Ими и занимались KAAN Architecten.
Две башни в комплексе De Zalmhaven
Фото © Sebastian van Damme
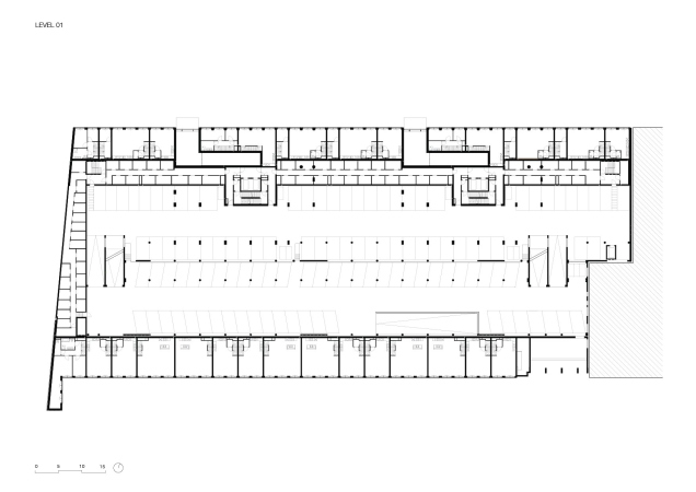
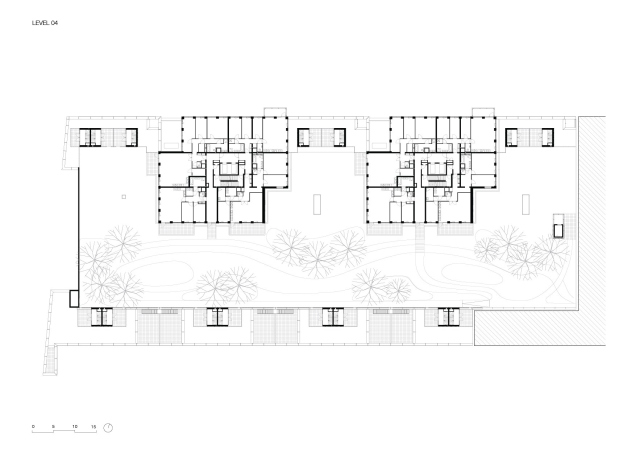
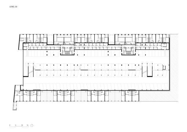
В их части комплекса собраны 196 квартир и 33 таунхауса, которые вытянулись вдоль длинных сторон подиума, в центре которого – гараж на 457 машиномест. Эти таунхаусы разной высоты и площади, с выходящими на улицу дверьми, служат переходной ступенью между башнями и уровнем улицы, привносят в проект человеческий масштаб. Благодаря разнообразию их размеров, там можно устраивать офисы и иные рабочие пространства, не только использовать как жилье. На крыше подиума создан парк, второй разбит рядом с De Zalmhaven – уже на уровне земли.
Две башни в комплексе De Zalmhaven
Фото © Sebastian van Damme
Две слегка асимметричные башни вмещают примерно по шесть квартир на этаже, организованных вокруг лестнично-лифтового узла. Сложность общего плана позволила добиться разнообразия квартирографии. Верхний ярус занят пентхаусами и дуплексами, за которыми скрыто необходимое на кровле техническое оборудование.
Две башни в комплексе De Zalmhaven
Фото © Sebastian van Damme
Четкая фасадная сетка из кремово-белого алюминия с бронзовым обрамлением окон лишь на самом верху сменяется двойными ячейками (отмечая расположение двухъярусных квартир и играя роль венчающего карниза): это отсылка к расположенным рядом зданиям XIX века.
Две башни в комплексе De Zalmhaven
Фото © Sebastian van Damme
Две башни в комплексе De Zalmhaven
Фото © Sebastian van Damme
Две башни в комплексе De Zalmhaven
Фото © Sebastian van Damme
Две башни в комплексе De Zalmhaven
Фото © Sebastian van Damme
Две башни в комплексе De Zalmhaven
Фото © Sebastian van Damme
Две башни в комплексе De Zalmhaven
Фото © Sebastian van Damme
Две башни в комплексе De Zalmhaven
Фото © Sebastian van Damme
Две башни в комплексе De Zalmhaven
Фото © Sebastian van Damme
Две башни в комплексе De Zalmhaven
Фото © Sebastian van Damme
Две башни в комплексе De Zalmhaven
Фото © Sebastian van Damme
Две башни в комплексе De Zalmhaven
Фото © Sebastian van Damme
Две башни в комплексе De Zalmhaven
Фото © Sebastian van Damme
Две башни в комплексе De Zalmhaven
Фото © Sebastian van Damme
Две башни в комплексе De Zalmhaven
Фото © Sebastian van Damme
Две башни в комплексе De Zalmhaven
© KAAN Architecten
Две башни в комплексе De Zalmhaven
© KAAN Architecten
Две башни в комплексе De Zalmhaven
© KAAN Architecten
Две башни в комплексе De Zalmhaven
© KAAN Architecten
Две башни в комплексе De Zalmhaven
© KAAN Architecten
Две башни в комплексе De Zalmhaven
© KAAN Architecten
Две башни в комплексе De Zalmhaven
© KAAN Architecten
Две башни в комплексе De Zalmhaven
© KAAN Architecten
