Дворец-музей Лоо – реконструкция
Фотография © Simon Menges / предоставлена KAAN Architecten
Дворец-музей Лоо – реконструкция
Фотография © Simon Menges / предоставлена KAAN Architecten
В 2016 прошел открытый конкурс на проект реставрации памятника и создание дополнительных пространств, который выиграли KAAN Architecten. Реставрационная часть работ включала также аккуратное внедрение современных технологических новшеств, в частности эффективной системы контроля климата, кропотливое удаление асбеста, устройство смотровой площадки на крыше основного дворца и ведущей туда отдельной лестницы. Но высокий статус объекта, окружающие дворец регулярные парки, его сдержанный декор и строгая осевая композиция не оставили архитекторам возможности пристроить новый корпус – любой объем неизбежно бы разрушил сложившийся ансамбль. В результате 5245 м2 новых площадей разместили между двумя крыльями дворца, непосредственно под центральным двором. Похожую тактику «невидимого» вторжения архитекторы использовали и при недавней реконструкции Королевского музея изящных искусств в Антверпене, оставив в неприкосновенности внешний облик исторического здания, а новые помещения разместив во внутренних дворах (сохранив при этом верхний свет за счет треугольных стеклянных фонарей) и под ним.
Дворец-музей Лоо – реконструкция
Фотография © Simon Menges / предоставлена KAAN Architecten
Дворец-музей Лоо – реконструкция
Фотография © Simon Menges / предоставлена KAAN Architecten
Композиция четко вписана в историческую планировочную схему. Новые входы в музей разместили в ближайшей к ограде части левого и правого крыльев. Через выделенные камнем небольшие порталы посетители попадают в просторные светлые павильоны с лестницами, ведущими в протяженный холл (архитекторы называют его балконом) с гардеробными и сувенирным магазином. Перпендикулярно ему, строго на центральной оси, расположен длинный торжественный коридор, в конце которого по массивной парадной лестнице, встроенной в сводчатое основание самого дворца, можно подняться в основное здание. С одной стороны этого поистине королевского променада расположены просторные залы временных выставок, высота перекрытий которых достигает пяти метров. Над ними находится западное крыло, где разместили специальный детский музей. Чуть дальше, в пристроенном к западному крылу бывшем бальном зале устроили ресторан. С другой стороны коридора размещена постоянная экспозиция, посвященная Оранской династии. Под нее также отведено реконструированное восточное крыло комплекса, в которое ведет еще одна эффектная лестница.
Дворец-музей Лоо – реконструкция
Фотография © Simon Menges / предоставлена KAAN Architecten
Дворец-музей Лоо – реконструкция
Фотография © Simon Menges / предоставлена KAAN Architecten
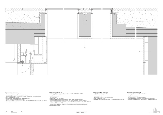
В центре торжественного подземного променада, в месте схода всех маршрутов, на полу выложен рисунок в виде розы ветров, который отмечает центральную точку всей композиции и помогает посетителю сориентироваться. А ровно над ним во дворе устроен фонтан. Большое количество фонтанов – одна из особенностей этого дворцово-паркового ансамбля, собственно, место для Лоо было выбрано еще и потому, что подземные воды здесь удобно расположены и имеют хороший напор. Большой четырехчастный искусственный водоем вокруг фонтана получил стеклянные вставки, закрытые всего лишь четырехсантиметровым слоем воды. Естественный свет таким образом беспрепятственно попадает в подземелье, а снизу через этот своеобразный «витраж» посетителям с необычных ракурсов раскрывается архитектура дворца.
Дворец-музей Лоо – реконструкция
Фотография © Simon Menges / предоставлена KAAN Architecten
Дворец-музей Лоо – реконструкция
Фотография © Simon Menges / предоставлена KAAN Architecten
Светлые и высокие, величественные подземные пространства решены именно как дворцовые залы. В отделке использован белый мрамор с тонким рисунком прожилок. Чередование обработанных песком, шлифованных и полированных поверхностей камня, по разному реагирующих на свет, создает игру фактур. По контрасту архитекторы добавили активную и также благородную древесину грецкого ореха, а в качестве декоративного мотива использовали лепестки флердоранжа – цветка померанцевого дерева, а также листья этого растения и бабочек. Симметричный, вторящий оформлению регулярного сада рисунок можно найти на дверях, предметах мебели, дверных ручках и на гобеленах на стенах ресторана.
Дворец-музей Лоо – реконструкция
Фотография © Sebastian van Damme / предоставлена KAAN Architecten
Дворец-музей Лоо – реконструкция
Фотография © Sebastian van Damme / предоставлена KAAN Architecten
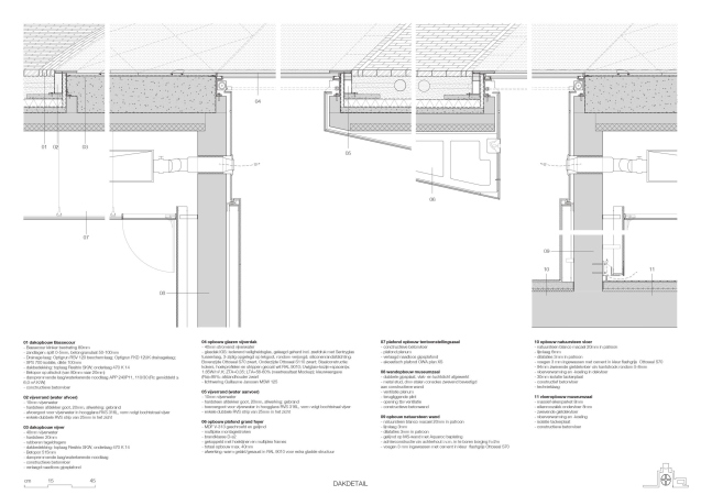
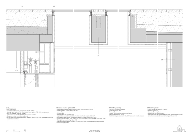
Дворец-музей Лоо – реконструкция
© KAAN Architecten
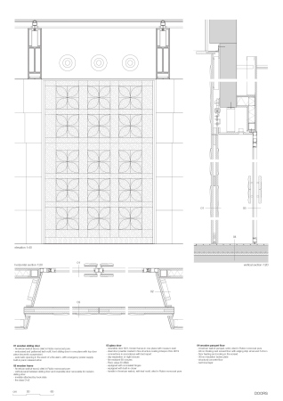
Дворец-музей Лоо – реконструкция
© KAAN Architecten
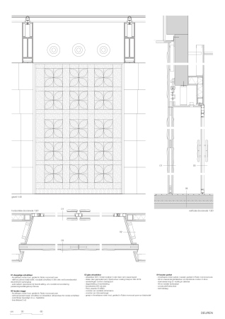
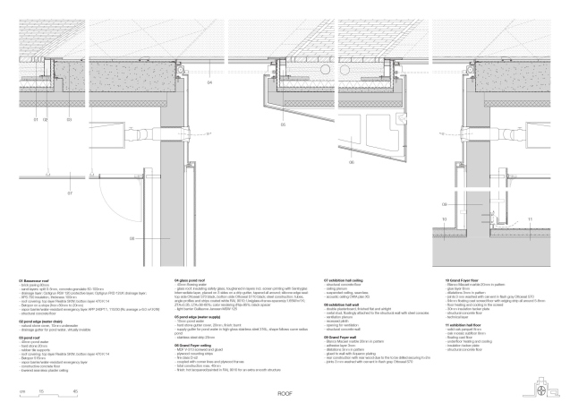
Дворец-музей Лоо – реконструкция
© KAAN Architecten
