Учебный центр Гронингенского университета
Фото © Sebastian van Damme
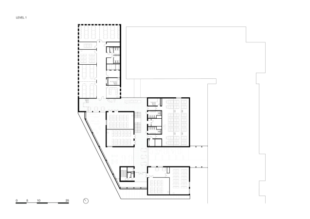
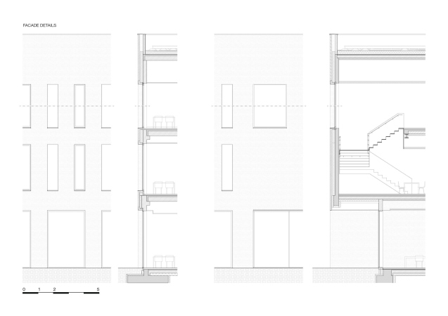
Постройка общей площадью более 12 тыс. м2 состоит из малоэтажного блока с крышей-садом и компактной башни. Их фасады, как и значительная часть интерьеров, облицованы светлым кирпичом. Внутри также широко использованы архитектурный бетон и дерево, в том числе древесина дуба (для оконных рам и дверей).
Учебный центр Гронингенского университета
Фото © Sebastian van Damme
Озелененные дворики и другие общественные пространства по проекту Felixx Landscape Architects подводят посетителей к «горизонтальному фойе» с остеклением по периметру. Связь с окружением, виды на зелень (в том числе из башни на озелененную кровлю корпуса фойе), обильное естественное освещение, теплый тон кирпича должны обеспечить учащимся, преподавателям и исследователям психологический комфорт.
Учебный центр Гронингенского университета
Фото © Sebastian van Damme
В фойе размещены кирпичные объемы с кафетерием, актовым залом, лекционными аудиториями, помещениями для проектной работы, переговорными и отдельной коммерческой зоной.
Учебный центр Гронингенского университета
Фото © Sebastian van Damme
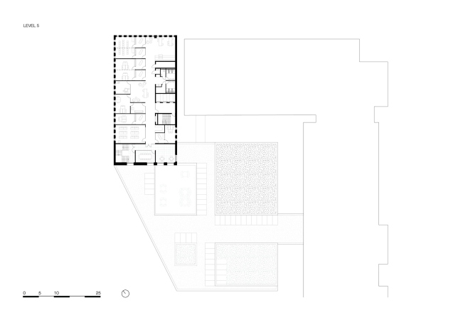
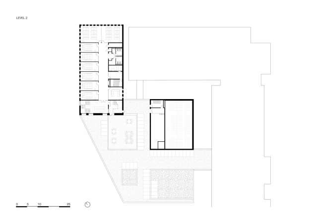
«Вертикальное фойе» соединяет эти объемы с башней, где расположены обычные и компьютерные классы, а также многофункциональная лаборатория. Широкая и удобная лестница объединяет не только этажи, но организованные вокруг нее пространства для групповых и индивидуальных занятий. Из больших окон башни открываются виды на Старый город.
Среди компонентов проекта, «отвечающих» за физическое здоровье – естественные освещение и вентиляция, а также лифты, останавливающиеся только на нечетных этажах.
Учебный центр Гронингенского университета
Фото © Marcel Ijzerman
Здание готово к возможным изменениям функций. Модульная планировка с большими пролетами в сочетании с плотным расположением узлов для подключения к сетям, мобильные сидения в двух из трех лекционных аудиторий и так далее позволяют легко менять планировку и использовать разные образовательные методы.
Учебный центр Гронингенского университета
Фото © Sebastian van Damme
Учебный центр Гронингенского университета
Фото © Sebastian van Damme
Учебный центр Гронингенского университета
Фото © Sebastian van Damme
Учебный центр Гронингенского университета
Фото © Sebastian van Damme
Учебный центр Гронингенского университета
Фото © Sebastian van Damme
