Посетительский центр Нидерландского американского кладбища
Фото © Simon Menges
По прошествии времени военное кладбище перестало быть местом непосредственного, эмоционального оплакивания – ведь осталось совсем немного людей, помнящих живыми тех, кто похоронен здесь, или же бывших свидетелями боев в Нидерландах 1944 года – но историческое значение Второй мировой войны для Европы и мира остается неизменным. Напомнить об этом значении призван посетительский центр, возведенный среди деревьев через дорогу от кладбища.
Парадный двор Нидерландского американского кладбища. Открыт в 1960
Фото © Simon Menges
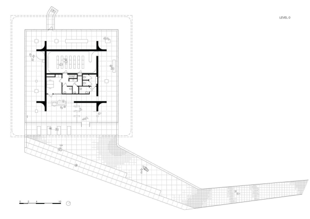
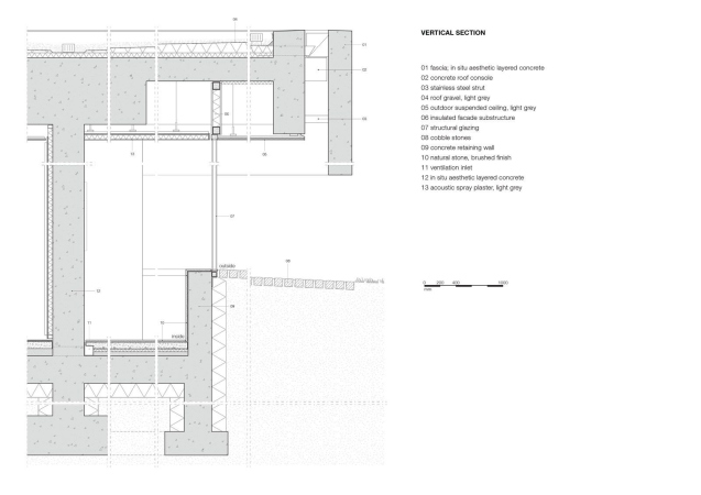
Простые геометрические формы с выверенными пропорциями, отличающие мемориальный комплекс 1960 года, использованы и в постройке бюро KAAN. Она размещена в углублении рельефа, а нижняя ее часть остеклена, и потому издалека кажется, что основной объем как будто парит над землей. Его оболочка выполнена из фактурного слоистого бетона: эти слои подчеркивают горизонтальные пропорции здания, размывают его масштаб. Одновременно «эстетический», как его называют архитекторы, бетон служит аналогом натурального камня, использованного для облицовки мемориала.
Посетительский центр Нидерландского американского кладбища
Фото © Simon Menges
Центром постройки служит квадрат 12 х 12 м: он вмещает актовый зал с обшивкой из древесины черного ореха, административные и подсобные помещения. По периметру расположены выставочные пространства.
Посетительский центр Нидерландского американского кладбища
Фото © Simon Menges
Посетительский центр Нидерландского американского кладбища
Фото © Simon Menges
Посетительский центр Нидерландского американского кладбища
Фото © Simon Menges
Посетительский центр Нидерландского американского кладбища
Фото © Simon Menges
Посетительский центр Нидерландского американского кладбища
Фото © Simon Menges

