Жилая башня FRESH в Эйндховене
Фотография © Sebastian van Damme / предоставлена KAAN Architecten
Жилая башня FRESH в Эйндховене
Фотография © Sebastian van Damme / предоставлена KAAN Architecten
Жилая башня FRESH в Эйндховене
Фотография © Sebastian van Damme / предоставлена KAAN Architecten
Доминантами района стали пять разновысоких жилых башен, имеющих единые модуль, композицию из основания, «тела» и «короны» и размер фундамента в 25х25 м. За счет двухуровневых цоколей они интегрированы в окружение. В данный момент завершается начальная фаза ревитализации промзоны; одним из первых здесь построен многоквартирный дом FRESH по проекту бюро KAAN. Расположен он в центре квартала, между историческими корпусами молокозавода и предприятия по производству льда с сохранившейся кирпичной трубой. Участок оказался несколько уже, чем необходимо, поэтому, чтобы соблюсти размерный модуль, пришлось сделать 6-метровую консоль, покровительственно нависающую над низкоэтажным объемом молочного цеха.
Жилая башня FRESH в Эйндховене
Фотография © Sebastian van Damme / предоставлена KAAN Architecten
Жилая башня FRESH в Эйндховене
Фотография © Sebastian van Damme / предоставлена KAAN Architecten
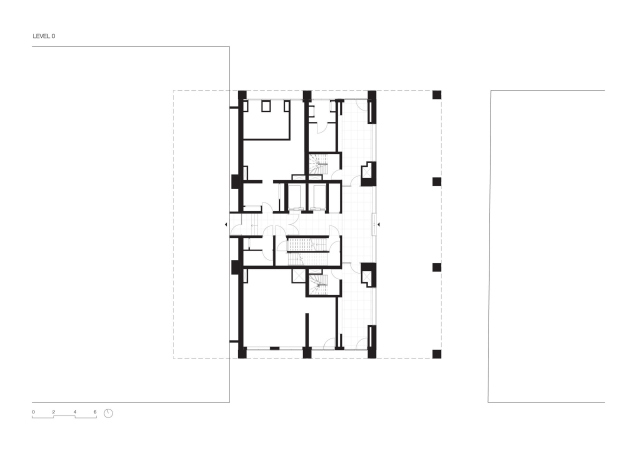
На 18 этажах башни – 123 квартиры, у каждой – балкон или лоджия и красивые виды на город. Архитекторы разработали три варианта планировки этажей – на 4, 6 или 8 квартир. Жесткая сетка фасадов характерна для многих проектов бюро KAAN, например, для комплекса De Zalmhaven в гавани Роттердама. В случае Эйндховена она основана на пропорциях исторических зданий, но ее ритм постепенно меняется по мере роста высоты, при этом линии цоколя и всей базы «подхватывают» уровень кровли исторических корпусов. Но новые и старые объемы не сливаются, а сразу воспринимаются как самостоятельные игроки. Теплые и уютные, спокойные и гармоничные молочные оттенки, а также привычные материалы и фактуры стали кодом всего квартала и отсылкой к его прошлому. Чтобы подчеркнуть преемственность, даже айдентика всего района De Caai обыгрывает шрифт, цвета и узнаваемую точку в логотипе Campina.
О других объектах нового района можно узнать на сайтах их авторов – архитектурных бюро Mei architects & planners, LEVS architecten и Groosman Architecten.
Жилая башня FRESH в Эйндховене
© KAAN Architecten
Жилая башня FRESH в Эйндховене
© KAAN Architecten
Жилая башня FRESH в Эйндховене
© KAAN Architecten
Жилая башня FRESH в Эйндховене
© KAAN Architecten
