Школа спроектирована для жилого комплекса «Филатов луг», расположенного на пересечении Киевского и Филатовского шоссе, недалеко от аэропорта Внуково. Градостроительная среда здесь создается с нуля, проект разработало бюро СПИЧ. Лаконичные 22-этажные башни и соединяющие их корпуса меньшей высотности формируют несколько кварталов, каждый из которых отличает своя «достопримечательность»: торцевые фасады украшают панно из керамической плитки с фрагментами рисунков Алексея Ильина, сделанных в путешествиях. Для проекта архитектор отобрал скетчи исторических доминант в застройке европейских городов: Копенгагена, Амстердама, Берлина, Гамбурга.
ЖК «Филатов луг», СПИЧ
Фотография © Дмитрий Чебаненко
ЖК «Филатов луг», СПИЧ
Фотография предоставлена Kerama Marazzi
Под сенью башен
Детский сад у комплекса уже есть – он располагается «под крылом» первого квартала, следующего от Киевского шоссе, и представляет собой симпатичный, хоть и ожидаемый для своей типологии объем, чуть более цветной, чем окружающие его «взрослые» здания. Школа же, которой предстоит вместить 1100 учеников, как и следует подросшим детям, сепарируется и выказывает самостоятельность. Прежде всего, она располагается отдельно и свободно, занимая большой участок, равный примерно половине территории жилой застройки. Парадный вход ориентирован на пешеходный бульвар, благоустроенный по проекту бюро Arteza, а «лучи» корпусов, камерные дворики и спортивные площадки – на кусочек леса, скрывающий Филатовское шоссе.
Школа на 1100 мест в деревне Картмазово. Ситиплан
© GAFA Architects
Школа на 1100 мест в деревне Картмазово
© GAFA Architects
Внешний облик школы скорее противопоставлен жилому комплексу, язык которого архитекторы адаптируют под свои образы и цели: протяженные плоскости, регулярная сетка окон и башни с акварельной дымкой превращаются в крепостные стены, защищающие «городок» со множеством домиков. В качестве референса архитекторы использовали изображение арены в Арле, которая в средние века «уплотнилась» и превратилась в жилой квартал.
Школа на 1100 мест в деревне Картмазово
© GAFA Architects
Здание школы само по себе не маленькое: оно состоит из трех довольно массивных и протяженных блоков. Чтобы сделать его сомасштабным детям и уйти от чрезмерной зарегулированности, архитекторы обращаются к образу домика с двускатной кровлей – тоже, надо сказать, довольно типичному для учебных учреждений. Но GAFA с этим образом увлеченно играют, всячески его варьируя и добиваясь почти вернакулярного разнообразия.
Школа на 1100 мест в деревне Картмазово
© GAFA Architects
Абрис домиков присутствует в галереях первого этажа и портале входа – этот уровень отделяет и тектонически усиливает клинкерная плитка. Над этой базой накладные рамки группируют окна в ряд домиков, которые венчает кровля с разным углом ската. В глухих частях стен появляются цветные силуэты домиков из металлических ламелей. Ламели накладываются друг на друга и создают оптический эффект: в зависимости от ракурса меняется цветовая палитра. Акцентные цвета, к слову, заимствованы у комплекса «Филатов луг». Дополнительный слой привносят нарисованные более светлой штукатуркой «отпечатки» – такие часто можно видеть в Петербурге, где тень старого дома остается на стене соседа после сноса. Нейтральный серый цвет уводит в фон «остатки» школьных стен, скрадывая их прямоугольность.
Школа на 1100 мест в деревне Картмазово
© GAFA Architects
Школа на 1100 мест в деревне Картмазово
© GAFA Architects
Домики, следовательно, – не просто образ с детского рисунка, а набор архитектурных типологий и элементов, своего рода образовательная среда. Они напоминают и набережную где-нибудь в Брюгге, и современные барны с дубльдомами, есть в них что-то от летнего лагеря в подмосковье или скаутских палаток из фильма «Королевство полной луны». Рамки, кстати, напоминают наличники. Подход этот оказывается хорош как для младшей, так и старшей школы: понятный, уютный, но не картиночно-детский.
Внутренняя дисциплина
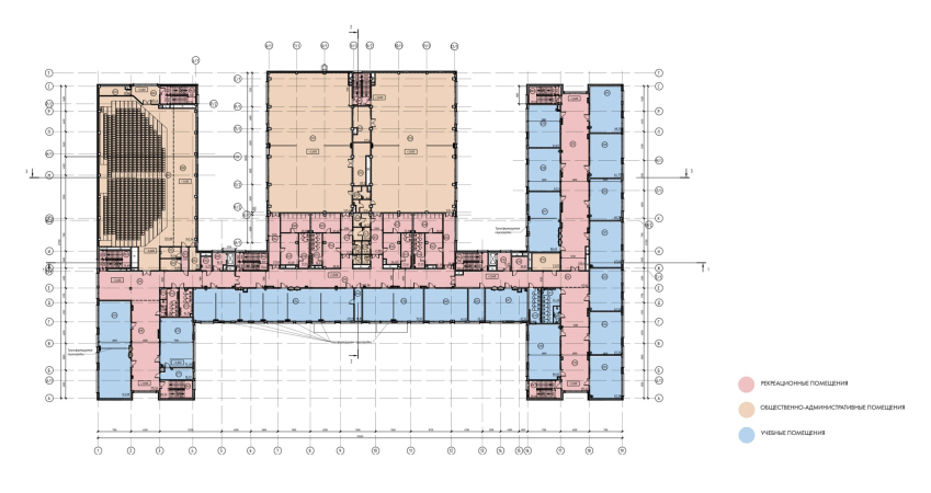
По мнению архитекторов GAFA, пространство школы должно играть роль базы для всестороннего развития ребенка – физического, интеллектуального, социального. Если снаружи авторы создают приветливый образ, то внутри организуют светлые классы, ясные пространства, разводят потоки и предлагают удобные маршруты.Через главный вход посетитель попадает в холл. Центральный блок – общественно-административный, здесь располагаются столовая, спортивный зал, учительские комнаты и основное пространство для отдыха и общения детей. Общий коридор связывает блоки младшей и старшей школы. Примерно половину крыла младших занимает двусветный актовый зал. В некоторых классах устанавливаются мобильные перегородки, которые позволяют объединять помещения или проводить уроки в альтернативном формате.
Выход за рамки
Большая территория дает возможность продолжать обучение и воспитание вне школьных стен – этим потенциалом архитекторы предлагают пользоваться. Помимо футбольного стадиона и спортивных коробок для командных игр GAFA предлагает обширную игровую зону, которая позволит переключаться с умственной нагрузки на физическую. Со стороны леса размещается парковая зона с беседками и оранжереей – «лаборатория» на свежем воздухе. Уютная центральная площадь становится продолжением пешеходного бульвара. Здесь родители ждут детей после уроков, места достаточно и для проведения линеек и общешкольных мероприятий.
Школа на 1100 мест в деревне Картмазово
© GAFA Architects
В сумме получается любопытное противопоставление жилой и образовательной среды, игра на контрасте. Хотя важнее, что архитекторы формируют территорию, «настроенную» на детей: с соразмерной средой, простором для ассоциативного мышления, движения и, конечно же, учебного процесса.
