Так и получилось: недавно архитекторы завершили работу над третьей версией комплекса; ее публиковать пока нельзя, зато первую и вторую – можно. А поскольку главные идеи были сформулированы в самом начале и, к счастью, не утрачены, то наибольший интерес с точки зрения, собственно, архитектурно-градостроительной работы – на данный момент представляет первая версия проекта. Там было предложено все главное из того, что составляет особенности будущего Яр Парка.
Это особенный проект на особенной территории, в уникальном для Казани месте. Признаюсь, у нас в бюро есть проекты и побольше, но по уровню ответственности эта работа, думаю, на первом месте. Если говорить об урбанистической инфраструктуре Казани, думаю, это один из самых важных на текущий момент проектов в городе. Само место – обязывает.
Впервые в истории Казани мы создаем пространство у воды, которое одновременно является и общественным, и жилым. Две ипостаси общественной функции – проницаемое пространство здания культурно-выставочного Форума, рассчитанного на одновременное пребывание 3000 человек. Он объединяет две рекреационных территории: вдоль набережной и вдоль проспекта. Вся территория будет покрыта зеленью, водоемами, спортивными и детскими игровыми площадками.
И самое главное – территория комплекса будет открытой, без всяких заборов и преград.
Впервые в истории Казани мы создаем пространство у воды, которое одновременно является и общественным, и жилым. Две ипостаси общественной функции – проницаемое пространство здания культурно-выставочного Форума, рассчитанного на одновременное пребывание 3000 человек. Он объединяет две рекреационных территории: вдоль набережной и вдоль проспекта. Вся территория будет покрыта зеленью, водоемами, спортивными и детскими игровыми площадками.
И самое главное – территория комплекса будет открытой, без всяких заборов и преград.
Действительно, участок – в самом центре, недалеко от моста Миллениум, на правом берегу разлившейся после запуска водохранилища 1960-х годов Казанки. Сейчас река между двумя мостами, если смотреть из Кремля, выглядит как внутреннее озеро города. Широкая водная гладь, 2 х 1 км, покрупнее озер Кабан и, к тому же, самое центральное по своему расположению между Кремлем и жилыми районами правого берега Казанки. Они, к слову сказать, все относятся к послевоенному времени. Есть тут и панели, и постройки поновее, есть похуже, есть получше, но все складывается в этакую разнотоновую массу приблизительно одной высоты. Акцентов не очень много: «Казан», дворец бракосочетаний в форме котла, и светящееся по ночам колесо обозрения.
Впрочем, уже во время работы с Яр Парком, после того, как была предложена первая версия комплекса, Сергей Скуратов, в какие-то очень короткие сроки, построил чуть восточнее, у одноименного моста, комплекс Миллениум, блестящий стеклом и натуральной медью; если и Яр Парк реализуют, чего хотелось бы, то тут образуется «скуратовский уголок», а значит, поскольку SSA известные перфекционисты – заповедник архитектуры, качественной от замысла до исполнения.
Но вернемся к Яр Парку.
На данный момент отведенный для него участок представляет собой пустое пространство – с уже реализованным намывом, спрямившим береговую линию – и разделяет две территории отдыха в центре города: парк и аквапарк.
Сергей Скуратов, как мы видим из авторского комментария, сосредотачивается на том, чтобы после реализации Яр Парк не разделял парки между собой, а связывал – и сам бы стал рекреационной территорией.
Территория вытянута с запада на восток между берегом и городской улицей Сигбата Хакима. Три важные градостроительные оси жилых районов сходятся примерно к центру участка; здесь же с Яр Парком соседствует Татнефть Арена.
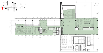
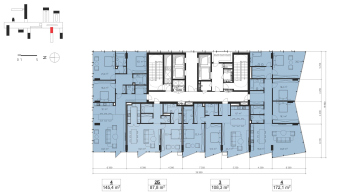
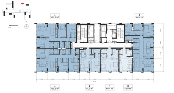
Главную, продольную, ось комплекса провели параллельно берегу; соединив два парка на торцах участка, ось превратилась в протяженный многофункциональный крытый молл: здесь лобби жилых домов, гостиницы и офисов, и фитнес с бассейном, и конгресс-холл с трансформируемым залом, и магазины, и места, где можно погулять и посидеть.
За последние 15 лет стало принято считать, что оптимальный способ организации общественного пространства в городе дает квартальная застройка с магазинами в первых этажах. Однако она образует стену, очень много отдает приватным дворам и мало – городу; и еще для кварталов оптимальна небольшая высота, а значит, и малая плотность. Для высокой плотности, наоборот, лучше подходит высотная застройка, в этом случае для общественных пространств остается больше места. И если мы посмотрим на 2000-е или, наоборот, на современные проекты Москвы, то этот вопрос и тогда решался, и сейчас решается через «башни на стилобате». Двор на кровле парковки, магазины по периметру. Кварталы и башни на стилобате это, в сущности, две основные типологии, сосуществующие на протяжении последней четверти века.
В проекте Яр Парка Сергей Скуратов предлагает – скажу так – новый градостроительный гибрид. Функции, которые в обеих названных выше версиях мы привыкли находить по внешнему контуру: приватное внутри, общее снаружи – Скуратов собирает в «позвоночнике» молла, в самой середине. Дома пристыкованы к многофункциональному «хребту» как ветки к стволу, некоторые непосредственно, некоторые навесным переходом; под углом 90°, но чаще меридионально, так как это наиболее выгодная ориентация для инсоляции.
Что полностью освобождает территорию для города и горожан, как со стороны реки, так и со стороны жилых районов. Сюда можно будет беспрепятственно войти, пройти насквозь к воде, пляжу, набережной, причалам яхт-клуба – и выйти в любую сторону.
В предложенном «градостроительном гибриде» можно усмотреть влияние микрорайонной застройки в той ее версии, которая была близка к идеям города-сада. Дома не прячутся за забором – в конце концов это центр города – их можно будет обходить с разных сторон. Но и не образуют «красной линии», о которой так много говорили последователи Нового урбанизма (или Петра Великого?) с восьмидесятых городов. Справедливости ради надо сказать, что исторического города тут не было никогда – напомню, застраивать правый берег Казанки начали в шестидесятые, после заполнения водохранилища, раньше тут были леса и поля, потом – собственно микрорайоны.
Так что неудивительно, что именно здесь высотки наконец-то «поняли»: их сила не в том, чтобы прятаться за «стекляшками» или малыми объемами, выдвинутыми на линию улицы, имитируя исторический город. Их сила «внутри». В общем-то, дома тут подключены к моллу примерно как жилые единицы НЭРа подключались к трассам; хотя, конечно, не совсем так. Тем не менее, свежий, интересный поворот.
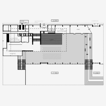
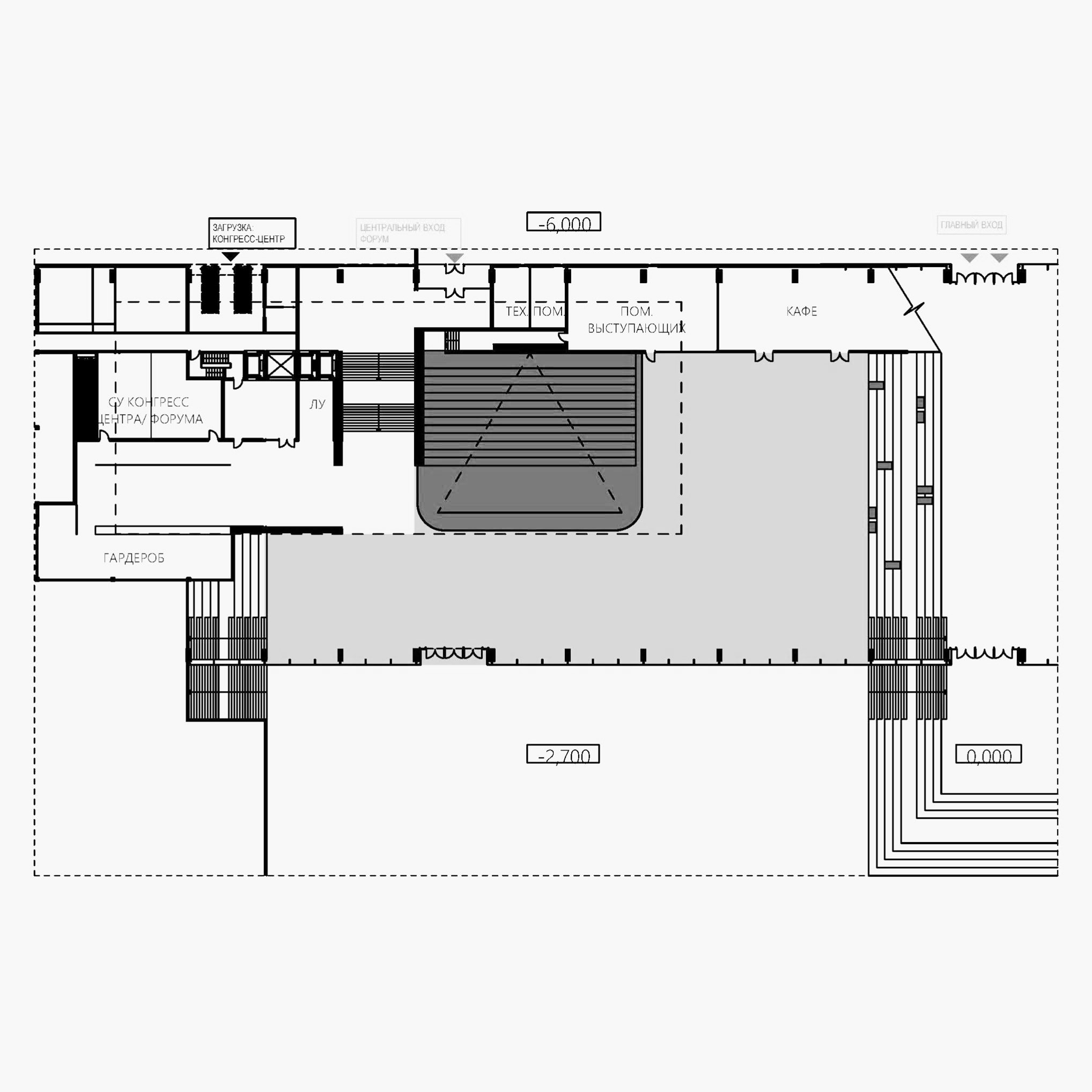
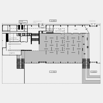
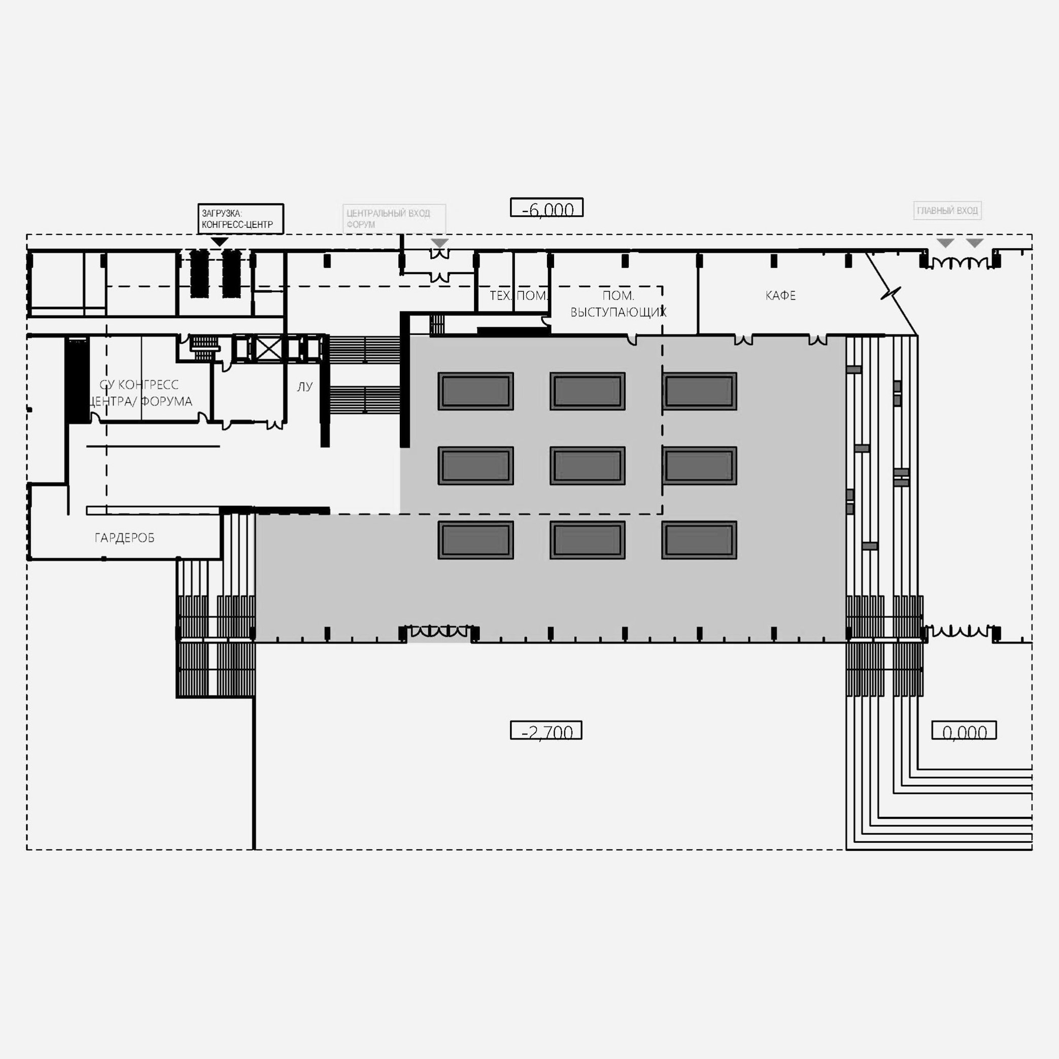
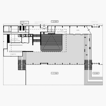
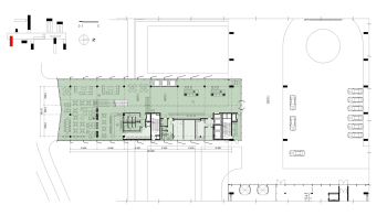
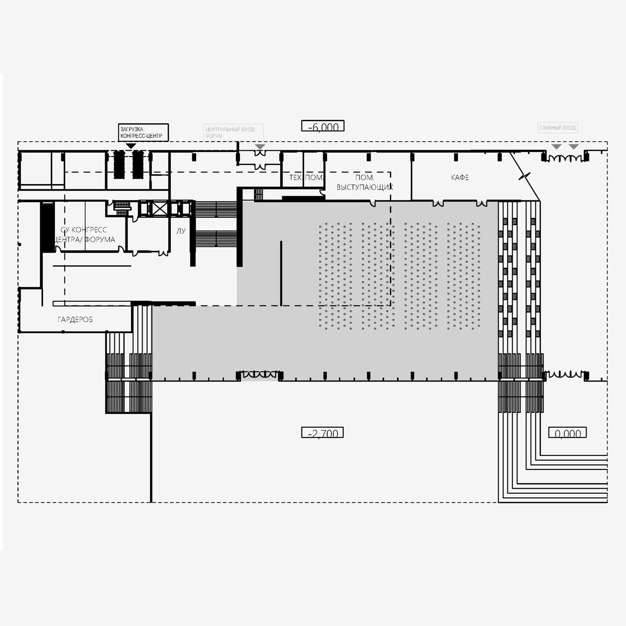
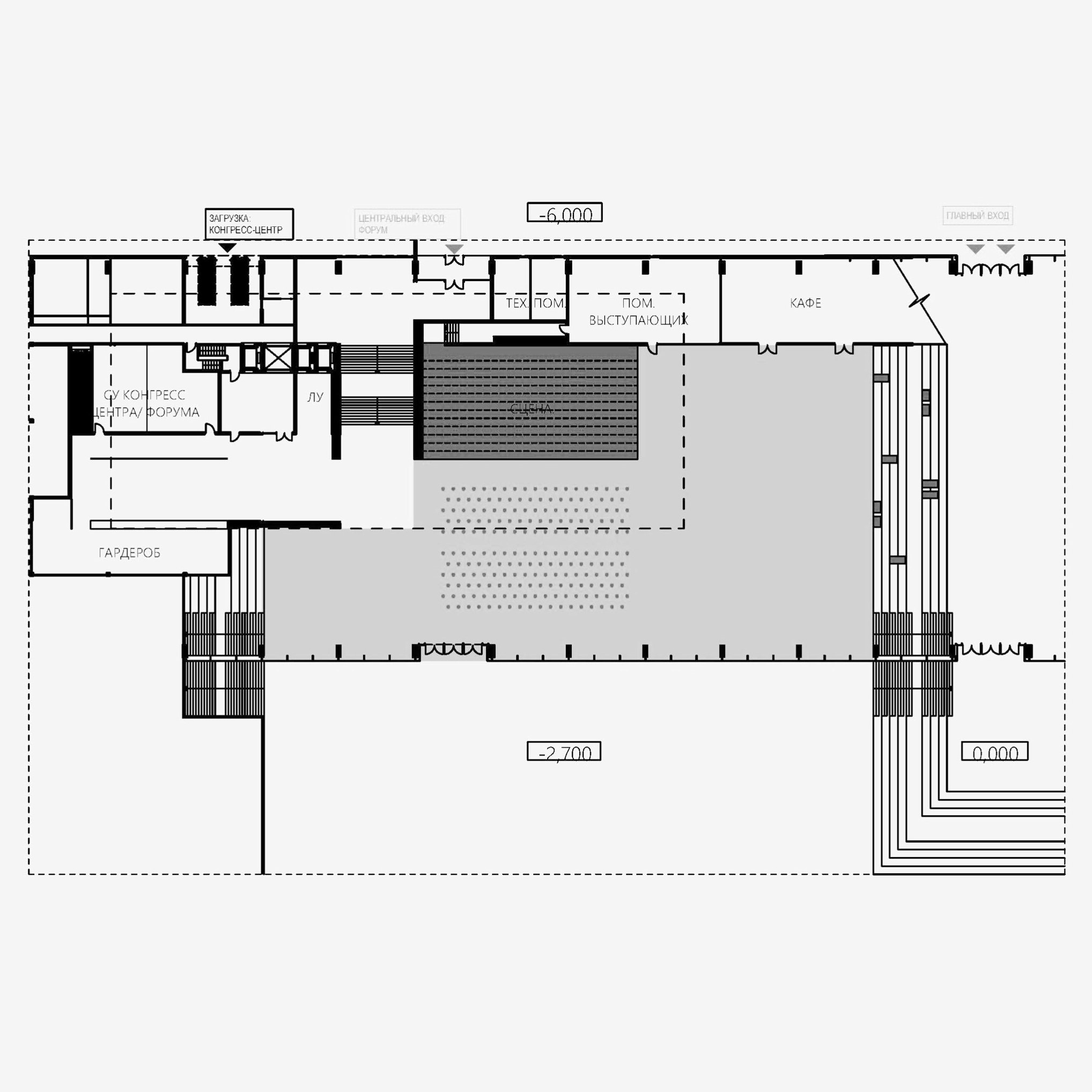
Центральное ядро молла – расположенный на перекрестье продольной и поперечной осей Форум. Строго говоря, это конгресс-центр и его атриум-фойе. Но – какой атриум! Работая с уровнями и масштабом, авторы превращают его в огромное пространство, теплое и одновременно проницаемое для взгляда и прохода человека. Высокое, просторное. Многоярусное. В крытую городскую площадь. В Казани это актуально, зимой там ох как холодно, холоднее, чем в Москве.
Атриум трехсветный, хотя это определение как-то не очень даже подходит, поскольку стены полностью прозрачные, с максимально незаметной расстекловкой. Со стороны реки вход безбарьерный на уровне -2.7 метра; вокруг – парковки, но пятно входа достаточно большое и с восточной стороны его очерчивает, непринужденно пересекая границу стекла, лестница-амфитеатр, высотой приблизительно с один этаж, около 3 метров; амфитеатр, местами прерываемый лестницами продолжается на значительную длину и снаружи, и внутри.
Первый этаж, таким образом, самый просторный и лишен перегородок. Его основную площадку авторы трактуют как трансформируемое место для временных мероприятий: и выставок, и фуршетов, и лекций. Выше и чуть западнее, на уровне 6 метров, то есть, приблизительно, 2 этажа, в пространстве парит первый конференц-зал, со стеклянными стенами.
За ним, чуть западнее – еще один, большой трансформируемый, разделяемый на два и на три, конференц-зал.
Все вместе – пространство сложное, но светлое и для восприятия сделанное легко: на просвет, с минимальными тонкими колоннами, с прозрачностью и «парением». Современное, технологичное, непринужденное – как у Азимова. Внутри не только лестницы, но и пандусы, особенно к востоку и западу, в глубине, около гостиницы, фитнеса и офисов. Интересное пространство, очень хочется увидеть и исследовать его после реализации. И очень большая надежда на то, что при осуществлении тут обойдется без вездесущих никелированных поручней наших дней... Авторы и заказчики, вы уж постарайтесь, а?
На выходе к северу – опять ступеньки лестниц и амфитеатра. Воду Сергей Скуратов проводит на другую сторону парка, получается этакий дискретный залив, отведенный от реки и тоже обозначающий ось, намекающий на значение водной глади в этом пространстве. Тут можно будет смотреть над водой искусственного залива на воду реки через стекло атриума. Красиво.
Как не вспомнить знаменитый пруд в «Садовых кварталах». Но только в Казани тема развернута шире. В прибрежном Яр Парке вода особенно значима. Тут и бассейн сделан так, как это принято в приморских курортах, чтобы, плавая в искусственной воде, можно было встык-вровень наблюдать воду естественную. И по причалам яхт-клуба можно погулять.
Если же продолжить разговор о продольном молле-«пути» – авторы делают все возможное для того, чтобы акцентировать торцы участка, превратить их в «порталы» входа: так у гостиницы над входом появляется акцент бронзово-медного раструба. Оттененный другим, на жилой башне слева к северу – это, к слову сказать, один из любимых приемов архитектора Скуратова, там на верхнем ярусе планировалось высокая лоджия общественного пространства для жителей, с видом на город.
Наконец, Сергей Скуратов предложил соединить мостом парк и полуостров, на котором стоит Дворец бракосочетаний в форме Казана – иными словами, архитекторы смотрят шире и дальше своего участка, выступают с инициативными предложениями созвучными сути собственного проекта: его «пути», его характера, связывающего городскую ткань.
МФК «ЯР ПАРК» 1
© Сергей Скуратов ARCHITECTS
В 2021 году SSA озвучили и перспективы второй очереди, дальнейшей работы с окружением участка: предложили включить в сферу застройки бывший Леруа Мерлен, с сохранением функции строительного магазина. Масштабно, творчески – Сергей Скуратов инициативный, активный архитектор – вышли за рамки задания. Наметили точки роста.
Это логично и, если мыслить профессионально, естественно: при планируемом объеме строительства здесь, в центре, должен возникнуть настоящий «полицентр», как его называют сейчас градостроители: помимо жилья всё, что душе угодно. Осталось добавить филиал Эрмитажа. Шучу. Все возможные городские функции и вероятные точки притяжения тут, кажется, учтены. Ну а выставки приложатся; тем более что архитекторы уже подобрали актуальных казанских скульпторов и сами предложили несколько кортеновых арт-объектов.
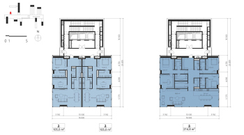
Хорошо, а что жители? Квартиры здесь, определенно, не дешевые. Не оставили же их без приватных пространств? Нет, не оставили. Для жителей зарезервированы все кровли молла и примыкающих зданий: архитекторы даже, предвидя актуальный запрос, рисуют там общественные огороды. Ну или клумбы. Все это на высоте порядка 10 метров над городом и рекой, в панорамами. Плюс некоторое количество приватных террас. И верхние части башен, о которых упоминалось выше.
Для того, чтобы сделать все общественным, городским – нужно было освободить пространство. Архитекторы, как видно на схемах выше, раздвигают объемы в стороны, освобождая центр. И – в первом варианте, рассчитывая на возможность снятия действующих здесь высотных ограничений до 100 метров, – предлагают существенное повышение башен: в первой очереди один дом высотой 135.2 м – по одной квартире на этаже, как в Нью-Йорке – и 170 м; еще одна 135.2 «тонкая» башня плюс небоскреб 245 метров в высоту – во второй очереди. Аргументация: чем выше объемы, тем они тоньше, тем меньше визуальный «вес» всего комплекса, он тянется вверх, а не выстраивается стеной, как вся предшествующая застройка.
Сергей Скуратов говорит, что главным ориентиром был казанский кремль с его чередой тонких высотных акцентов, с башнями и минаретами.
Поворачиваясь под разными углами, башни меняют толщину; благодаря расстановке в шахматном порядке первый ряд раскрывает виды на реку второму. Расстояния достаточно велики, чтобы избежать взгляда окно-в-окно.
Но главное, на мой взгляд – разновысотность. Все мы знаем, хотя бы на примере московского ЖК Метрополия: случается что и башни поставят близко друг к другу и подрежут по верху «как ножницами». Эффект будет столь же непритязательным, что и со стенообразными кварталами.
Итак. Башни. Надо. Делать. Разновысотными. Чередовать с пластинами, менять размеры и фасады. Здесь, в Яр Парке, все это есть. Есть и разнообразие квартир и фасадов, варьирующих любимые скуратовские приемы: стекло «в пол», треугольные эркеры, плавно меняющие угол поворота, «ласточкины хвосты» в плане, скругленные углы с моллированным стеклом. Камень, металл разного вида.
В чертежах, как всегда у SSA – подробнейшая детализация.
В роли «вишенки на торте» – поиски местной темы, казанской идентичности. Архитекторы не только изучили работы местных скульпторов и выбрали их них лучших.
Они еще и изучили два языка. Тут тоже шучу. Не изучили, но коснулись в своем проекте: старотатарской письменности – ее арабески занимают, растворяясь по мере повышения, фасад одной из башен; кроме того, обратились к работам Фаика Тагирова, татарского авангардиста, и адаптировали его паттерн на основе староарабского почерка «куфий» в интерьерах и благоустройстве.
Словом, это была масштабная работа, обладающая, помимо архитектурно-градостроительной дерзости – впрочем, как мне кажется, обоснованной – значительным объемом детальных проработок, «погружающих» наблюдателя в проект.
Вторая версия Яр Парка датирована 2022 годом и связана с сокращением высотности. Две супер-тонкие башни стали меньше ростом и превратились в дома с треугольным планом.
Офисы переехали из восточной части в западную. А эстетика визуальных решений приобрела большую «собранность» и несколько «грозовой» оттенок.
Но ключевые решения: продольная ось молла, к которой стыкуются жилые и офисные объемы, искусственный залив, прозрачный атриум Форума и даже блестящий медный раструб «перспективного окна» со стороны парка с его куфическими паттернами, а главное – открытое для города пространство комплекса, не разделяющее, а связывающее – все осталось на месте. Сергею Скуратову, определенно, нравится найденное решение.
Остается ждать и наблюдать, что же получится в третьем варианте из этого смелого, роскошно-размашистого, высокотехнологичного и гламурного как по предполагаемому качеству исполнения, так и по ценности, заложенной для города и горожан – в разы превосходящего московские «Садовые кварталы» – проекта. Решение современное и по технологии, и по образности, и, что важнее, в социальном смысле. Так как исключает заборы, делает важное для Казани пространство общим – не стесняя при этом жителей, которые смогут «в тапочках» по теплому переходу спуститься хоть в фитнес, хоть в ресторан, хоть в кино и яхт-клуб. Сложное, срежиссированное для всех, пространство. Казань может гордиться, среди жилых комплексов Москвы ничего похожего, столь же открытого, разнообразного, масштабного и «отрегулированного» – кажется, пока не получилось и даже не планируется.



