Кампус университета Уэстлейк в Ханчжоу
Фотография © Tian Fangfang / предоставлена HENN
Кампус университета Уэстлейк в Ханчжоу
Фотография © Tian Fangfang / предоставлена HENN
Кампус университета Уэстлейк в Ханчжоу
Фотография © Tian Fangfang / предоставлена HENN
Кампус университета Уэстлейк в Ханчжоу
Фотография © Tian Fangfang / предоставлена HENN
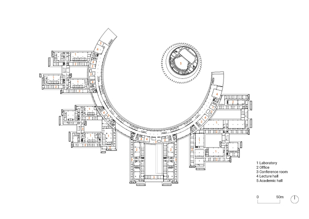
В основе концептуального мастерплана лежит серия концентрических кругов, которые расходятся от тоже круглой в плане центральной аудитории и помогают логично и эффективно организовать все функции: большой, опять же круглый, двор, вокруг которого сформировано академическое ядро из связанных между собой отдельных корпусов инженерной, медицинской, естественно-научной школ и школы технических наук. Кольцо замыкают три отдельных объема – библиотеки, исследовательского корпуса и центра педагогики. Благодаря также кольцевому каналу все они оказываются на острове, а с общественно-административной, спортивной и жилой «внешними» частями кампуса это обособленной ядро соединено 12 пешеходными мостиками.
Кампус университета Уэстлейк в Ханчжоу
Фотография © Tian Fangfang / предоставлена HENN
Кампус университета Уэстлейк в Ханчжоу
Фотография © Tian Fangfang / предоставлена HENN
Все, довольно простые по своей геометрии, объемы имеют одинаковую модульную основу из бетонных конструкций промышленного производства с регулярной сеткой опор 10,8 x 9,6 м, которая обеспечивает максимальную гибкость планировки. А в оформлении фасадов уже использованы различные акценты и паттерны, придающие корпусам индивидуальность на фоне нейтральной серо-белой основной гаммы.
Кампус университета Уэстлейк в Ханчжоу
Фотография © Tian Fangfang / предоставлена HENN
Кампус университета Уэстлейк в Ханчжоу
Фотография © Tian Fangfang / предоставлена HENN
Кампус университета Уэстлейк в Ханчжоу
Фотография © Tian Fangfang / предоставлена HENN
В соединительное полукольцо все школы обращены помещениями, которые могут использовать студенты и исследователи разных специальностей: на нижнем уровне это лаборатории, а на верхних – аудитории для лекционных и семинарских занятий: все это позволяет обеспечить эффективное междисциплинарное общение и активную коммуникацию, без которых не может существовать современное учебное заведение. Кроме того, между собой объемы связаны дополнительными переходами, а между ними устроены небольшие внутренние дворы, что дополнительно облегчает взаимодействие студентов, преподавателей и исследователей и усиливает социальный аспект.
Круглая в плане аудитория на 1200 мест для официальных церемоний, концертов и других мероприятий, которую окружает просторный, зеленый двор, стала таким образом гравитационным ядром всего кампуса. Ее фасад формируют 60 эмалированных стальных опор каплевидной формы, которые одна за другой постепенно поворачиваются в одном направлении на определенный угол. По замыслу архитекторов, такое решение соединяет строгий ритм классической архитектуры с присущей современности активной динамикой.
Кампус университета Уэстлейк в Ханчжоу
© HENN
