Вертикальная ферма в комплексе Беренс-Уфер
© HENN
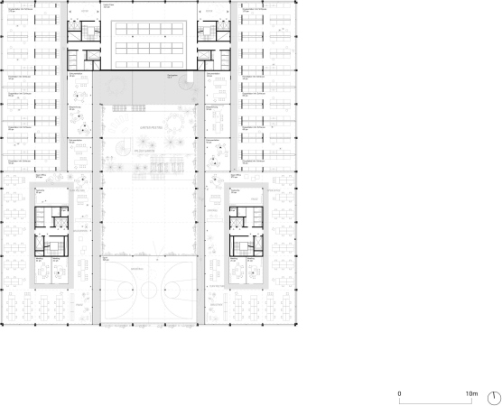
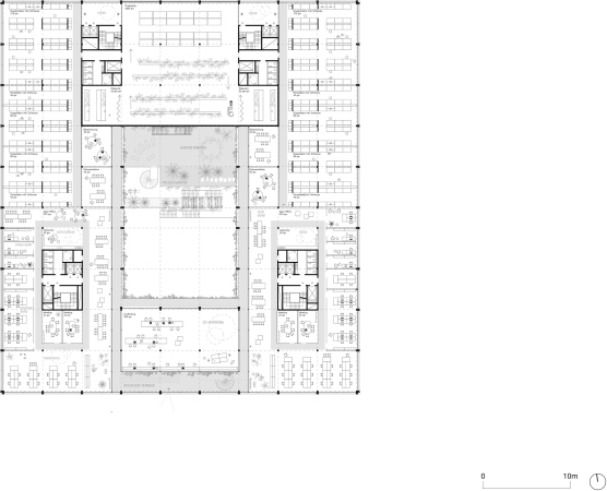
В наши дни исторические корпуса планируется перепрофилировать – разместить здесь офисы, лаборатории, галереи, дизайн-бюро, кафе и магазины, а также добавить к ним новые «устойчивые» постройки. Одним таким дополнением станет 15-этажная вертикальная ферма по проекту HENN. На площади в 27,7 тыс. м2 расположатся офисы, переговорные, коворкинг, кафе, рынок, магазины и спортивная площадка.
Вертикальная ферма в комплексе Беренс-Уфер
© HENN
Но главным, конечно, здесь будут не они: кровлю и спускающиеся к речному берегу террасы займет плодовый сад с перголами, а под ним разместят вертикальную ферму общей площадью 9000 м2. Она будет производить салат-латук, пряные травы и зелень, огурцы и томаты. Также в систему войдет небольшой рыбозавод: обогащенная минералами вода оттуда станет удобрением для агропоники.
Вертикальная ферма в комплексе Беренс-Уфер
© HENN
В саду высадят не только деревья, но и ягоды, устроят пасеку. От перегрева посадки будут защищены навесами с солнечными батареями, батареи разместят и на остекленных частях фасадов.
Вертикальная ферма в комплексе Беренс-Уфер
© HENN
Сооружение с гибридной деревянной конструкцией получит четкую структуру из кубических блоков. Офисные крылья фланкируют сельскохозяйственную зону, то есть сотрудники станут ближайшими соседями растений. Погулять по саду смогут не только они, но и все желающие.
