Офисный комплекс в iCampus
Фото © HGEsch
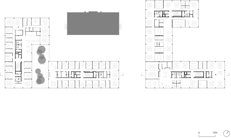
В состав Верксфиртеля входит офисный квартал iCampus, прилегающий к территории вокзала, а внутри него парадный по своему положению участок занимает офисный комплекс по проекту архитекторов HENN. Парадность и естественность согласовать непросто, но авторы проекта сделали все, что могли, чтобы создать сообщество сотрудников, а не просто помещения для работы.
Офисный комплекс в iCampus
Фото © HGEsch
Центр участка занимает так называемая Rhenania Villa – административное здание транспортной компании Rhenania, элегантная неоклассическая постройка 1920 года. Сейчас она отреставрирована за 12 млн евро и служит наиболее «представительским» корпусом всего iCampus.
Офисный комплекс в iCampus
Фото © HGEsch
Вокруг HENN расположили новые здания с четкой модульной сеткой фасадов. Ближе к «вилле» расположены более низкие постройки, с соседними сооружениями согласуются 6-этажные. Их габариты слегка размыты благодаря тому, что решетка фасадов продолжается в виде «перголы» на уровне кровли, скрывая то инженерное оборудование, то зеленую террасу для отдыха сотрудников.
Офисный комплекс в iCampus
Фото © HGEsch
Кроме разнообразных зон для отдыха и общения на уровне земли и выше, здесь предусмотрены кафе с такими же террасами: так оживление обеспечивается среди офисных корпусов даже в выходные.
Офисный комплекс в iCampus
Фото © HGEsch
Черное покрытие фасадов разработано специально для проекта: благодаря добавлению железной слюдки, цвет выглядит более теплым и поблескивает в лучах солнца. Тему теплого колорита поддерживают входные двери, декор лифтов и вестибюлей из золотистого металла.
Офисный комплекс в iCampus
Фото © HGEsch
Офисный комплекс в iCampus
Фото © HGEsch
