Частный дом Casa Lua в Белу-Оризонти
Фотография © Luisa Lage / предоставлена Tetro Arquitetura
Частный дом Casa Lua в Белу-Оризонти
Фотография © Luisa Lage / предоставлена Tetro Arquitetura
Частный дом Casa Lua в Белу-Оризонти
Фотография © Luisa Lage / предоставлена Tetro Arquitetura
Частный дом Casa Lua в Белу-Оризонти
Фотография © Luisa Lage / предоставлена Tetro Arquitetura
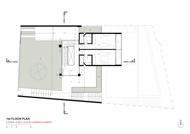
На улицу постройка выходит как бы парящим прямоугольным объемом, приподнятом на четырех древовидных опорах из бетона, будто проросших сквозь склон и весь дом. Этот, самый верхний, ярус занимает частная зона с тремя спальнями, ванной, гардеробной, небольшим пространством для семейного общения и террасой. От чужих взглядов они надежно закрыты металлическими солнцезащитными панелями, создающими плотный рисунок снаружи, но проницаемыми изнутри. Первый этаж обращен к улице зеленым двором и остекленным входным атриумом, создающим эффект парения прямоугольного верха и открывающим неожиданный просвет в плотной застройке красной линии. За ним, в вытянутой консоли, размещены еще две гостевые спальни, каждая со своей видовой верандой.
Частный дом Casa Lua в Белу-Оризонти
Фотография © Luisa Lage / предоставлена Tetro Arquitetura
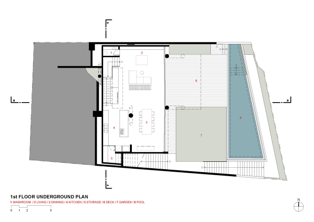
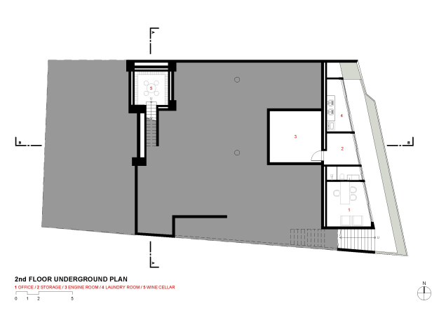
Основной общественный уровень – фактически подземный, он практически встроен в склон. Открытая зона объединяет кухню, столовую и гостиную, а также ведет на частично озелененную террасу и к открытому бассейну у самой кромки. Внутреннее и внешнее здесь, как и положено, разделены очень условно, образуя цельное пространство, открытое городу и природе. Еще этажом ниже спрятаны технические помещения, прачечная, винный погреб и отдельный рабочий кабинет, тоже с панорамным видом.
Частный дом Casa Lua в Белу-Оризонти
Фотография © Luisa Lage / предоставлена Tetro Arquitetura
Частный дом Casa Lua в Белу-Оризонти
Фотография © Luisa Lage / предоставлена Tetro Arquitetura
Частный дом Casa Lua в Белу-Оризонти
Фотография © Luisa Lage / предоставлена Tetro Arquitetura
У дома есть еще одна, весьма романтическая особенность. Когда луна восходит над горным хребтом, ее свет становится неотъемлемой частью архитектурного решения, добавляя новые смыслы и образы. Собственно, это и определило говорящее, как почти всегда у Tetro, название: Casa Lua и означает «Лунный дом». Более того, для хозяев наблюдение за светилом тоже стало важнейшим, почти ежедневным ритуалом.
Частный дом Casa Lua в Белу-Оризонти
Фотография © Luisa Lage / предоставлена Tetro Arquitetura
