Дом «Танграм»
Фото © Manuel Sá
Аналогично решены перекрытия первого этажа – здесь крыше вторят веранды или же ажурный угловой выступ, также деревянный и поделенный на треугольники. В интерьере, напротив, преобладает бетон.
Дом «Танграм»
Фото © Manuel Sá
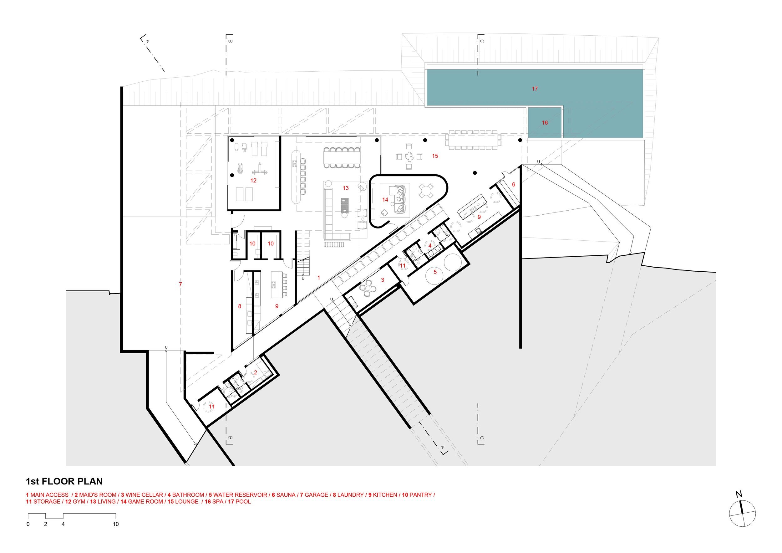
Расположение на самой высокой точке участка, спускающегося к озеру, позволило защитить дом от посторонних взглядов: из-за ракурса снизу-вверх, обращенных к дороге подпорных стенок из грубого камня и озелененных насыпей постройка практически не видна пешеходам и автомобилистам. В то же время к озеру и пейзажу за ним дом раскрывается панорамным остеклением, верандами и террасой с бассейном, который как будто продолжается озерной гладью.
Дом «Танграм»
Фото © Manuel Sá
Именно в эту сторону обращены помещения первого этажа – гостиная, кухня, столовая. Там же расположены хозяйственная кузня, санузел и винный погреб – но они сдвинуты назад, почти в толщу грунта.
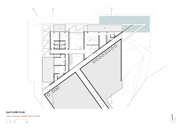
Второй этаж занят общей комнатой для членов семьи, спальней хозяев, двумя детскими и двумя гостевыми. Они тоже выходят на озеро, но более «точечно».
Дом «Танграм»
Фото © Manuel Sá
