Дом Casa Ponte
Фото © Joana França
В самом узком месте, где остров и материк как будто выходят навстречу друг другу, между ними всего 800 м. Оба берега здесь заняты столицей штата, Флорианополисом, а соединяют их три моста. Вантовый, имени Эрисилиу Луса, построили первым, еще в 1920-е, и стал с тех пор символом города и штата.
Дом Casa Ponte
Фото © Joana França
Архитекторы Tetro выбрали его ажурную конструкцию источником вдохновения: так в их проекте появились две большие консоли, выдающиеся в океан, напоминающий мост каркас, параллельный берегу, а также ламели и перфорированные панели из серого металла, защищающие интерьеры и террасы от солнца.
Дом Casa Ponte
Фото © Joana França
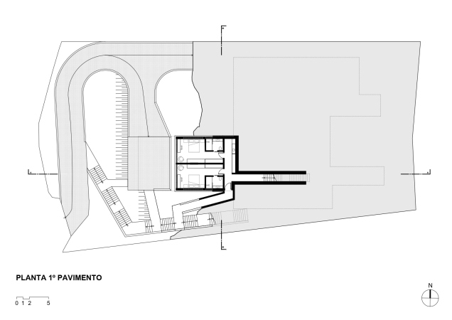
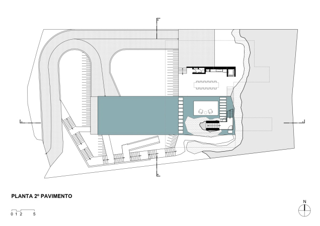
Нижний ярус занят двумя спальнями, практически утопленными в берег; выше – этаж бассейна, расположенного на нижней консоли. В мелкой части этого водоема установлена композиция из крупных камней: это отсылка к пляжам Санта-Катарины, где нередки скалы – в отличие от континентальной Бразилии.
Дом Casa Ponte
Фото © Joana França
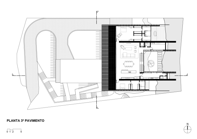
К бассейну примыкает пространство для отдыха и столовая. На третьем, верхнем уровне – второй консоли – размещены спальни хозяев и гостей, а также главное жилое пространство.
Со всех ярусов и практически из всех помещений открываются виды на пролив (здесь он солидной ширины в 10 км) и поросшие лесом горы на материке.
Дом Casa Ponte
Фото © Joana França
Дом Casa Ponte
Фото © Joana França
Дом Casa Ponte
Фото © Joana França
