От редакции.
Вы помните свое первое впечатление от информации, что киберспорт – это настоящий спорт? Шок – это мягко сказано. Слишком уж не вяжется образ сидящего за компьютером «ботаника», щелкающего мышкой, с представлением о том, как выглядят и чем занимаются спортсмены. Но оказывается, что киберспорт также требует уникальных качеств и способностей, часть из которых должна быть врожденной, часть культивируется путем регулярных и продолжительных тренировок. Чтобы преуспеть в киберспортивных дисциплинах, нужна высочайшая скорость реакции, способность концентрироваться, глазомер, стратегическое мышление, креативность, изобретательность и умение работать в команде. Пусть эти качества не зависят от накаченности мышц или гибкости связок, но они являются такими же талантами и навыками, как и, например, умение стрелять из лука или играть в волейбол. И чемпионаты по киберспорту привлекают столь же большую аудиторию, а денежные призы на них зачастую оказываются намного больше, чем на обычных спортивных соревнованиях.Новый статус и новое восприятие киберспорта требуют и нового дизайна. Сырые подвалы с рядами массивных компьютеров давно ушли в небытие. Теперь крутые команды и крутые киберспортивные клубы обзаводятся своими собственными площадками для тренировок и приятного времяпрепровождения. Но стереотипы в этой типологии пока не выработались. Понятно, что есть установка на высокие технологии, футуризм и активное использование неона, чтобы не хуже, чем в легендарных фильмах «Трон», «Бегущий по лезвию» или «Призрак в доспехах». Тут уж кому какая эстетика ближе. В любом случае возможность спроектировать киберспортивный клуб для любого дизайнера интерьера – это отличная возможность проявить максимум креатива и создать нечто настолько далекое от обыденной реальности, насколько хватит воображения и бюджета.
Дизайн-бюро «Уголок» использовало предоставившуюся возможность на 100%. Хотя точнее будет сказать, что не на 100, а на 200%. Ведь в клубе Gosu Cyber Lounge два этажа, каждый из которых получил собственное оформление в точном соответствии с функциями.
Киберспортивный клуб Gosu Cyber Lounge
Фотография © Анастасия Самойлова / предоставлена Дизайн-бюро «Уголок»
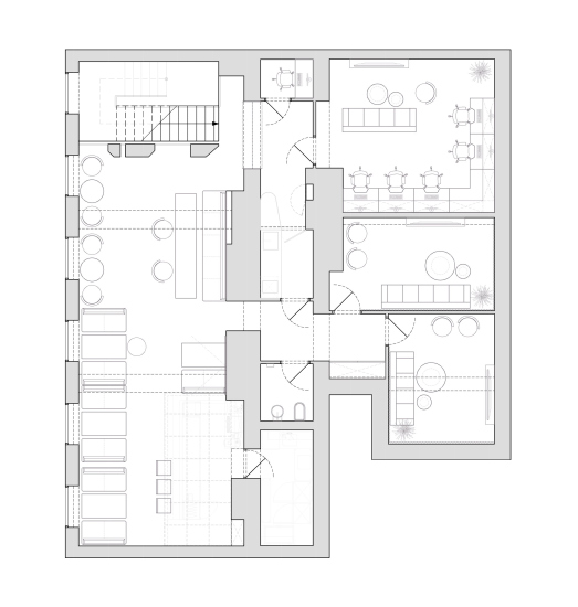
На основном этаже расположились кафе и просторный лаунж-зал с большими окнами и несколькими столами для разного по количеству участников компаний. Мебель имеет лаконичный дизайн, но за счет столов из прозрачного и белого матового оргстекла с подсветкой, которым вторит такой же подвесной потолок над баром, кажется, что так мог бы выглядеть и какой-то бар на космической станции.
Киберспортивный клуб Gosu Cyber Lounge
Фотография © Анастасия Самойлова / предоставлена Дизайн-бюро «Уголок»
Здесь царит оранжевый цвет, в который окрашены и пол, и потолок. На серых стенах, часть из которых облицована металлическими панелями, а часть оштукатурена и окрашена, выделяются неоновые надписи и большие плазмы, на которых идут трансляции онлайн-игр. Интересные, словно бы оплывшие в процессе формовки колонны на входе добавляют пространству интриги.
Киберспортивный клуб Gosu Cyber Lounge
Фотография © Анастасия Самойлова / предоставлена Дизайн-бюро «Уголок»
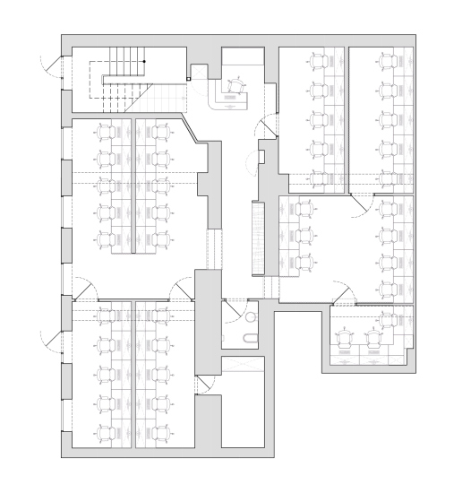
На нижнем этаже все иначе, за исключением фирменного оранжевого цвета на полу и потолке. Отсутствие окон и естественного света компенсируется встроенной разноцветной подсветкой. Расслабленная атмосфера лаунжа меняется на полумрак и драйв, которые должны помочь игрокам сконцентрироваться на онлайн-драматургии. Места вдоль стен заняты столами с компьютерами и суперэргономичными креслами. Здесь тренируются чемпионы киберспорта, и все, что их окружает, соответствует их чемпионскому статусу.
Описание предоставлено архитекторами.
Концепция проекта киберспортивного клуба, вдохновленного шедевром Стэнли Кубрика «2001 год: Космическая одиссея», представляет собой слияние футуристической эстетики и современного комфорта. Основная идея заключается в создании пространства, которое удовлетворит потребности геймеров и станет местом для отдыха и общения.
Пространство выполнено в бело-серо-оранжевой гамме с использованием неона, металла из нержавеющей стали, яркого наливного пола охристо-оранжевого оттенка и жесткой по форме серой мебели.
Гибкий светильник, объединяющий пространство, светопрозрачный бар и стол, металлическая стена с интегрированными телевизорами – отсылка к прошлому, где существовали наивные фантазии о цифровом мире, о мире будущего.
Пространство распределено на два этажа. На верхнем уровне располагаются лаунж-зона и бар с уютными столиками, которые размещены у высоких окон. Пластичные и мягкие колонны разбавляют геометричное, а местами даже грубое пространство, создавая контраст.
Нижний уровень отведен для игровых компьютеров. В этом пространстве организованы отдельные помещения, предназначенные специально для командных киберспортивных дисциплин, что позволяет сосредоточиться на стратегии и взаимодействии между собой.
Игровые комнаты исключают попадание естественного освещения, чтобы посетители могли полностью погрузиться в игровой процесс.
Помимо ярко-оранжевого пола и потолка с темными стенами, акцентами здесь выступают неоновые элементы и цветная подсветка.
На первом этаже стены санузла облицованы белой квадратной плиткой. Главное внимание привлекает зеркало – его поверхность украшена стилизованным изображением пришельца, что является смелым акцентом, вызывающим удивление и улыбку.
Санузел на втором этаже выполнен на контрасте с первым. Темные стены создают атмосферу глубины, в то время как большой круглый светильник служит центральным элементом, наполняя пространство мягким светом.
Компьютерный клуб с лаундж-зоной стал не просто местом для игр, а пространством для отдыха и общения.
