Описание предоставлено архитекторами
Бизнес-центр с торговыми и культурно-досуговыми площадками входит в состав большого жилого района, расположенного на границе Санкт-Петербурга и Ленинградской области. Он снижает уровень маятниковой миграции и предлагает место для встреч, что укрепляет добрососедские связи.
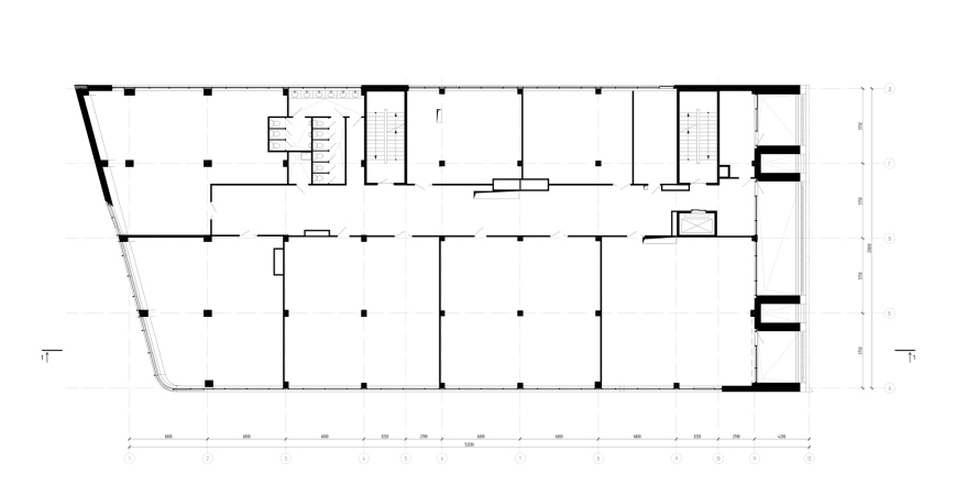
Бизнес-центр Графит в Новоселье
© FUTURA-ARCHITECTS
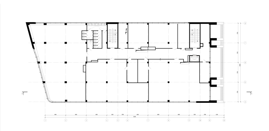
Бизнес-центр Графит в Новоселье
© FUTURA-ARCHITECTS
Бизнес-центр выполнен в виде параллелепипеда с наклоном в сторону КАД, что придает ему внутреннюю напряженность и сходство с кораблем. Наклон также связан с природными особенностями места: здание как будто противостоит северным ветрам, которые часто дуют со стороны Финского залива. Словно под воздействием дождя и ветра угол был сглажен, а боковые грани отполированы. Ленточные окна на боковых фасадах подчеркивают направление воздействия сил природы.
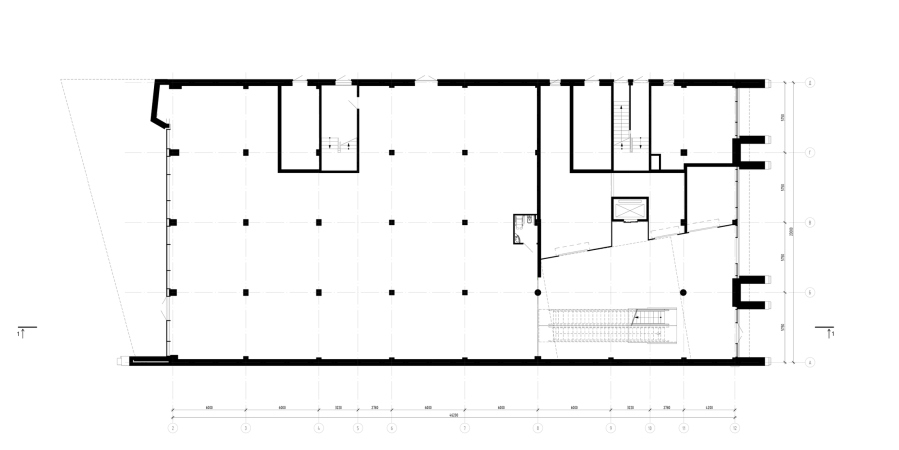
Бизнес-центр Графит в Новоселье
© FUTURA-ARCHITECTS
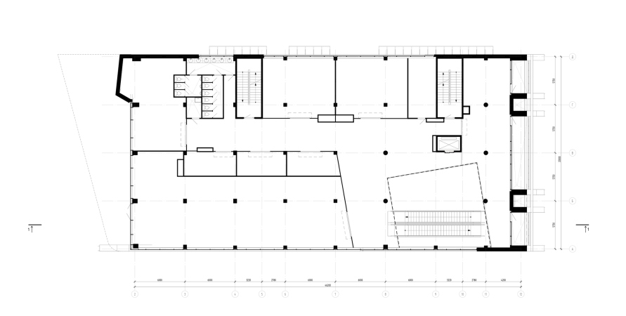
Бизнес-центр Графит в Новоселье
Фотография © Дмитрий Цыренщиков/ предоставлена FUTURA-ARCHITECTS
Линии изгибов авторы заимствовали у гранитных валунов, которые часто можно встретить на берегах Финского залива или Ладожского озера. Ледник, а затем вода и ветер обтесали эти камни до почти идеально гладкого состояния. Так и здание, обращенное к заливу и обдуваемое северными ветрами, приобретает динамичную форму.
Бизнес-центр Графит в Новоселье
Фотография © Любовь Манова / предоставлена FUTURA-ARCHITECTS
Бизнес-центр Графит в Новоселье
Фотография © Любовь Манова / предоставлена FUTURA-ARCHITECTS
Для отделки фасада применялся принцип «природной случайности»: при всем многообразии дикой природы, в ней часто встречаются похожие элементы. Например, на пляже может быть разбросано великое множество камней, но рядом окажутся похожие по составу и форме.
Основной элемент в оформлении фасада – модульная плитка, которая имитирует кирпич. Архитекторы столкнулись с тем, что из-за округлых поверхностей и наклона с одной стороны, а также резких углов – с другой, невозможно было использовать плитку стандартной формы. Поэтому на предприятии «Борисовские мануфактуры» заказали специальные кирпичи с наклоном от 10 до 120 градусов в разных направлениях. В проекте были реализованы и другие нестандартные решения: 12-метровая консоль и гнутые стеклопакеты.
Бизнес-центр Графит в Новоселье
Фотография © Дмитрий Цыренщиков / предоставлена FUTURA-ARCHITECTS
Бизнес-центр Графит в Новоселье
Фотография © Любовь Манова / предоставлена FUTURA-ARCHITECTS
Злаки, высаженные на прилегающих к бизнес-центру участках имитируют природный ландшафт, дополняя лаконичный «северный» стиль здания. Для проекта подбирались экологически чистые стройматериалы, а комплекс энергоэффективных решений минимизирует теплопотери.
Бизнес-центр Графит в Новоселье
Фотография © Любовь Манова / предоставлена FUTURA-ARCHITECTS
Бизнес-центр Графит в Новоселье
Фотография © Любовь Манова / предоставлена FUTURA-ARCHITECTS
