English version

Стримлайн для «городских каньонов»

Степан Липгарт спроектировал два дома для небольших участков в интенсивно застраиваемых новым жильем окрестностях Варшавского вокзала. Расположенные не рядом, но поблизости, различны, но подобны: тема одна, а трактовка разная. Рассматриваем и сравниваем оба проекта.

mainImg
Архитектор:
Степан Липгарт
Проект:
ЖК «Митрофаньевская»
Россия, Санкт-Петербург, Парфеновская улица, участок ж.д. «Варшавский вокзал - М. Митрофаньевская ул., участок 4,

Авторский коллектив:
Руководитель авторского коллектива: С.В. Липгарт
Архитекторы: Е.В. Зотова, И.В. Федоров 

2022

Заказчик:  ООО «СЗ «Митрофаньевское 24» 
ЖК «Парфеновская, 1»
Россия, Санкт-Петербург, Парфеновская улица, участок 1

Авторский коллектив:
Руководитель авторского коллектива: С.В. Липгарт
Архитекторы: Е.В. Зотова, И.В. Федоров 

2022

Заказчик:  ООО «СЗ «Парфеновская 1»
За последние десять лет территория за Обводным каналом между Московским проспектом и Митрофаньевским шоссе преображалась с такой завидной интенсивностью, словно бы она приняла решение «начать жизнь с чистого листа»: тут энергично перевернули «страницу промышленного прошлого», началась глава крупных жилых кварталов.

Девелоперы обратили внимание на эту часть «серого пояса» в начале 2010-х: тогда начали расчищать территорию бывшего завода «Петмол», а также «веер» Варшавского вокзала – комплекс подъездных путей и хозяйственных построек. Сам вокзал был закрыт еще в начале XXI века, долгое время служил торговым центром, а недавний ребрендинг превратил его в крупнейший фудмолл с железнодорожным антуражем. Вот здесь можно посмотреть, что составляло очарование места, за которое какое-то время боролись градозащитники: лаконичные базиликальные корпуса из крупного тяжелого кирпича с клеймами, поросшие травой и мхом поворотные механизмы, деревянные двери. Кое-что отстоять удалось, теперь вызывающе ветхие депо и водонапорные башни ожидают своего плана приспособления в плотном окружении новых домов, промзон под застройку и подходящих к завершению строек.

Впрочем, интенсивная стройка закончится, а место удобное – рядом и центр города, и вода Обводного канала, и метро, и городские магистрали. Так что даже узкие небольшие участки, лакуны, оставшиеся невостребованными после квартально-гнездовой застройки бывших промышленных «полей», – пользуются интересом. Что вполне по-питерски: немотивированных пустот не оставлять. 

С двумя такими участками, относительно небольшими, протяженными и расположенными не то чтобы рядом, но поблизости друг от друга, и поработал Степан Липгарт, предложив дома разные, но перекликающиеся между собой. 
Межгалактические пространства
Первый дом располагается рядом с почтовым пакгаузом, который представляет собой протяженное здание-дебаркадер. Форма участка, учитывая все исторические обстоятельства, причудлива и напоминает пилу: относительно широкая «ручка» располагается со стороны Альбуминной улицы, а «лезвие» уходит за пакгауз. Название улицы, к слову, – напоминание об альбуминном заводе при скотопригонном дворе и бойне, который работал здесь в конце XIX века.  

  
ЖК «Парфеновская, 1». Генплан
© Липгарт Архитектс

Вдоль пакгауза авторы располагают открытые парковочные места, а двухсекционный дом встраивают в общую композицию жилого комплекса «Галактика», превращая его в звено общей цепочки. С востока от него, со стороны Измайловского бульвара, располагается пластина «Галактики», за которой скрываются две жемчужины района: круглое вагоноремонтное депо и бизнес-центр, построенный по проекту Артема Никифорова. Западный фасад выходит на будущий линейный парк и еще один корпус «Галактики», который он до некоторой степени отзеркаливает.   
ЖК «Парфеновская, 1». Вид с северо-запада
© Липгарт Архитектс

Второй участок располагается южнее, на углу Парфеновской и Малой Митрофаньевской улиц. Его форма несколько проще, но все же ощутимо многоугольна, кроме того значительную часть пространства «съедают» площадки встроенного детского сада, а часть территории зарезервирована под будущую улицу и строить на ней нельзя, так что участок еще несколько меньше, чем кажется. Через дорогу – все та же «Галактика» со школой и вагоноремонтным депо, который должен стать торговым центром, с севера – жилой комплекс «Арт-Квартал». Из-за соседства с трамвайным парком из окон даже нижних этажей будут хорошие виды: на краснокирпичные фабрики, конторский корпус хлебозавода Юргенсона, а главное – на территорию Новодевичьего монастыря, расположенного за Московским проспектом.

 

При нынешнем окружении расположение дома – «островное», что однако не мешает ему следовать логике формирования фронта Парфеновской улицы. Этот дом тоже двухсекционный, но вторая секция поставлена ортогонально, образуя Г-образный» план. Первые два этажа занимает встроенный детский сад. 
ЖК «Митрофаньевская». Генплан
© Липгарт Архитектс
ЖК «Митрофаньевская». Вид с юго-запада
© Липгарт Архитектс
Выступ и выемка
Главный прием, который Степан Липгарт использует для обоих домов – чередование ребер и уступов, был предложен в 1922 году Элиэля Саариненом, а затем подхвачен и развит авторами ар-деко. 

В данном случае за основу взят 40-метровый объем – «глыба», из ее массы архитектор «вынимает лишнее», облегчая объем от нижних этажей к верхним. Основа, «тело» дома при этом сохраняется, снимаются лишь внешние «слои», в результате чего пластически он напоминает каньон, породу которого годами точили вода и ветер. «Телескопичность» усилена за счет контрастных по цвету и фактуре материалов. Геометричным формам сопутствует детализация: фактурная плитка или кирпич, скругленные углы, решетки французских балконов, поднятые на всю высоту дома пилоны, каннелированные пояски.  

Выступы и выемки появляются не случайно, а только в тех местах, где предполагается хороший вид – на центр города, воду, Варшавский вокзал или Новодевичий монастырь. Все это придает дому качество круговой скульптуры – каскады выступов делают фасады со всех сторон разными, ракурсы меняют восприятие дома, появляется непривычно сложный для типологии силуэт. Порталы входных групп тоже решены щедро, в духе ар-деко Степана Липгарта это – двухсветные, стройные углубленные лоджии, со стеклом на всю высоту и откосами: то срезанными, граненными – то скругленными по циркулю таким образом, что выступу с одной стороны вторит выемка с другой, как будто перед нами расступилась стена – «Сим-Сим»; удивительно, что и каскады вырезов на каком-то не очень уловимом уровне подхватывают тему, то ли они часть скалы, то ли имеют отношение к восточной сказке. Так или иначе, входы не перегружены, но импозантны благодаря пропорциям, и перекликаются с вырезами объемов над ними. 

Впрочем, дома получились не только схожими – срифмованными в ряде приемов, но и совсем разными по настроению, прежде всего за счет отделочных материалов. 
ЖК «Парфеновская, 1». Вид с юго-запада
© Липгарт Архитектс
ЖК «Митрофаньевская». Общий вид с северо-запада (со стороны Парфеновской улицы)
© Липгарт Архитектс
Изразцовые ярусы
В облицовке дома на Парфеновской используется светлая штукатурка, а в местах «выемок» – объемная керамическая плитка изумрудного цвета, которая заставляет вспоминать изразцовые камины. Похожая, кажется, использована на станции метро «Лесная».  

«Выемки» располагаются только на двух фасадах. В торце, обращенном к почтовому пакгаузу, белым негативом на изумрудном фоне проявлен силуэт ступенчатой башни. У нее есть вертикальная ось, относительно которой одна из половин развернута на 90 градусов. Такой прием делает стену весомее и усложняет отношения застекленных и глухих частей, создает больше пластических «событий». 
ЖК «Парфеновская, 1». Вид с северо-востока
© Липгарт Архитектс

Второй «испещренный» фасад смотрит в сторону БЦ «Депо №1» и путей Балтийского вокзала, но фактически – все же на равный по высоте дом «Галактики». Проработка именно этой стороны объясняется тем, что ее будут видеть гуляющие по Линейному парку. Здесь уступы формируют четыре «башни», которые разделяют поднятые на всю высоту дома пилоны: есть в них что-то от водосточных труб, даже канавки напоминают места стыков желобов. Ярусы башен подчеркнуты широкими каннелированными «фризами». Жесткую и проявленную сетку фасада заполняют окна с французскими балконами, стрельчатые решетки которых дополнены бордюрами объемной плитки. Углы выемок и ребра «башен» скруглены в духе «стримлайна», что еще больше отделяет их от тела дома. Многоквартирный, длинный и высокий дом? Да. Но видел ли вообще Петербург комфорт-класс с такой степенью детализации и присутствия архитектуры? Другая сторона дома, впрочем, как сторона медали – более однообразна, но радует спокойными пропорциями и ясным ритмом.
  • zooming
    1 / 4
    ЖК «Парфеновская, 1».Панорамный вид с юго-запада
    © Липгарт Архитектс
  • zooming
    2 / 4
    ЖК «Парфеновская, 1». Фрагмент восточного фасада
    © Липгарт Архитектс
  • zooming
    3 / 4
    ЖК «Парфеновская, 1». Фотомонтаж. Вид с юго-восточной стороны
    © Липгарт Архитектс
  • zooming
    4 / 4
    ЖК «Парфеновская, 1». Фотомонтаж. Вид с северо-запада
    © Липгарт Архитектс

Отдельно стоит сказать о входных группах и уровне первых этажей, где встречаются все выбранные фактуры, материалы и пластические приемы. Портал входа заглублен, но при этом поднят до уровня второго этажа, а созданная выступом и выемкой «волна» затягивает приходящего внутрь. Здесь человеку предоставлен богатый сенсорный опыт: матовость штукатурки, глянец глазурованной плитки, игра света на ее рельефе, металлический холод и колкость решеток балконов, смена плавных линий острыми углами. Дом хочется потрогать рукой – такая тактильная притягательность, это, как мы знаем, хороший признак. 
ЖК «Парфеновская, 1».Вид на входную группу
© Липгарт Архитектс
Стимпанк-Петербург
Если предыдущий дом материалами и колористическим решением следует скорее за «Галактикой», то второй – полностью на стороне кирпичного прошлого территории. К этому располагает его относительная независимость от решений ППТ, а также визуальное соседство с вагоноремонтным депо и комплексом построек Петроградского механического хлебозавода. 
ЖК «Митрофаньевская». Вид с юго-востока (со стороны двора)
© Липгарт Архитектс

В торцах дома более акцентированы выемки, а не выступы: здесь образовались целые «разломы», а общее движение обратное – от прорыва к обрушению. Впрочем, возможно, что это оптическая иллюзия: кто к чему расположен, то и видит, как на известном кубе Неккера. Мне больше нравится видеть, что здесь Степан Липгарт обратился к эстетике руин Варшавского вокзала, а серая плитка – это следы паровозной копоти. Дом как будто оседает: у него нет широкой базы, этажность ярусов увеличивается. Один из торцов дома – классический брандмауэр, абрис которого напоминает фабричную башню.  
ЖК «Митрофаньевская». Вид с северо-востока
© Липгарт Архитектс

Этот дом более заостренный: вместо скругления – дополнительные грани, фризы подчеркивает объемная кладка, выдвигающая углы кирпича. Любопытная деталь на уровне первого этажа: ниспадающие тонкой треугольной бахромой рельефные кирпичные полосы, напоминающие то ли о вольной трактовке любимого приема Сецессиона, то ли вариант декора ЖК Alter на Магнитогорской улице.   
ЖК «Митрофаньевская». Вид на входную группу
© Липгарт Архитектс
  • zooming
    1 / 3
    ЖК «Митрофаньевская». Панорамный вид с юго-запада
    © Липгарт Архитектс
  • zooming
    2 / 3
    ЖК «Митрофаньевская». Фотомонтаж. Вид с юго-западной стороны
    © Липгарт Архитектс
  • zooming
    3 / 3
    ЖК «Митрофаньевская». Фотомонтаж. Вид с северо-западной стороны
    © Липгарт Архитектс

***

В данный момент уже известно, что дома не будут построены, однако проекты создают интересный прецедент. Учитывая контекст, ограничения и тип жилья, Степан Липгарт вместо излюбленной им стилистики 1930-х выбирает несколько иную версию ар-деко, более сдержанную по части деталей, но работающую на уровне нюансов: как будто «разрезает» простой объем, но не резким сечением тесака, а каким-то сложным инструментом, то ли из арсенала скульптора, то ли предназначенным для линогравюры, то скругленным, то ребристым. Сдержанно-цветная плитка, проступающая на разрезе, как будто указывает нам на то, что дом-то, на самом деле, внутри сделан из какого-то иного, более ценного материала. Как будто шел по пляжу, разбил известняковый валун, и нашел внутри маленькую аметистовую щетку. Вроде бы и мелочь, а приятно. 
  • zooming
    1 / 7
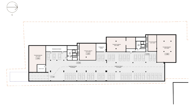
    ЖК «Парфеновская, 1». План подвального этажа на отметке -4.100
    © Липгарт Архитектс
  • zooming
    2 / 7
    ЖК «Парфеновская, 1». План 1 этажа
    © Липгарт Архитектс
  • zooming
    3 / 7
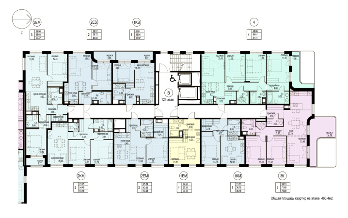
    ЖК «Парфеновская, 1».Секция А. План 12 этажа
    © Липгарт Архитектс
  • zooming
    4 / 7
    ЖК «Парфеновская, 1». Секция А. План типового этажа
    © Липгарт Архитектс
  • zooming
    5 / 7
    ЖК «Парфеновская, 1». Секция Б. План типового этажа
    © Липгарт Архитектс
  • zooming
    6 / 7
    ЖК «Парфеновская, 1». Секция Б. План 12 этажа
    © Липгарт Архитектс
  • zooming
    7 / 7
    ЖК «Парфеновская, 1». Разрез
    © Липгарт Архитектс
  • zooming
    1 / 7
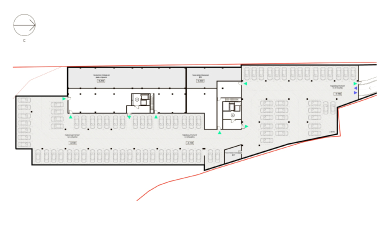
    ЖК «Митрофаньевская». Схема подвала с подземным паркингом на отметке -4.100
    © Липгарт Архитектс
  • zooming
    2 / 7
    ЖК «Митрофаньевская». План 1 этажа
    © Липгарт Архитектс
  • zooming
    3 / 7
    ЖК «Митрофаньевская». Секция А. План типового этажа
    © Липгарт Архитектс
  • zooming
    4 / 7
    ЖК «Митрофаньевская». Секция А. План 8 этажа
    © Липгарт Архитектс
  • zooming
    5 / 7
    ЖК «Митрофаньевская». Секция Б. План типового этажа
    © Липгарт Архитектс
  • zooming
    6 / 7
    ЖК «Митрофаньевская». Секция Б. План 8 этажа
    © Липгарт Архитектс
  • zooming
    7 / 7
    ЖК «Митрофаньевская». Разрез
    © Липгарт Архитектс
Архитектор:
Степан Липгарт
Проект:
ЖК «Митрофаньевская»
Россия, Санкт-Петербург, Парфеновская улица, участок ж.д. «Варшавский вокзал - М. Митрофаньевская ул., участок 4,

Авторский коллектив:
Руководитель авторского коллектива: С.В. Липгарт
Архитекторы: Е.В. Зотова, И.В. Федоров 

2022

Заказчик:  ООО «СЗ «Митрофаньевское 24» 
ЖК «Парфеновская, 1»
Россия, Санкт-Петербург, Парфеновская улица, участок 1

Авторский коллектив:
Руководитель авторского коллектива: С.В. Липгарт
Архитекторы: Е.В. Зотова, И.В. Федоров 

2022

Заказчик:  ООО «СЗ «Парфеновская 1»

10 Марта 2023

Липгарт Архитектс: другие проекты
Недра земли, потоки воды
В районе Малой Охты по проекту Степана Липгарта построен дом Akzent. Он имеет классическую трехчастную структуру и при этом, что называется, нарисован от руки: фасады отличаются друг от друга как пластикой, так и разнообразными деталями, не все из которых открываются с первого взгляда. Рассказываем о контексте и вместе с архитектором разбираемся в том, как создавалась форма.
Hide and seek
Дом ID Moskovskiy, спроектированный Степаном Липгартом во дворах у Московского проспекта за Обводным каналом и завершенный недавно, во-первых, достаточно точно реализован, что существенно еще и потому, что это первый дом, в котором архитектор отвечал не только за фасады, но и за планировки, и смог лучше увязать их между собой. Но интересен он как пример «прорастания» новой архитектуры в городе: она опирается на лучшие образцы по соседству и становится улучшенной и развитой суммой идей, найденных в контексте.
Тайный британец
Дом называется «Маленькая Франция». Его композиция – петербургская, с дворцовым парадным двором. Декор на грани египетских лотосов, акротериев неогрек и шестеренок тридцатых годов; уступчатые простенки готические, силуэт центральной части британский. Довольно интересно рассматривать его детали, делая попытки понять, какому направлению они все же принадлежат. Но в контекст 20 линии Васильевского острова дом вписался «как влитой», его протяженные крылья неплохо держат фасадный фронт.
Лепка ракурсом
Степан Липгарт внедряет на окраине Казани «схематизированное ар-деко», да еще и зеленого цвета, со стеклянистой корочкой на фасадах. Главные достоинства проекта – он тщательно выстраивает ракурсы, стремясь сформировать в непростом окружении зародыш города не только в смысле пешеходности, но и пластически. Работает с силуэтами, предлагает любопытные треугольные «горки» террас. Да и выстроен он как кристалл, по двум сеткам, ортогональной и диагональной. Что получилось, что нет, в чем особенности – читайте в тексте.
Золотное шитье
Пятиэтажный клубный дом, спроектированный Степаном Липгартом в Казани, реагирует на разностилевой контекст цельностью и одновременно подвижностью формы, а на соседство с театром «Экият» – сходством со складками театрального занавеса и активной пластикой балконов, в которой прочитывается сходство с театральными ложами. Он весь немного «на котурнах», но обобщен и современен. В нем даже не так просто найти элементы ар-деко, хотя дух тридцатых, пропущенный через фильтр неомодернизма, все же чувствуется. Как и Восток.
Ар-деко на границе с Космосом
Конкурсный проект Степана Липгарта – клубный дом сдержанно-классицистической стилистики для участка в близком соседстве со зданием Музея космонавтики в Калуге – откликается и на контекст, и на поставленную заказчиком задачу. Он в меру респектабален, в меру подвижен и прозрачен, и даже немного вкапывается в землю, чтобы соблюсти строгие высотные ограничения, не теряя пропорций и масштаба.
Год 2021: что говорят архитекторы
Вот и наш новый опрос по итогам 2021 года. Ответили 35 архитекторов, включая главных архитекторов Москвы и области. Обсуждают, в основном, ГЭС-2: все в восторге, хотя критические замечания тоже есть. И еще почему-то много обсуждают минимализм, нужен и полезен, или наоборот, вреден и скоро закончится. Всем хорошего 2022 года!
Выходи во двор
Бывшая текстильная фабрика «Красное знамя» на Петроградской стороне, построенная при участии Эриха Мендельсона, превратится в жилой квартал. Рассматриваем концепции благоустройства дворовых территорий, созданные молодыми архитекторами под руководством Степана Липгарта и бюро ХВОЯ.
Поток и линии
Проекты вилл Степана Липгарта в стиле ар-деко демонстрируют технический символизм в сочетании с утонченной отсылкой к 1930-м. Один из проектов бумажный, остальные предназначены для конкретных заказчиков: топ-менеджера, коллекционера и девелопера.
Полифония строгого стиля
Проект жилого комплекса «ID Московский» на Московском проспекте в Петербурге – работа команды Степана Липгарта минувшего 2020 года. Ансамбль из двух зданий, объединенных пилонадой, выполнен в стиле обобщенной неоклассики с элементами ар-деко.
Кирпичный дом в большом городе
Сознавая весь романтизм и харизматичность кирпичной архитектуры, Степан Липгарт поработал с темой кирпичного дома в Петербурге и решил две теоремы, предложив башни американского ар-деко для более высокого ЖК Alter на Магнитогорской улице и чувственную пластику ар-деко в коктейле с лофтовой эстетикой для дома на Малоохтинском проспекте.
Союз искусства и техники
Интерес к архитектуре 1930-х для Степана Липгарта – путеводная звезда. В проекте дома «Amo» на Васильевском острове в Санкт-Петербурге архитектор взял за точку отсчета московское ар-деко – эстетское, с росписями в технике сграффито. И заодно развил типологию квартала как органической структуры.
Картинки на карантине
Как российские архитектурные бюро реагируют на карантин? Размышления о будущем, графика, юмор, хорошие фотографии. Собираем пазл из контента Instagram.
Паломничество в страну ар-деко
В ЖК «Маленькая Франция» на 20-й линии Васильевского острова Степан Липгарт собеседует с автором Нового Эрмитажа, мастерами Серебряного века и советского ар-деко на интересные профессиональные темы: дом с курдонером в историческом Петербурге, баланс стены и витража в архитектонике фасада. Перед вами результаты этой виртуальной беседы.
Степан Липгарт: «Гнуть свою линию – это правильно»
Потомок немецких промышленников, «сын Иофана», архитектор – о том, как изучение ордерной архитектуры закаляет волю, и как силами нескольких человек проектировать жилые комплексы в центре Петербурга. А также: Дед Мороз в сталинской высотке, арка в космос, живопись маньеризма и дворцы Парижа – в интервью Степана Липгарта.
Линия отягощенного порыва
Жилой комплекс «Ренессанс» архитектора Степана Липгарта продолжает линию исторического центра Санкт-Петербурга и переосмысляет ленинградское ар деко и неоклассику 1930-50-х применительно к цивилизационным вызовам нашего века.
Похожие статьи
Река и виадук
Новый парк площадью почти 50 га в новой части мегаполиса Чанчунь на самом северо-востоке Китая вписан в сложный участок с рекой и виадуком. Авторы проекта – шанхайское бюро SHUISHI.
Богадельня XXI века
Как лучшее здание Великобритании отмечен Премией Стерлинга социальный жилой комплекс для пожилых Appleby Blue в лондонском округе Саутуарк. Авторы проекта – Witherford Watson Mann Architects.
Новый путь
Главная особенность проекта Яр Парка, спроектированного Сергеем Скуратовым в Казани – он объединен вдоль «хребта» многофункционального молла с эффектным многосветным пространством. А вся территория на уровне города: со стороны как жилых районов, так и набережной Казанки – открыта для горожан. Комплекс призван стать не «очередным забором», а, как говорят градостроители, «полицентром» – местом притяжения для всей Казани и особенно ее северной, состоящей из микрорайонов, части, ранее не знавшей столь активного общественного пространства. Новый градостроительный подход к высокоплотному многофункциональному комплексу в центре города. В некотором роде – антиквартал. Такого и в Москве, с позволения сказать, пока что не было. Ура Казани.
Под небом голубым
По проекту «Студии 44» в национальном парке «Кенозерский» будет построен депозитарий, предназначенный для хранения и экспонирования «небес» – характерного для деревянного храмового зодчества Русского Севера потолочного перекрытия, расписанного на библейские сюжеты. Для каждого «неба» архитекторы создали объем, по габаритам и масштабам приближенный к их родному храму. Получились «соты», чей модуль основан прямо на исходных памятниках и позволяет смотреть на иконы в исторически мотивированном ракурсе, снизу вверх. А вот как это устроено – читайте в нашем тексте.
Крыша из чешуек
Здание плавательного бассейна по проекту бюро LYCS Architecture в Цзяншане на востоке Китая свернулось как серебристая змея между рекой и лесистым холмом.
Равнение на Дунай
Zaha Hadid Architects совместно с мастерской Bureau Cube Partners выиграли конкурс на проект башни для сербского банка Alta в Белграде.
Сила линий
Здание в самом начале Нового Арбата – результат долгих размышлений о вариантах замены Дома Связи. Оно стало заметным акцентом как в перспективе бывшего проспекта Калинина, так и в панораме Арбатской площади. Хотя авторский замысел реализован увы, не целиком. В 2020 году архсовет поддержал проект здания с экзоскелетом: внешней несущей конструкции сродни ферме. Она превратилась в декоративную – но сила суперграфики все же «держит» здание, придает ему качество акцента иконического плана. Как сложился замысел, какие неочевидные аллюзии, вероятно, лежат в основе формы сетки и почему не реализован экзоскелет – читайте в нашей статье.
Жителям каменоломни
Архитекторы DRNH вписали жилой комплекс «Диорит» в заброшенный карьер на окраине чешского города Брно, сохранив и даже развив местную экосистему.
Гнезда в Приморье
Проект эко-парка «Гнезда», разработанный Алексеем Полищуком и компанией Пауэр Технолоджис, был отмечен первой премией фестиваля Союза архитекторов Эко-Берег 2025. Для глэмпминга в Филинской бухте авторы предложили дома-птицы, дома на деревьях, смотровую площадку-гнездо и входной акцент – павильон в виде филина.
С открытым сердцем
Модульное здание общежития для студентов Делфтского технического университета возвели всего за 26 недель. Авторы проекта – бюро Studioninedots.
Пиранези для первокурсников
В калифорнийском Клермонтском колледже открылось первое из запланированных зданий по проекту BIG: Научный центр имени Роберта Дея, где масштабные стальные фермы снаружи обшиты стеклофибробетоном, а внутри – древесиной.
Больше арок
В Сент-Луисе после реконструкции по проекту Snøhetta открылся концертный зал городского симфонического оркестра.
Бумеранг на скалах
Архитекторы Snøhetta вписали здание рыболовецкой и рыбоводческой компании Magne Arvesen & sønner в скалистый берег острова Андёрья на севере Норвегии.
Дыхание банковского дела
Новая штаб-квартира банка Lombard Odier на берегу Женевского озера задумана авторами проекта, Herzog & de Meuron, «дышащей», открытой природному окружению.
Пещеры и каньоны
В Алматы открылся частный музей современного искусства, построенный по проекту Chapman Taylor и CT Architects. Архитектурное решение обыгрывает контраст между статикой горного массива и динамикой современного города. Центральный атриум отсылает к линиям Чарынского каньона.
Взращенный на молоке
Жилой дом FRESH по проекту бюро KAAN как будто приобнял консольным выносом исторический корпус бывшего молокозавода в Эйндховене.
Угол натяжения струн
Дом Музыки, спроектированный Владимиром Плоткиным и архитекторами ТПО «Резерв», напоминает арфу, а при взгляде сверху еще и басовый ключ. Но если бы все было так просто. В архитектуре зданий комплекса соседствуют два вида образности: решетчатый, прозрачный и проницаемый язык «классического» модернизма и объемно-скульптурные ленты, любимые неомодернизмом нашего времени. Как все устроено, где катарсис, а где оси построения, где проект похож на ЦКЗ Зарядье, а где не очень – читайте в нашем тексте.
Лечебный трилистник
Модульная стальная конструкция больницы в Ханчжоу по проекту Архитектурного института Чжэцзянского университета (UAD) позволила сократить время и бюджет строительства. «Футуристический» замысел авторов при этом не пострадал.
Петербург vs Рим
Центр Петербурга, как известно, священен, – но мало кто всерьез знает, где он начинается и заканчивается. Речь не о формальном признаке «от Обводного канала до Большой Невки», а о «вайбе», соответствующем центру города. Реализовав квартал «Невской ратуши» – по проекту, победившему в международном конкурсе – Евгений Герасимов и Сергей Чобан создали на его территории «образ центра». Причем не столько петербургского, сколько общемирового. Это ново, такого в Питере давно не было... Изучаем атмосферу, вспоминаем прообразы, в том числе раздумываем о том, кто и когда назвал Петербург новым Римом. Не зря, получается, идея-то живет.
Свет в пустоте
Культурный центр «Чжанбэйский мираж», расположенный среди полей северо-востока Китая, превращен бюро Puri Lighting Design в гигантскую световую инсталляцию.
Как старинный Тобольск становится порталом в будущее
За последнее десятилетие архитектурное бюро Wowhaus подготовило концепции развития для ряда российских городов – Выксы, Тулы, Нижнекамска. На этом фоне мастер-план Тобольска выделяется своим масштабом – охваченная преобразованиями территория превышает 220 км² – и сложностью.
На волне
Проект преобразования речного порта и набережной в Чебоксарах, разработанный архитектурным бюро АТРИУМ, затрагивает одну из ключевых территорий города. Набережная превращается в Речной бульвар – многофункциональное, комфортное и выразительное пространство для работы и отдыха. Авторы предлагают создать новую связь с главной площадью города – Красной, а также возвести несколько жилых башен, вдохновленных формой национального женского головного убора и способных стать ярким акцентом волжской панорамы.
Внимание на угол
Комплекс 5Tracks по проекту Shift Architecture & Urbanism и Powerhouse Company в нидерландском городе Бреда соединяет крытые общественные пространства с жильем и офисами, заполняя лакуну рядом с главным вокзалом.
Заряд энергии
Бюро CNTR спроектировало для нового спортивного кластера на окраине Екатеринбурга автозаправочную станцию, сумев превратить небольшой объект в локальную доминанту: что-то вроде въездного знака, который рассказывает об окружающей территории и задает тон. А кроме того – демонстрирует разнообразные архитектурные приемы. Даже неподготолвенный зритель, приехав заправить машину, почувствует движение и статику, игру с массой, сочетание пятна и линии.
Технологии и материалы
​Крыша в цветах
ПВХ-мембраны – один из ключевых материалов для современной кровли, сочетающий высокую гидроизоляцию, долговечность и эстетическую гибкость. В отличие от традиционных рулонных покрытий, они легче, прочнее, а благодаря разнообразной палитре – позволяют реализовать полноценный «пятый фасад».
Четыре сценария игры
Летом 2025 года АБ «МЕСТО» совместно с префектурой района Строгино завершила комплексное благоустройство на Таллиннской улице. Были реализованы четыре уникальные игровые площадки общей площадью 1500 кв. м. – многослойная среда для развития и приключений, которая учит и вдохновляет.
Цифровая печать – для архитектурных задач
Цифровая печать на алюминиевых и стальных композитных панелях выводит концепцию современных фасадов на новый уровень, предлагая архитекторам инструмент для создания сложных визуальных эффектов – от точной аналогии с натуральными материалами до перфорации и создания 3D объема на плоской металлокомпозитной кассете.
Кирпич с душой
Российская керамика «Донские зори» обновила коллекции облицовочного кирпича, объединяющие традиционные технологии с современными производственными возможностями. Их особенность – в неоднородной фактуре с нюансами оттенков, характерными для ручной формовки.
Баварская кладка в Ижевске
ЖК «ARTNOVA» стал в Ижевске пилотным проектом комплексного развития территории и получил признание профессионального сообщества. Одним из ключевых факторов успеха является грамотное решение фасадных систем с использованием облицовочного кирпича.
Формула света
Как превратить мансардное пространство из технического чердака в полноценное помещение премиум-класса? Ключевой фактор – грамотное проектирование световой среды. Разбираемся, как оконные решения влияют на здоровье жильцов и какие технологии помогают создавать по-настоящему комфортные пространства под крышей.
Будущее за химически упрочненным стеклом
В архитектуре премиум-класса безупречный внешний вид остекления – ключевое требование. Однако традиционно используемое термоупрочненное стекло часто создает оптические искажения. Российская Стекольная Компания (РСК) представляет инновационное для российского рынка решение этой проблемы – переработку стекла методом химического упрочнения.
Архитектура игры
Проекты научных детских площадок от компании «Новые горизонты» – основаны на синтезе игры, образования и городской среды. Они создают принципиально новый уровень игрового опыта, провоцирующий исследовательский интерес, и одновременно работают как градостроительная доминанта, формирующая уникальный образ места и новую точку притяжения.
Фасадные системы Sun Garden: технологии СФТК Церезит в...
Комплекс Sun Garden в Джемете (Анапа) демонстрирует специфику применения штукатурных систем фасадной теплоизоляции в условиях агрессивной приморской среды. Проект потребовал разработки дифференцированного подхода к выбору материалов для различных архитектурных элементов: от арочных галерей до многоуровневых террас.
Бесшовные фасады: как крупноформатные стеклопакеты...
Прозрачные бесшовные фасады, еще недавно доступные лишь в проектах уровня Apple Park, теперь можно реализовать в России благодаря появлению собственного производства стеклопакетов-гигантов у компании Modern Glass. Разбираемся в технологии и смотрим кейсы со стеклопакетами hugesize от Алматы до Москвы.
Локализация против санкций: решения для остекления
Новый пакет ограничений Евросоюза создал серьезные вызовы для российской строительной отрасли в сфере остекления, непосредственно затронув профильные системы, фурнитуру и алюминиевые конструкции. Для проектировщиков это означает необходимость пересмотра привычных спецификаций и поиска новых технических решений.
LVL брус в большепролетных сооружениях: свобода пространства
Высокая несущая способность LVL бруса позволяет проектировщикам реализовывать смелые пространственные решения – от безопорных перекрытий до комбинированных систем со стальными элементами. Технология упрощает создание сложных архитектурных форм благодаря высокой заводской готовности конструкций, что критично для работы в стесненных условиях существующей застройки.
Безопасность в движении: инновационные спортивные...
Безопасность спортсменов, исключительная долговечность и универсальность применения – ключевые критерии выбора покрытий для современных спортивных объектов. Компания Tarkett, признанный лидер в области напольных решений, предлагает два технологичных продукта, отвечающих этим вызовам: спортивный ПВХ-линолеум Omnisports Action на базе запатентованной 3-слойной технологии и многослойный спортивный паркет Multiflex MR. Рассмотрим их инженерные особенности и преимущества.
​Teplowin: 20 лет эволюции фасадных технологий – от...
В 2025 году компания Teplowin отмечает 20-летие своей деятельности в сфере фасадного строительства. За эти годы предприятие прошло путь от производителя ПВХ-конструкций до комплексного строительного подрядчика, способного решать самые сложные архитектурные задачи.
«АЛЮТЕХ»: как технологии остекления решают проблемы...
Основной художественный прием в проекте ЖК «Level Причальный» – смелый контраст между монументальным основанием и парящим стеклянным верхом, реализованный при помощи светопрозрачных решений «АЛЮТЕХ». Разбираемся, как это устроено с точки зрения технологий.
Искусство прикосновения: инновационные текстуры...
Современный интерьерный дизайн давно вышел за пределы визуального восприятия. Сегодня материалы должны быть не только красивыми, но и тактильными, глубокими, «живыми» – теми, что создают ощущение подлинности, не теряя при этом функциональности. Именно в этом направлении движется итальянская фабрика Iris FMG, представляя новые поверхности и артикулы в рамках линейки MaxFine, одного из самых технологичных брендов крупноформатного керамогранита на рынке.
Как бороться со статическим электричеством: новые...
Современные отделочные материалы всё чаще выполняют не только декоративную, но и высокотехнологичную функцию. Яркий пример – напольное покрытие iQ ERA SC от Tarkett, разработанное для борьбы со статическим электричеством. Это не просто пол, а интеллектуальное решение, которое делает пространство безопаснее и комфортнее.
​Тренды остекления аэропортов: опыт российских...
Современные аэровокзалы – сложные инженерные системы, где каждый элемент работает на комфорт и энергоэффективность. Ключевую роль в них играет остекление. Архитектурное стекло Larta Glass стало катализатором многих инноваций, с помощью которых терминалы обрели свой яркий индивидуальный облик. Изучаем проекты, реализованные от Камчатки до Сочи.
​От лаборатории до фасада: опыт Церезит в проекте...
Решенный в современной классике, ЖК «На Некрасова» потребовал от строителей не только технического мастерства, но и инновационного подхода к материалам, в частности к штукатурным фасадам. Для их исполнения компанией Церезит был разработан специальный материал, способный подчеркнуть архитектурную выразительность и обеспечить долговечность конструкций.
Сейчас на главной
Лечение природой, лечение искусством
Бывшая поликлиника, запланированная, но не реализованная из-за Второй мировой как большая больница с потенциалом «лечения природой» – в проекте Александра Деринга и ТМ «Классика» становится арт-кластером. Нередкое для наших времен превращение. Редким, пожалуй, стоит назвать то внимание, с которым архитекторы подошли к истории зданий и местности. Даже название проекту дали – «Дети Бурлакова». В честь автора приспособляемых строений.
«На грани»: интервью с куратором «Зодчества 2025» Тиграном...
С 4 по 6 ноября в московском Гостином дворе состоится XXXIII Международный архитектурный фестиваль «Зодчество». В этом году его приглашенным куратором стал вице-президент Союза московских архитекторов, основатель бюро STUDIO-ТА Тигран Бадалян.
Вариация фахверка
Конструкция дома, построенного в Ленинградской области по проекту бюро SOLOarch, представляет собой силовой каркас из клееной древесины. Акцентом выступила остекленная наклонная стена, которая открывает из двусветной гостиной панорамный обзор на лес. Динамику этого элемента продолжает обратный уклон кровли, а рейки разного сечения на фасадах связывают разные корпуса в единый комплекс.
Архитектура здоровья
Бюро archCLOUD подготовило проект реставрации фасадов и обновления интерьеров оздоровительного комплекса «Сосны». Ансамбль на Николиной горе у Москвы-реки включает здания 1930-х и 1960-х годов, а также вышку лифта со смотровой площадкой. Подгоняя корпуса под требования современных норм, архитекторы постарались сохранить черты нескольких советских эпох.
Символы и символы
Министерство культуры и туризма Московской области совместно с АНО «МосОблПарк» провело конкурс «Символы Подмосковья» с целью создания новых художественных форм, отражающих идентичность региона. Показываем не все победившие объекты, а почти все – те, которые нам понравились, 9 из 11. Плюс! Не попавший в число победителей (! а вот так!) объект Александра Бродского.
Традиции троглодитов
Реконструкция отеля Les Roches 5* по проекту Pietri Architectes на Лазурном берегу предлагает современную интерпретацию местных строительных и курортных традиций.
Призы Архитектона
В 2025 году жюри Архитектона рассматривало проекты финалистов в очном формате открытых защит, проходивших прямо в выставочном зале фестиваля. Это довольно увлекательный перформанс – такое редко встречается среди российских премий. Вот бы Зодчеству перенять. Показываем все победившие проекты, включая 4 спецноминации.
Курганы, вепсы и трилобиты
Выставка «Область», открытая на «Архитектоне», представляет собой сумму впечатлений об отдаленных уголках Ленинградской области, которую группы студентов открывали для себя во время трехдневных экспедиций под руководством опытных проводников-архитекторов. Здесь вы не увидите дворцов, церквей и готовых решений, зато точно почувствуете азарт первооткрывателя и подивитесь миру, лежащему по ту сторону градостроительства. Предлагаем небольшой путеводитель по экспозиции.
Следы на камне
ZROBIM architects создало интерьер кафе-пекарни «Синяя птица» в центре Минска, соединив минимализм с эко- и этноэлементами, благодаря которым компактный зал кажется древним святилищем, посвященным культу хлеба.
Сад знаний
Бюро UNK architects и UNK design создали интерьеры кампуса «Летово. Джуниор» при участии NF studio, которая отвечала за образовательную технологию, учитывающую потребности и восприятие детей младшего и среднего школьного возраста.
Такая архитектурная игра
Вчера в Петербурге открылся – второй по счету и обновленный – фестиваль Архитектон. Он рассчитан на целых 10 дней, что для архитектурного фестиваля прямо удивительно. Проходит в Манеже; его тема – Взаимодействие архитектурного цеха с простыми горожанами. Что делается довольно задорно, но в то же время по-питерски сдержанно и элегантно. Экспозиция состоит из 5 выставок, каждая их которых могла бы «потянуть» на отдельный проект. Рассказываем и показываем, что и как смотреть на Архитектоне.
Не для оборотней
Дом Casa Lua, построенный на окраине бразильского мегаполиса Белу-Оризонти по проекту мастерской Tetro, вобрал в себя не только захватывающие виды на город и горы, но и лунный свет.
Три башни под одной крышей
В панораме Заречной части Нижнего Новгорода появился свой горизонтальный небоскреб. «ГОРПРО» накрыли три корпуса ЖК «КМ Ривер Парк» – четвертым: получилась эффектная «горизонтальная балка», ставшая логичным продолжением экспериментов нижегородского застройщика с железобетонными панелями в поисках нового архитектурного языка.
Река и виадук
Новый парк площадью почти 50 га в новой части мегаполиса Чанчунь на самом северо-востоке Китая вписан в сложный участок с рекой и виадуком. Авторы проекта – шанхайское бюро SHUISHI.
Серебряные коньки
Офисный квартал STONE Калужская сопровождают два жилых дома, что делает комплекс, а это именно он, взвешенным с функциональной точки зрения. Архитекторы Kleinewelt сделали дома серебристыми под стать офисным корпусам. В чем сходство, в чем отличия и при чем тут «Серебряные коньки» – читайте в нашем материале.
Мост и модуль
По проекту Parallel architects проведена частичная реновация зданий Международного аграрного университета в Ташкенте. Точечное обновление трех разрозненных блоков сформировало современный облик университетского кампуса, которому очень идет модернизм. Лаконичный мост-переход, динамичный фасад из натурального кирпича и новый входной портал создают среду, по уровню и эстетике сравнимую с международными университетскими центрами.
Богадельня XXI века
Как лучшее здание Великобритании отмечен Премией Стерлинга социальный жилой комплекс для пожилых Appleby Blue в лондонском округе Саутуарк. Авторы проекта – Witherford Watson Mann Architects.
Форма без случайностей
Креативный директор «Генпро» Елена Пучкова – о том, что такое честная современная архитектура: почему важно свести пилоны, как работать с ограниченной палитрой материалов и что делать с любимым медным цветом, который появляется в каждом проекте.
Острова и ножки
Главный архитектор группы RBI Александр Зюзин разработал концепцию общественно-делового кластера для территории у нового морского порта Санкт-Петербурга. Традиционная палитра и отсылки к советскому авангарду сочетаются с зелеными «островами» и бионическими формами. Помимо офисов здание включает музей, спортивный блок, учебный и досуговый центры.
Speed-dating с героями 90-х и другие причины пойти на Архитектон-2025
На этой неделе в петербургском Манеже открывается Архитектон – 10-дневный фестиваль с выставкой, премией и деловой программой, которая обещает северной столице встряску: придет ОАМ, будут новые форматы, обсудят намыв, конкурсы, философское и социальное измерение архитектуры. Советуем запастись абонементом и начать составлять график. В этом материале – хайлайты, на которые мы обратили внимание.
Дан приказ ему на Сити, ей в другую сторону...
Второй по счету конкурс архитектурных идей телеграм-канала Небоскребы привлек профессиональное жюри и присудил, в главной номинации, денежный приз. Как водится, за горизонтальный небоскреб – все остальные, в основном, предложили вертикальные башни... Показываем победившие и не победившие идеи, размышляем о влиянии башни участка номер один. Где? Смотрите ближе к концу материала.
На династической тропе
Дома и таунхаусы комплекса «Царская тропа» строятся в поселке Гаспра – с запада и востока от дворцов бывшей великокняжеской резиденции «Ай-Тодор». Так что одной из главных задач разработавших проект архитекторов бюро KPLN было соответствовать значимому соседству. Как это отразилось на объемном построении, как на фасадах и каким образом авторы используют рельеф – читайте в нашей статье.
Крылья Маяковского
Проект реконструкции главного входа в парк Маяковского в Екатеринбурге, который подготовил Алексей Гуров совместно с Уральским центром реставрации и проектирования, возвращает арке исторический облик и градостроительное значение. Помимо реставрационных работ предусмотрена особая подсветка, цветник, приспособление боковых павильонов, а также восстановление утраченных чугунных торшеров и афишных стен.
Новый путь
Главная особенность проекта Яр Парка, спроектированного Сергеем Скуратовым в Казани – он объединен вдоль «хребта» многофункционального молла с эффектным многосветным пространством. А вся территория на уровне города: со стороны как жилых районов, так и набережной Казанки – открыта для горожан. Комплекс призван стать не «очередным забором», а, как говорят градостроители, «полицентром» – местом притяжения для всей Казани и особенно ее северной, состоящей из микрорайонов, части, ранее не знавшей столь активного общественного пространства. Новый градостроительный подход к высокоплотному многофункциональному комплексу в центре города. В некотором роде – антиквартал. Такого и в Москве, с позволения сказать, пока что не было. Ура Казани.
Перекресток культур
Бюро MAST, вдохновляясь атмосферой Тбилиси, превратило интерьер грузинского ресторана NENE в диалог культур, которым, на самом деле, и является этот прекрасный город.
Пресса: Движимые недвижимостью: Архитектурные и жилищные...
Что можно сказать об архитекторе по его дому, как традиции трансформируются под влиянием разгерметизации сообществ, где прорастают спустя полвека бумажные замки концептуалистов. Поступления на тематические полки ко Дню архитектора.
Песнь совриска и пламени
В минувшие выходные в Выксе торжественно открыли пересобранную на новом месте водонапорную башню 1930-х шуховской решетчатой конструкции, две выставки и «детский технопарк». Развиваясь с 2011 в формате фестиваля современного искусства, город в последние годы заметным образом берет «новую планку»: не забывая о совриске, строит детский образовательный центр и университет, планирует вдвое большие вложения в инфраструктуру. Попробовали суммировать все разноплановые наблюдения, от выставок до завода, в формате репортажа. Что прекрасно и чего не хватает?
Под небом голубым
По проекту «Студии 44» в национальном парке «Кенозерский» будет построен депозитарий, предназначенный для хранения и экспонирования «небес» – характерного для деревянного храмового зодчества Русского Севера потолочного перекрытия, расписанного на библейские сюжеты. Для каждого «неба» архитекторы создали объем, по габаритам и масштабам приближенный к их родному храму. Получились «соты», чей модуль основан прямо на исходных памятниках и позволяет смотреть на иконы в исторически мотивированном ракурсе, снизу вверх. А вот как это устроено – читайте в нашем тексте.