Приглашение вполне логично – кроме того, что архитектор уже работал в Калуге, его работы известны живым интересом к стилистике 1930-х годов, которую Липгарт интерпретирует как умело, так и творчески.
Дом, предложенный для центра Калуги – именно такой. В нем сочетаются сдержанная гибкость линий и респектабельный «каменный» известняковый тон фасадов. Впрочем, для оформления была предложена штукатурка, но в рамках концепции это не очень существенно, поскольку, если бы проект реализовался, можно было бы использовать и фибробетон. Вопрос скорее в предпочтениях формы.
А форма здесь такова, что, не выходя за рамки высотных ограничений и трех этажей Степану Липгарту удалось предложить решение, одновременно монументальное, ритмизованное и стройное, в основном благодаря пропорциям, множеству эркеров, пилонадам, филенкам в простенках и вертикальным желобкам на поверхности стен. И в то же время дом – легкий, прозрачный и гибкий: с большими окнами, множеством террас в верхнем уровне и скругленными углами. Такой дом был бы уместен где-нибудь в Ницце перед Второй мировой, есть в нем несколько неожиданный для Калуги, но понятный для клубного дома сибаритский флёр.
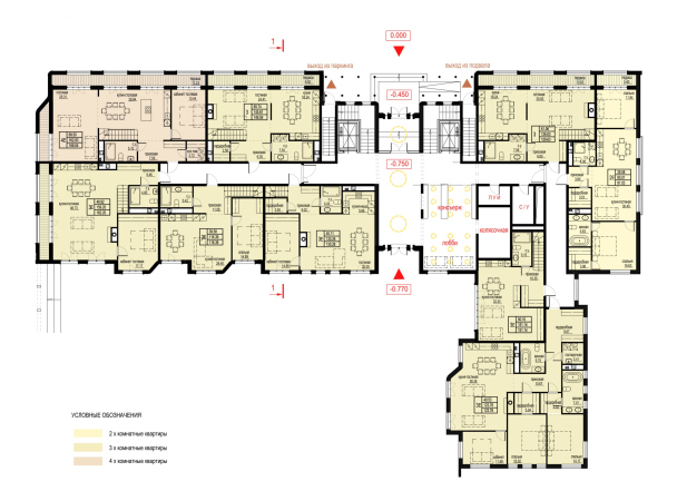
Вид на юго-восточный фасад со двора. Жилой комплекс с подземной автостоянкой на ул. Академика Королева, 3
© Липгарт Архитектс
Проект построен на двух планировочных осях разного характера. Объемы, включая жилые корпуса и въезд в парковку, окружают внутренний двор асимметричной буквой «П», двор раскрыт к улице Королева, с этой стороны расположен главный вход – через ворота, прерывающие высокую пилонаду с решеткой. Он, во-первых, обращен в сторону музея космонавтики и его парка, на свой лад «зеркаликует» рамку входа модернистского здания – это очень контекстуальная идея. Во-вторых, решение – петербургское, отчасти оно напоминает двор Дома Бенуа на Каменноостровском проспекте и многие другие подобные композиции начала XX века.
Общий вид с юга. Жилой комплекс с подземной автостоянкой на ул. Академика Королева, 3
© Липгарт Архитектс
Под двором – один ярус подземной парковки, под домами подвалы, в дальнем углу – детская площадка с амфитеатром, она вынесена за ограду клубного дома и могла бы быть доступна в том числе для горожан.
Вторая ось – поперечная. В основном жилом объеме, вытянутом вдоль улицы Гоголя, ближе к северу был запланирован сквозной трехсветный атриум – на оси, параллельной улице Королева. Она приводила к арт-объекту на восточной границе.
Этот вход не назван главным, но он более импозантен – он «городской». Теоретически здесь, вдоль улицы Гоголя, могла бы сформироваться городская улица: сквер имени того же писателя на противоположной стороне проезда был уравновешен фасадным фронтом, формирующим «красную линию», с углубленной лоджией входа и перголами по сторонам. Внутри – два лестнично-лифтовых холла по сторонам от входа и высокий сквозной проход со стеклянными стенами и каменными порталами, похожими на мраморные рамки античных городов. Симметрично, прозрачно и торжественно. Очевидно, что именно этот вход – «парадное».
Общий вид на входную группу с северо-западной стороны. Жилой комплекс с подземной автостоянкой на ул. Академика Королева, 3
© Липгарт Архитектс
Чуть позднее работы над основным проектом Степан Липгарт предложил роскошный интерьер атриума: с золочеными кессонами потолка, резными дубовыми шкафами и элементами «пламенеющей готики», наводящими на мысли о британских каминах, хотя каминов здесь нет.
Визуализация интерьра пассажа (входной группы) № 1. Жилой комплекс с подземной автостоянкой на ул. Академика Королева, 3
© Липгарт Архитектс
Другая особенность проекта – соблюдая высотное ограничение (10 м), но стремясь не потерять с масштабе, высоте потолков и пропорциях, Степан Липгарт предложил немного углубить дом в землю, что не было проблемой, учитывая, что он стоит на подземной парковке и подвалах. И двор, и пол первых этажей углублены на примерно 75 сантиметров. Пространство двора это делает еще чуть более замкнутым, приватным и уютным – эффект поддержан предложенной автором деревянной выстилкой.
Общий вид двора с юго-западной стороны. Жилой комплекс с подземной автостоянкой на ул. Академика Королева, 3
© Липгарт Архитектс
Квартиры первых этажей получили другой бонус – перед ними намечены лоджии, примерно метровой глубины, чей пол также опущен на 75 см от уровня тротуара; от города они отделены зеленью. Полуприватные пространства, достаточно скрытые от глаз прохожих, которых тут не очень много, но открытые для свежего воздуха, напоминают и о палисадниках, которые обычно размещают внутри двора, а не на улице, и о галереях первых этажей – которые обычно не частные, а общественные, сквозные и с магазинами. Но для магазинов здесь мало покупателей, а окружение – спокойное, дачно-природное, так что террасы-лоджии оказались кстати. Надо заметить, это редкий нюанс формата; на моей памяти, кажется, такой вариант встречается в первый раз.
Разрез. Жилой комплекс с подземной автостоянкой на ул. Академика Королева, 3. Разрез 1-1
© Липгарт Архитектс
Дом в итоге получает достаточно сложную пластику, он сдержан, но активен в работе с окружающим пространством, причем одна часть этой работы определена внутренним устройством: лоджии первого этажа соседствуют с террасами второго и особенно третьего, а также с эркерами и перголами, не говоря о «французских» окнах в пол с их решетками ограждений – неожиданно тонких и высоких. Дом постоянно изменяет масштаб своих элементов: первый этаж небольшой, особенно из-за заглубления, второй кажется огромным, настоящий piano nobile, третий вновь выглядит меньшим – аттиковым – хотя это в основном из-за террас, высота потолков почти одинаковая, 3.2 / 3.2 / 3.1. Между тем образ, при фактическом равенстве этажей, соответствует классической «триаде» низа, середины и верха.
Фрагмент юго-западного фасада. Жилой комплекс с подземной автостоянкой на ул. Академика Королева, 3
© Липгарт Архитектс
Суммой пластических приемов дом тоже развивает намеченную тему сдержанно-классического подхода с нотой того, что хочется назвать ретро-прогрессизмом, хотя на самом деле оно называется стримлайн. Стримлайн – направление дизайна 1930-х годов. Оно любит текучие линии и изгибы, но не такие, как у Захи Хадид, а контролируемые, симметричные или повторяющиеся. В данном случае с ним перекликаются скругленные углы объемов, их «полосатая» поверхность, рамки со скругленными углами вокруг входа, плавные односторонние скосы эркеров. Все эти линии, штукатурные или «каменные», как будто выстроены по каким-то металлическим направляющим. Встречаясь на одном углу, два скоса эркеров образуют своего рода плавные «крылья» – неожиданный прием для угловой формы, в которой встречаются два выступа.
Общий вид с запада. Жилой комплекс с подземной автостоянкой на ул. Академика Королева, 3
© Липгарт Архитектс
Дом не очень классичен – думаю, что другие участники конкурса предложили более традиционные трактовки. У него, как минимум, нет карниза, что вместе с полосатой фактурой смотрится достаточно свежо. Но есть и консервативные вкрапления, к примеру, каннелированная колонна слева от «главного» входа во двор – она как артефакт. Интересно, каким мог бы быть арт-объект во дворе? Они могли бы перекликаться.
Впрочем все это не меняет дела. Проект решен в узнаваемой авторской стилистике, прямо-то таки происходит из графических фантазий Липгарта периода «Детей Иофана». Что кажется уместным для участка: в близком соседстве модернистского шедевра, музея космонавтики, и неорусского «Турецкого дома», напоминающего постройки архитектора Покровского, в окружении деревенских домов с резными наличниками и панельных пятиэтажек, словом, в контексте музейно-парковой туристической периферии, – такой дом внес бы некое очарование. А может быть, стал бы зародышем внятной городской среды малого масштаба.


