Ситуационный план. ID Moskovskiy
© Липгарт Архитектс
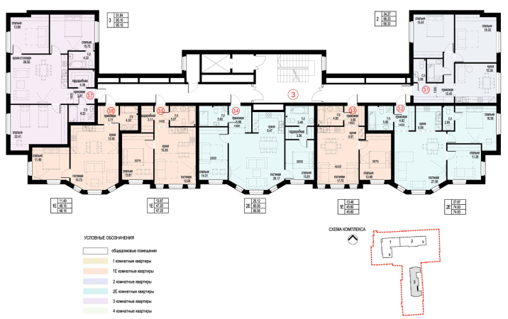
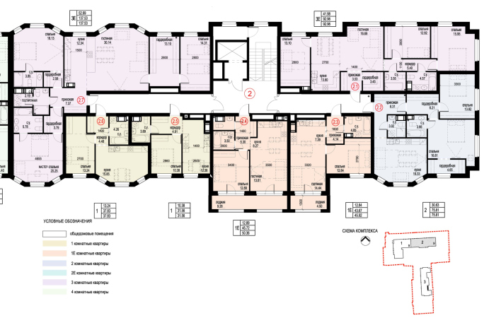
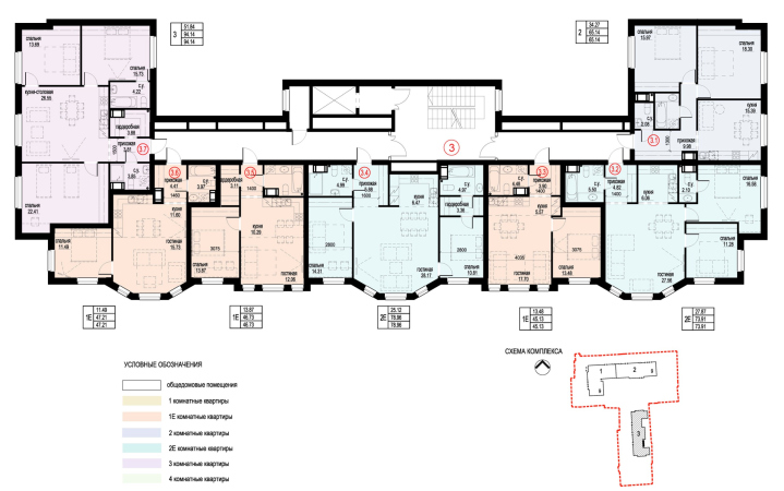
«ID Московский» включает два элемента: первый – девятиэтажный, L-образный в плане (1-я и 2-я секция), и второй – десятиэтажный, П-образный (3-я секция).
Генеральный план. ID Moskovskiy
© Липгарт Архитектс
Дома, соединенные пилонадой, не замыкают двор, который лишь с двух сторон очерчен L-образным корпусом, но стоят друг рядом с другом, обращенные парадными фасадами к Московскому проспекту. Расположение их на второй линии не отменяет композиционную и объемно-пространственную связь с застройкой проспекта. Входной портал первой секции соосен симметричному дому Косвена, выходящему на красную линию, его проездная арка становится своеобразным парадным въездом, предваряющим регулярное пространство двора. Третья секция находится на одной оси с аркой дома №76 по Московскому проспекту, её протяженный фасад становится своеобразной ширмой, экранирующей исторические дворы от глухих брандмауэров современной застройки.
Вид с птичьего полета с западной стороны. ID Moskovskiy
© Липгарт Архитектс
Этот дом, в отличие от предшествующих проектов, где планировки в основном выполняли наши партнеры, был создан целиком моей командой, поэтому, на мой взгляд, он получился более цельным, гармоничным и созвучным петербургской-ленинградской традиции. В некотором смысле меня вдохновлял пример Лидваля, который начинал с дорогих и сложно украшенных зданий, таких, как доходный дом для его матери на Каменноостровском проспекте, потом создал архитектуру очень простого жилья для рабочих завода Нобеля, а позже вернулся в дорогой сегмент с найденными решениями, обнаружив некий идеальный баланс простого и сложного.
По сравнению с предыдущими проектами Степана Липгарта «Московский» заметно строже. Это обобщенная неоклассика, близкая к Беренсу и наследовавшим ему советским 1930-м, с элементами ар-деко и совсем без округлых линий. Ни капителей, ни гуськов, ни каблучков. Автор объясняет жесткий характер архитектуры тем, что дом находится в глубине квартала, а дворовые фасады петербургских домов традиционно более скупы на декор. Но как раз пластически «Московский» очень изобретателен и дворовым отнюдь не выглядит. Наряду с обобщенным ордером, характерным для неоклассики 1920–1930-х, в «Московском» есть также устремленность в небо, присущая архитектуре ар-деко и любимая Липгартом тема отягощенного порыва. Которые, в частности, воплощены в парадном фасаде первого дома.
Секция 1, вид с запада. ID Moskovskiy
© Липгарт Архитектс
Данный фасад, ближайший к Московскому проспекту, определен мощным вертикальным движением. По центру его расположен двухъярусный входной портал первой секции, вытянутый вверх, представляющий собой полуциркульную нишу с плоским завершением. Этот портал как бы удваивается узкой «рамой» высотой в четыре этажа, которая в свою очередь обрамляется шестиэтажным центральным ризалитом, надстроенным трехэтажным аттиком. Возникает вертикальная композиция высотой в дом, напоминающая с боковых ракурсов своей «телескопичностью» объектив старинного фотоаппарата.
Секция 1, деталь входа в парадную. ID Moskovskiy
© Липгарт Архитектс
Оба элемента комплекса «Московский» имеют традиционное для классики строение: цоколь, бельэтажная середина и относительно легкий верх. (Цоколь будет облицован стеклофибробетоном под известняк, а верхние ярусы отделаны штукатуркой). Фасадные композиции домов находятся в визуальном диалоге, соотнесены друг с другом при помощи сквозных мотивов: портал, ризалит, эркер и терраса-пергола. Волевому и строгому главному фасаду первого дома противопоставлен дворовый, структурированный типичными для Петербурга гранеными эркерами, которые в верхнем ярусе продолжаются террасами-перголами. Это еще один прием вертикального развития. Сначала натиск материи (эркер), затем нейтральная гладкая стена и, наконец, уменьшение материальности (терраса-пергола).
Вид на секция 1 с юго-западной стороны. ID Moskovskiy
© Липгарт Архитектс
Общий вид. ID Moskovskiy
© Липгарт Архитектс
В фасаде десятиэтажного второго дома происходит наложение разных тем, подобно стретте в фуге: портал, ризалиты, эркеры, перголы, экспонированные в первом доме последовательно, здесь спрессованы, наложены друг на друга. Входной портал второго дома по абрису такой же двухъярусный и вертикальный, как в первом, но лишён ниши-углубления, и не дублируется «рамами» в верхних этажах. Здесь же, на первых двух этажах применена отличная от первого дома отделка, руст, что кроме прочего подчеркивает различную функцию нижней части домов, (коммерческие помещения и детский сад соответственно). В архитектуре второго дома с одной стороны, нет такого мощного порыва, как в главном фасаде первого дома, с другой – пластическая насыщенность выше. Здесь почти отсутствует гладкая стена, наоборот, количество слоев, профилей, выступающих и углубленных элементов велико и разнообразно.
Секция 3 со встроенным ДОО, вид с запада. ID Moskovskiy
© Липгарт Архитектс
Помимо прочего, обилие уступов и выступов позволяет сделать «линейку» балконов многообразной: начиная от французских и «небольших для чаепития» – до упомянутых выше террас-пергол на последнем этаже.
Секция 3, вид верхних этажей. ID Moskovskiy
© Липгарт Архитектс
Секция 3, лоджии и балконы верхних этажей. ID Moskovskiy
© Липгарт Архитектс
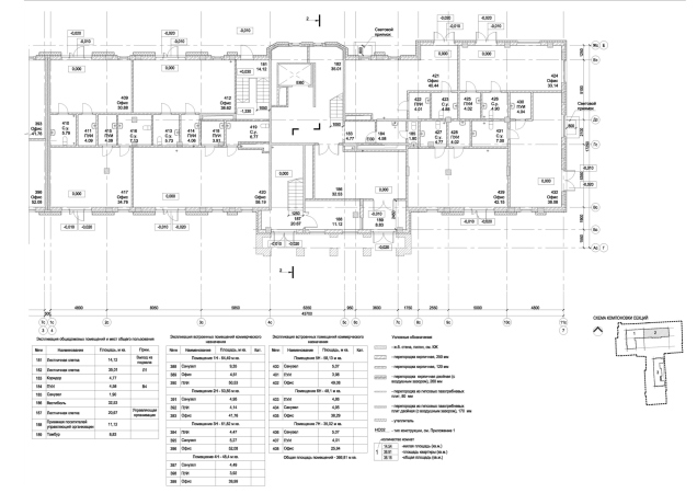
Два дома соединяются друг к другом с помощью пилонады из восьми сдвоенных пилонов, несущих променад на уровне второго этажа. Нельзя не увидеть здесь отсылки к Дому Бенуа на Каменноостровском с колоннадой в курдонере. Пилонада разделяет двор на две части и структурируя его, подводит с одной стороны к парадной второй секции, с другой ко входу в детский сад, расположенному в торце третьей секции. Для воспитанников детского сада галерея пилонады будет иметь практическое значение: в дождливые дни они смогут совершать прогулки под ее сенью, в погожие – некоторое время шествовать под ней к площадкам, расположенным в северо-восточной части двора. На кровле галереи устроят мини-сад, общественное пространство, поставят скамейки и кадки с растениями. Попасть туда можно будет как с улицы по лестнице, так и со второго этажа первого дома.
Вид на секцию 2 и переходную колоннаду между 2 и 3 секцией. ID Moskovskiy
© Липгарт Архитектс
Заметим, что пилонада, как и колоннада, – это дополнительное пространственное переживание. Пространство перед ней – всегда торжественное, за ней – более камерное, шествие вдоль нее – ритмическое приключение.
Вид с юго-западной стороны на секцию 3. ID Moskovskiy
© Липгарт Архитектс
Проект Липгарта для вестибюлей реализован не будет. А жаль, он продолжал темы, заявленные на фасадах: семиметровые потолки, подчеркнутые вертикали в декоре стен, три узких окна во втором ярусе (офис управляющей компании), напоминающие концертный орган, рисунок крыльев на стенах и ар-декошные восьмиугольники, стремящиеся к ромбам. Все эти детали задавали торжественный тон.
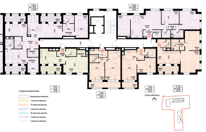
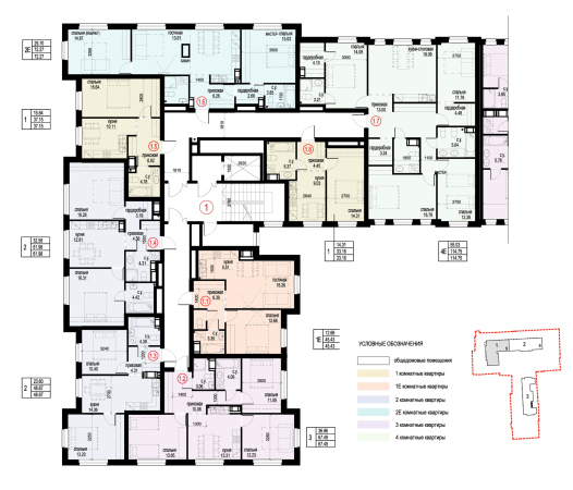
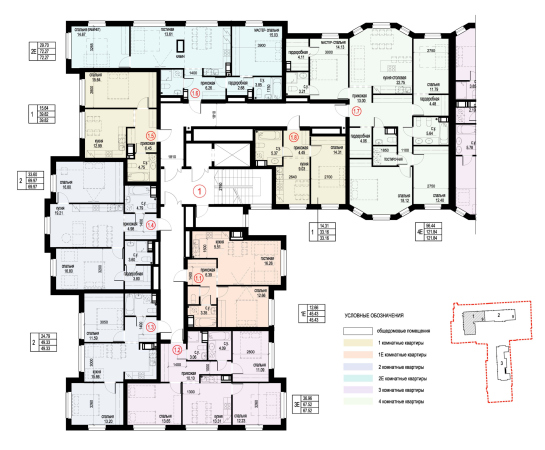
Что касается квартирографии, в «Московском» она представлена вариантами от студий до 4-комнатных квартир, в диапазоне от 35 м2 до 138 м2. В их решениях можно отметить два принципа. Площадь дома убывает кверху, при этом квартиры к верхним этажам становятся больше по площади, а их количество уменьшается. «Ряд квартир близок дореволюционной анфиладной планировке и парадным планировкам 1930-1950-х, – рассказывает Степан Липгарт. – Речь прежде всего о симметричных квартирах третьей секции [второго дома, – прим. ред.], центром которых стала большая гостиная с эркером. Таким образом, мы не только в решении объемов и фасадов, но и в планировках стремились следовать принципам жилого дома, традиционного для Петербурга-Ленинграда».
***
Итак, дом строг в деталях, но срежиссирован сложно и разнообразно. Он откликается на петербургский и ленинградский контекст, выстраивает «второй парадный фронт» за линией Московского проспекта; он активно использует эркеры и террасы-перголы, а его пилонада интерпретирует идею Бенуа. Что же до строгости решения, то оно имеет как бы две грани. С одной стороны, это средство достижения сдержанной элегантности не в ущерб содержательности, с другой – средство монументализации и воплощения волевого порыва – героической темы, которая последовательно развивается в произведениях Степана Липгарта. В этом смысле дом близок ордерным кораблям графического триптиха, показанного архитектором на ноябрьском фестивале Зодчество: целеустремленным и элегантно-могущественным.Графический триптих "Immobile super mobile erigo (На зыбком воздвигаю незыблемое)". Ростра, Под килем, Огни за кормой. 2020
© Степан Липгарт
Подобное настроение более чем созвучно минувшему грозовому 2020 году, нашему «новейшему времени», когда определенное эстетство не исключает напряжения всех сил и самодисциплины.


