WAF 2025: умом и сердцем

Всемирный фестиваль архитектуры, впервые приехавший в США, подвел итоги. Главный приз получила церковь на Тенерифе, которая воздействует на посетителя с помощью массы, света и акустики. Проектом года стал аэропорт Гелепху, поражающий воображение сочетанием инженерных достижений с ремесленными техниками. Лучший ландшафтный – в Китае, где архитекторы превращают разрушительные паводки в объект созерцания.

mainImg
Всемирный фестиваль архитектуры в этом году впервые прошел на территории США, в Конференц-центре города Майами. Такой выбор отражает растущую значимость региона в мировой архитектуре и дизайне. В шорт-лист премии вошли: 235 построек, 157 проектов и 64 дизайна интерьера. Наиболее широко были представлены проекты из США, Китая, Великобритании, Австралии, Индии, Канады, Сингапура, ОАЭ, Турции и Японии.

Тема деловой программы, озаглавленная как «Сердца и умы», предлагала поразмышлять о дуальности архитектуры. С одной стороны она является порождением разума: на проект влияет анализ участка, материалы, технологии, нормы, функция и бюджет. С другой – архитектура способна вызвать серьезный душевный отклик, сохранять память и вдохновлять. 

В этой же системе координат, как нам кажется, определены проекты-победители: сложные технологические решения используются в них для создания пространств, которые меняют человека, апеллируя к его чувствам. Рассказываем ниже подробнее о каждом. 

Несколько российских бюро в этом сезоне попали в короткие списки. Всех победителей категорий ищите здесь. А в следующем году фестиваль вновь пройдет в Майами. 

***

Здание года


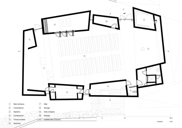
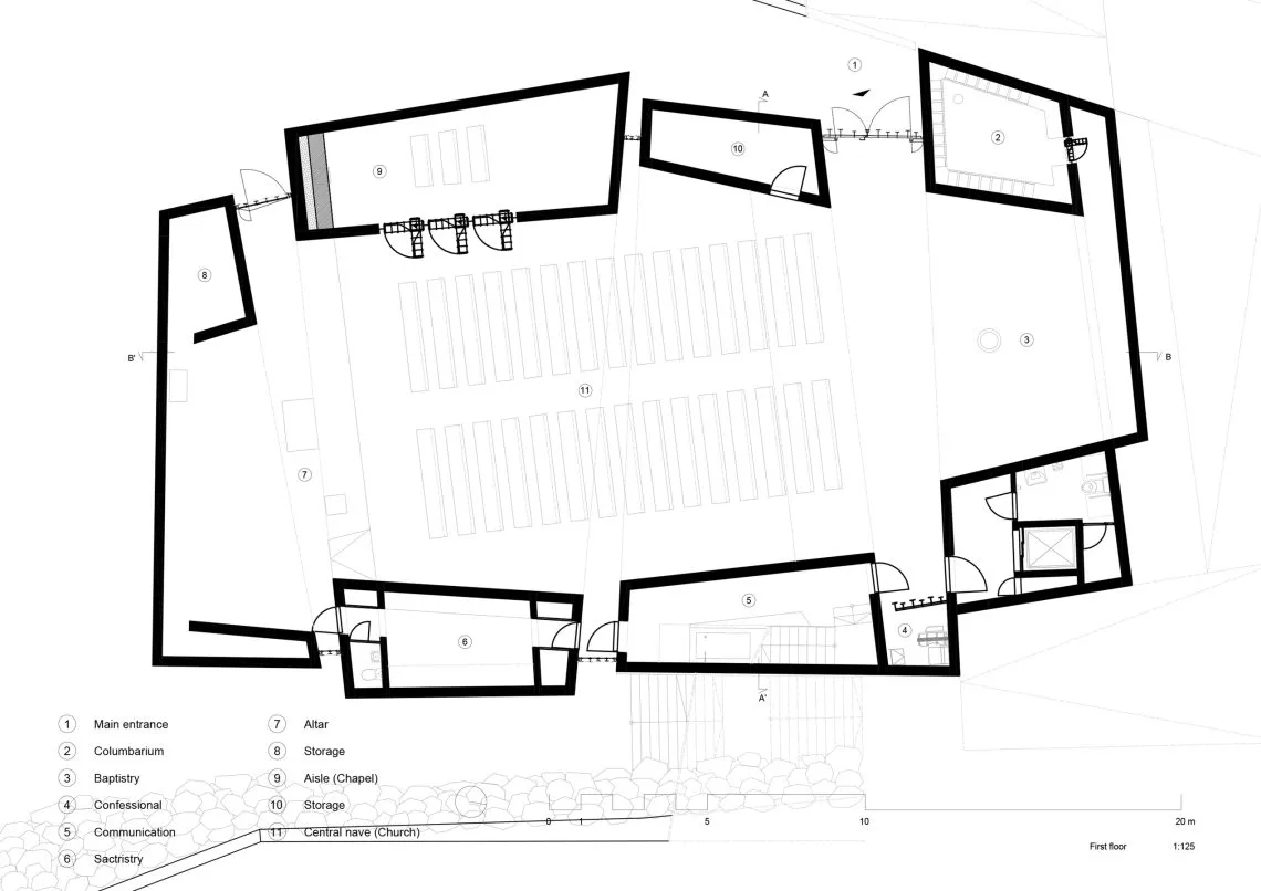
The Holy Redeemer Church and Community Centre of Las Chumberas, Сан-Кристобаль-де-ла-Лагуна, Испания
Fernando Menis


Возведение церкви Искупителя в городке Сан-Кристобаль-де-ла-Лагуна на острове Тенерифе длилось не малых 16 лет: деньги на ее строительство поступали нерегулярно за счет пожертвований, сыграл свою роль и экономический кризис 2008 года. Итоговый бюджет – около 2 000 000 евро. Первым завершили блок общественного центра, который повлиял на преобразование полузаброшенного тогда района Лас Чумберас. Церковь расположилась в окружении разноцветных таунхаусов 1970-х годов и крупных торговых центров и за счет своего бруталистского облика стала доминантой и точкой притяжения. 
Civic and community: The Holy Redeemer Church and Community Centre of Las Chumberas, Сан-Кристобаль-де-ла-Лагуна, Испания. Бюро: Fernando Menis
Photo by © Roland Halbe, Simona Rota, Hisao Suzuki / предоставлено WAF
Civic and community: The Holy Redeemer Church and Community Centre of Las Chumberas, Сан-Кристобаль-де-ла-Лагуна, Испания. Бюро: Fernando Menis
Photo by © Roland Halbe, Simona Rota, Hisao Suzuki / предоставлено WAF
Civic and community: The Holy Redeemer Church and Community Centre of Las Chumberas, Сан-Кристобаль-де-ла-Лагуна, Испания. Бюро: Fernando Menis
Photo by © Roland Halbe, Simona Rota, Hisao Suzuki / предоставлено WAF

Автор проекта – уроженец соседнего Санта-Крус-де-Тенерифе Фернандо Менис. Среди прочего он известен экспериментами с акустическими свойствами бетона. В данном проекте он добавил в раствор пористую вулканическую породу, а также поместил в помещения габионы, в которых колотый бетон перемешан с вулканическими же камнями. Такое сочетание обеспечивает превосходную акустику, столь важную для пространства церкви, где слово и пение более прочего воздействуют на посетителя.    
Civic and community: The Holy Redeemer Church and Community Centre of Las Chumberas, Сан-Кристобаль-де-ла-Лагуна, Испания. Бюро: Fernando Menis
Photo by © Roland Halbe, Simona Rota, Hisao Suzuki / предоставлено WAF
  • zooming
    Civic and community: The Holy Redeemer Church and Community Centre of Las Chumberas, Сан-Кристобаль-де-ла-Лагуна, Испания. Бюро: Fernando Menis
    Photo by © Roland Halbe, Simona Rota, Hisao Suzuki / предоставлено WAF
  • zooming
    Civic and community: The Holy Redeemer Church and Community Centre of Las Chumberas, Сан-Кристобаль-де-ла-Лагуна, Испания. Бюро: Fernando Menis
    Photo by © Roland Halbe, Simona Rota, Hisao Suzuki / предоставлено WAF

Еще один компонент таинства – свет. Здание вписано в крутой склон между подпорными стенками и кажется продолжением горы за счет бетонных объемов ломаных форм с фактурой дощатой опалубки снаружи и имитацией шершавой «каменной» поверхности внутри. Восточный фасад прорезает крестообразное окно, похожее на разлом породы. Утром наполняется сиянием крест в алтарной части, днем полуденное солнце проникает в помещения благодаря окнам на крыше, позже лучи падают в исповедальню. 
Civic and community: The Holy Redeemer Church and Community Centre of Las Chumberas, Сан-Кристобаль-де-ла-Лагуна, Испания. Бюро: Fernando Menis
Photo by © Roland Halbe, Simona Rota, Hisao Suzuki / предоставлено WAF
Победители номинаций в категории «Постройка»

***

Проект года


Gelephu International Airport, Гелепху, Бутан
BIG-Bjarke Ingels Group

 
 
Аэропорт Гелепху, который строится на границе Бутана и Индии, – ключевой проект генерального плана Города осознанности, основанного на показателе валового национального счастья. О нем Архи.ру рассказывал здесь.
Международный аэропорт Гелепху
© BIG
Терминал площадью 68 000 м2 архитекторы BIG спроектировали совместно с компанией NACO (Netherlands Airport Consultants). Архитектура самобытна и многое черпает из национальной культуры. Инженерную доску, из которой будут сложены ромбовидные ячейки, покроет традиционная резьба. Интерьеры украсят росписями и тканями. Древесину планируют добыть из местных «устойчивых» лесозаготовок.
Международный аэропорт Гелепху
© BIG
Международный аэропорт Гелепху
© BIG

Щедрое озеленение создаст впечатление, что в терминал проникли джунгли. Панорамное остекление откроет виды на Гималаи и зальет помещения естественным светом. Внутренний и международный терминалы разделит «Лесной хребет» – пышный зеленый коридор. Помимо привычного набора функций в аэропорте Гелепху запланированы залы для занятий йогой, медитаций или принятия гонг-ванн. 
 
Аэропорт планируют ввести в строй в 2029 году. 
Международный аэропорт Гелепху
© BIG
Международный аэропорт Гелепху
© BIG
 
Победители номинаций в категории «Проект»


 

***

Ландшафт года


Embracing Flood: Xinjiang River Ecological Corridor, Шанжао, Китай
Turenscape
 
Пойменный участок реки Синьцзян, растянувшийся на три километра, долгое время был недоступен жителям города Шанжао из-за сезонных паводков и более серьезных наводнений, которые случаются каждые 10-20 лет. Проект бюро Turenscape вместо того, чтобы обуздать природное явление, делает его частью своей драматургии. 
zooming
Embracing Flood: Xinjiang River Ecological Corridor, Шанжао, Китай. Бюро: Turenscape
Photo by © Turenscape / предоставлено WAF
Используя концепцию «города-губки», получающего все более широкое распространение в Китае, архитекторы восстановили экосистему поймы площадью 102 гектара и превратили ее в динамичное экологическое и рекреационное пространство. Система прудов сформировала пористые ландшафты, которые удерживают воду, поддерживают влажность на участке и формируют низины для фильтрации ливневых вод из близлежащих горных долин. Система островов преобразовала низменные зоны в водно-болотные угодья, обогащая экосистему и поддерживая дикую природу. 
Embracing Flood: Xinjiang River Ecological Corridor, Шанжао, Китай. Бюро: Turenscape
Photo by © Turenscape / предоставлено WAF
В течение года ландшафт может сильно меняться, предлагая посетителям все новые впечатления. Территория становится доступной благодаря многоуровневому пешеходному мосту, способному пережить даже сильные наводнения. Верхний уровень открывает панорамный обзор на пойму.  
 
Проект может быть использован во всех городах, подверженных наводнениям.
zooming
Embracing Flood: Xinjiang River Ecological Corridor, Шанжао, Китай. Бюро: Turenscape
Photo by © Turenscape / предоставлено WAF
zooming
Embracing Flood: Xinjiang River Ecological Corridor, Шанжао, Китай. Бюро: Turenscape
Photo by © Turenscape / предоставлено WAF
Embracing Flood: Xinjiang River Ecological Corridor, Шанжао, Китай. Бюро: Turenscape
Photo by © Turenscape / предоставлено WAF


Финалисты номинации «Ландшафт»


 

Аэропорт Гелепху, который строится на границе Бутана и Индии, – ключевой проект генерального плана Города осознанности, основанного на показателе валового национального счастья. О нем Архи.ру рассказывал здесь https://archi.ru/world/99357/psikhologicheskii-komfort-sredstvami-planirovaniya.

 

Терминал площадью 68 000 м2 архитекторы BIG спроектировали совместно с компанией NACO (Netherlands Airport Consultants). Архитектура самобытна и многое черпает из национальной культуры. Инженерную доску, из которой будут сложены ромбовидные ячейки, покроет традиционная резьба. Интерьеры украсят росписями и тканями. Древесину планируют добыть из местных «устойчивых» лесозаготовок.  

 

Щедрое озеленение создаст впечатление, что в терминал проникли джунгли. Панорамное остекление откроет виды на Гималаи и зальет помещения естественным светом. Внутренний и международный терминалы разделит «Лесной хребет» – пышный зеленый коридор. Помимо привычного набора функций в аэропорте Гелепху запланированы залы для занятий йогой, медитаций или принятия гонг-ванн. 

 

Аэропорт планируют ввести в строй в 2029 году. 

17 Ноября 2025

Похожие статьи
Между фантазией и реальностью: ПАСП & РОСТ
Начинаем публикацию конкурсных проектов ФИЦ биомедицинских и прочих технологий – с проекта, занявшего 6 место. Но Сергей Кузнецов сказал, что «разрыв между участниками был минимальным». А значит, все интересны. Предваряем обзором участка и задач – только так можно понять конкурсные проекты. Проект воронежской команды настроен на практику и удобство, рациональный подход к построению и вероятным трансформациям. Какое у них ключевое решение – читайте в тексте.
Переплетение перспектив
В середине апреля в Центральном доме архитектора Москвы прошел очередной Всероссийский архитектурный молодежный фестиваль «Перспектива 2026». Темой этого года стало «Переплетение». Конкурсная программа включала смотр-конкурс среди студентов и молодых архитекторов, а также конкурс на разработку архитектурной концепции многофункционального центра «Город Талантов» в Кемерово. Показываем победителей.
Сугроб. Очаг. Ковчег.
В середине марта в новом корпусе Третьяковской галереи наградили победителей конкурса «Неочевидное. Арктика». В нем приняли участие молодые архитекторы до 30 лет и студенты профильных вузов. Всего на конкурс поступило 326 заявок. Жюри определило победителей в пяти номинациях, каждый из них получил по 100 000 рублей. Рассказываем о проектах-победителях.
Байкальская рекурсия
В Иркутске завершился двадцатый фестиваль «АрхБухта». Темой этого года стала «Рекурсия». В конкурсной программе фестиваля участвовали 23 команды из разных городов России. Победу одержала команда «Футурум» из Иркутска с арт-объектом «Эхо». Рассказываем о проектах-победителях.
Правдиво о конкурсе Правды
Конкурс на дизайн внутренних пространств редакционного корпуса газеты «Правда» завершился в феврале. В нем участвовали пять претендентов: GA, AQ, ASADOV Interiors, LeAtelier, Above. Победу одержал проект AQ. В данном случае у нас есть возможность показать комментарии жюри – что очень, очень интересно и познавательно. Спасибо Метрополису за столь детальный отчет о конкурсе, всем бы так.
Симулятор «зеленой» жизни
Представлены проекты финалистов конкурса Shift – версии здания- «достопримечательности» в Роттердаме, где публика сможет на своем опыте оценить достоинства ресурсоэффективного, циклического образа жизни.
Видение эффективности
В Минске в конце ноября прошел II Международный архитектурный форум «Эффективная среда», на котором, в том числе, подвели итоги организованного в его рамках конкурса на разработку эффективной среды городского квартала в городе Бресте. Рассказываем о форуме и победителях конкурса.
Грезы Трезини
В Эрмитаже подвели итоги VIII Международной архитектурно-дизайнерской премии «Золотой Трезини». В этом году премию вручали в год 355-летия первого архитектора Санкт-Петербурга Доменико Трезини. Среди победителей много знаковых проектов: от театра Камала до церкви Преображения Господня Кижского погоста. Показываем победителей всех номинаций, а их у «Трезини» аж целых 33.
WAF 2025: малые награды
Рассматривать специальные номинации Всемирного фестиваля архитектуры едва ли не интереснее, чем основные списки, поскольку финалистов для них подбирают не по типологии, а по иным критериям. В этом году отмечен офис Google из дерева, реджио-школа, корпоративный сад в Китае, социальное жилье в Лос-Анджелесе, а лучшим малым объектом стала церковь, взявшая главную награду фестиваля. Рассказываем обо всех победителях и финалистах.
Зодчество 2025: победители
Не прошло и месяца, а мы публикуем полный список победителей Зодчества. Сильно выступил, как всегда, Петербург – и даже московскому музею Коллекция дали серебро. Среди школьных зданий лидирует ATRIUM и гимназия имени Примакова от Студии 44. Кстати! В этом году наконец вручили «Татлин», награду за проект; что не может не радовать.
Дальневосточный урбанизм
Лауреатами премии «УрбанВэй 2025», итоги которой подвели на одноименном международном форуме в октябре во Владивостоке, стали как новые, так и известные проекты. Например, музей Океанрыбфлота от Gikalo Kuptsov Architects, ЖК STARK от DNK ag, концепция банного комплекса от IQ Studio, проект микрорайона «Логово дракона» от ПСВ и другие. Рассказываем о победителях.
Символы и символы
Министерство культуры и туризма Московской области совместно с АНО «МосОблПарк» провело конкурс «Символы Подмосковья» с целью создания новых художественных форм, отражающих идентичность региона. Показываем не все победившие объекты, а почти все – те, которые нам понравились, 9 из 11. Плюс! Не попавший в число победителей (! а вот так!) объект Александра Бродского.
Дан приказ ему на Сити, ей в другую сторону...
Второй по счету конкурс архитектурных идей телеграм-канала Небоскребы привлек профессиональное жюри и присудил, в главной номинации, денежный приз. Как водится, за горизонтальный небоскреб – все остальные, в основном, предложили вертикальные башни... Показываем победившие и не победившие идеи, размышляем о влиянии башни участка номер один. Где? Смотрите ближе к концу материала.
Время архитектора: премия имени Сергея Ткаченко-2025
Учрежденная Институтом Генплана Москвы и Архитектурным центром Сергея Ткаченко премия подвела итоги. Из 160 студенческих выпускных квалификационных работ экспертное жюри выбрало три: медицинский центр для больных сахарным диабетом, морской технопарк и проект градостроительной организации периферийных зон на примере Волгограда.
Гнезда, мосты, штиль и балтийская колючка в Филинской...
Ключевым событием завершившегося на днях фестиваля «ЭкоБерег» стало объявление победителей конкурса на разработку проекта туристической инфраструктуры на побережье Балтики в Филинской бухте. Победителем стал проект эко-парка «Гнезда» компании «Пауэр Технолоджис». Показываем все награжденные проекты.
Рисовать как Баженов
В Московском архитектурном институте прошел IV Творческий конкурс академического рисунка. В эпоху тотальной компьютеризации умение рисовать считается редким и ценным навыком, и МАРХИ по праву гордится тем, что учит своих студентов этому важному ремеслу.
Архитектурное наследие 2025: итоги
В начале июня в Рязани прошел Всероссийский фестиваль «Архитектурное наследие». Фестиваль включал деловую, экспозиционную и конкурсную программы. Были подведены итоги четырех смотров-конкурсов и конкурса на лучшее печатное издание об архитектурном наследии. Рассказываем о победителях.
Дух степи, очаг и оберег
Подведены итоги конкурса на переосмысление кочевой архитектуры Архтамга. Конкурс проводил Евразийский музей кочевых цивилизаций и уфимское проектное бюро «Архтамга» – участник проекта NEXT на АРХ Москве в этом году. Призовой фонд в 350 тысяч рублей обещают разделить между тремя победителями, определенными профессиональным жюри, и победителем голосования за приз зрительских симпатий. Рассказываем о победителях, выбранных профессиональным жюри.
Создавая миры: финалисты
Определены финалисты конкурса «Создавая миры». Жюри выбрало десять лучших работ, по пять в каждой из двух номинаций конкурса: «Фотография. Архитектура» и «Digital Art. Архитектура». Представляем выбранные работы.
Исток, гнездо и колос
В конце прошлого года бюро ASADOV подвело итоги конкурса на лучший семейный клуб, который проводило при поддержке Союза архитекторов России. Принять участие в нем могли молодые архитекторы и студенты профильных вузов. С запозданием, но знакомим с победителями конкурса.
MADA 2025: итоги премии MosBuild для молодых архитекторов...
В начале апреля на выставке MosBuild 2025 подвели итоги премии для молодых архитекторов и дизайнеров MosBuild Architecture & Design Awards. Номинаций в этом году было семь: шесть традиционных и одна новая – от бизнес-сообщества MosBuild Connect. Рассказываем о победителях.
Благоустройство глазами студентов
В начале марта в Минстрое России подвели итоги Национального студенческого конкурса «Благоустрой!» Были определены победители в шести номинациях, а также обладатель гран-при конкурса в миллион рублей. Рассказываем о проектах-победителях.
Цирк в Мневниках: сравнение разрезов
Показываем все шесть конкурсных проектов нового Большого цирка, перенесенного в Мневниковскую пойму. Как стало известно сегодня, победителем по итогам общественного голосования на «Активном гражданине» стал всё тот же проект, показанный нам, в качестве победившего, в январе. Но теперь можно посмотреть на разрезы, виды сверху... Некоторые проекты новый ракурс очень освежает.
Архигибкость деревянной архитектуры
Конкурс для начинающих архитекторов и студентов архиГИБКОСТЬ был организован фестивалем «Древолюция». Задачей было – придумать малогабаритные быстровозмодимые дома оригинальной формы, доступные для последующего воспроизводства в туристической отрасли. Показываем шесть проектов-победителей.
Кирпич на вес золота
В конце декабря в Санкт-Петербурге подвели итоги четвертого Кирпичного конкурса, проводимого издательским домом «Балтикум» совместно с компанией «АРХИТАЙЛ Северо-Запад». Принять участие в конкурсе могли молодые архитекторы и дизайнеры до 35 лет. Гран-при 100 тысяч рублей получил проект «Серая кольцевая», разработанный Анастасией Сергеевой и Владиславом Лобко из Санкт-Петербурга. Победителям номинаций досталось по 25 тысяч рублей. Рассказываем подробнее о проектах-победителях.
Двенадцать модулей эффективности для Гродно
В последний день ноября в Минске подвели итоги I Белорусского конкурса на разработку эффективной среды жилого квартала в Гродно. В конкурсе приняли активное участие российские архитекторы. Победу одержал проект «12 sq», разработанный авторским коллективом архитектурного бюро «НИТИ» из Уфы. Рассказываем подробно о победителе и остальных лауреатах конкурса
Волжская регата
Компания GloraX планирует построить на берегу Волги в Нижнем Новгороде жилой комплекс, который займет площадь в 14 гектар. В закрытом конкурсе победил проект бюро ГОРА – он предлагает типологии жилья от таунхаусов до террасированных пластин, баланс функций, различные способы взаимодействия с водой, а также отдельный остров в пользование жителям города.
Дом китобоя в кубе
Этой осенью калининградский музей «Дом китобоя» проводил конкурс на лучшую концепцию арт-объекта из панелей снесенного Дома Советов. Победителем стал московский проект – коллаборация историка архитектуры Константина Антипина и компании «Даль» в виде куба-игрового автомата. Рассказываем о победителях.
WAF 2024: малые награды
Завершаем наш обзор финалистов Всемирного фестиваля архитектуры специальными номинациями. В этом году отмечены выдающие работы с цветом, естественным светом, камнем, а также экологичными решениями. Приз за лучший малый объект вновь ушел в Японию.
Шорт-лист WAF Interiors: Bars and Restaurants
Самый длинный шорт-лист конкурса WAF Interiors – список из 12 интерьеров номинации Bars and Restaurants, включает самые разнообразные места для отдыха, веселья, общения с друзьями и дегустации вкусной еды и напитков. И все это в классной дизайнерской упаковке.
WAF 2025: малые награды
Рассматривать специальные номинации Всемирного фестиваля архитектуры едва ли не интереснее, чем основные списки, поскольку финалистов для них подбирают не по типологии, а по иным критериям. В этом году отмечен офис Google из дерева, реджио-школа, корпоративный сад в Китае, социальное жилье в Лос-Анджелесе, а лучшим малым объектом стала церковь, взявшая главную награду фестиваля. Рассказываем обо всех победителях и финалистах.
Шорт-лист WAF Interiors: Hotels
Новая подборка интерьеров из шорт-листа конкурса WAF Interiors представляет разнообразные гостиничные форматы, среди которых преобладают разные этнические и экзотические образцы, что не столько говорит о тенденциях в дизайне, сколько о зонах активного развития туристического рынка.
Шорт-лист WAF Interiors: Retail
Продолжаем серию обзоров интерьеров, вышедших в финал конкурса WAF Interiors, и представляем пять объектов из номинации Retail, в которой развернулась битва между огромным моллом и небольшими магазинами, высокотехнологичными и уютными пространствами, где сам процесс покупки должен быть в радость.
Шорт-лист WAF Interiors: Education
Продолжаем серию обзоров интерьеров, вышедших в финал конкурса WAF Interiors, и представляем пять объектов из номинации Education, каждый из которых демонстрирует различные подходы к образовательным пространствам для детей и взрослых.
Шорт-лист WAF Interiors: Public Buildings
В преддверии фестиваля WAF начинаем публикацию серии обзоров интерьеров, вышедших в финал конкурса WAF Interiors, и предлагаем читателям ARCHI.RU попробовать свои силы в оценке мировых интерьерных тенденций и выбрать своего победителя в каждой номинации, чтобы потом сравнить результаты с оценкой жюри.
WAF 2025: кто в коротком списке
Всемирный фестиваль архитектуры объявил шорт-листы всех номинаций. В списки попали постройки и проекты бюро ATRIUM, TCHOBAN VOSS Architekten и Kerimov Architects – предлагаем их краткий обзор.
Технологии и материалы
Материализация образа
Технические новации иногда появляются благодаря воображению архитектора-визионера. Примером может служить интерьер Медиацентра в парке «Зарядье», в котором главным элементом стала фантастическая подвесная конструкция из уникального полимера. Об истории проекта Медиацентра мы поговорили с его автором Тимуром Башкаевым (АБТБ) и участником проекта, светодизайнером Софьей Кудряковой, директором по развитию QPRO.
Моллирование от Modern Glass: гибкость без ограничений
Технологии компании Modern Glass позволяют производить не просто гнутое стекло, а готовые стеклопакеты со сложной геометрией: сверхмалые радиусы, моллирование в двух плоскостях, длина дуги до 7 м – всё это стало возможно выполнить на одном производстве. Максимальная высота моллированных изделий достигает 18 м, благодаря чему можно создавать цельные фасадные поверхности высотой в несколько этажей без горизонтальных стыковочных швов, а также реализовывать сложные комбинированные решения в рамках одного проекта.
Cool Colours: цвет в структуре
Благодаря технологии коэкструзии, используемой в системах Melke Cool Colours, насыщенный цвет оконного профиля перестал вызывать опасения в долговечности конструкции. Работать с темными и фактурными оттенками можно без риска термической деформации и отслаивания.
Быстро, дешево и многоэтажно
Техасский ICON – производитель промышленных 3D-принтеров и компаньон бюро BIG – выпустил на рынок новую печатную систему. Она предназначена для строительных компаний, а не для частных пользователей. Подразумевается, что на установке Titan будут печатать быстровозводимые, качественные и относительно дешевые дома. А рядовые покупатели, пусть и не знакомые с аддитивными технологиями, смогут обзавестись доступным инновационным жильем.
Фальцевая кровля Rooflong как инженерная система
Современная архитектура предъявляет к кровельным системам значительно более высокие требования, чем это было еще несколько лет назад. Речь идет не только о защите здания от внешних воздействий, но и о сложной геометрии, долговечности, интеграции инженерных элементов и точной реализации архитектурной идеи. Так, фальцевая кровля все чаще рассматривается не как отдельный материал, а как часть комплексной оболочки здания.
Эффективные фасады из полимеров
К современным фасадам предъявляются множество требований: они должны быть одновременно легкими и прочными, гибкими и удобными в монтаже, эстетичными и пригодными для повторного использования. Полимерные композитные системы успешно справляются со всеми этими задачами, выходя далеко за рамки традиционной светотехники и стандартных форм. Эффективность выражается в снижении нагрузки на каркас, в простоте монтажа, в возможности создавать сложнейшие скульптурные оболочки. Разберем, как это работает на практике.
По второму кругу
​В Осаке разбирают «Большое кольцо» – гигантскую деревянную конструкцию, построенную по проекту Со Фудзимото для ЭКСПО-2025. Когда демонтаж завершится, древесину от «Кольца» передадут новым владельцам. Стройматериалы пойдут на восстановление домов, пострадавших от стихийных бедствий, и на строительство новых сооружений.
Архитектура потоков: узкие места в проектах логистических...
Проектирование логистических объектов – это не столько про объём, сколько про систему управляемых переходов между зонами. Значительное время работы техники теряется на ожидания, причём основные потери концентрируются не в стеллажном хранении, а в проёмах, стыках температурных контуров и зонах пересечения потоков. Разбираемся, почему реальная производительность склада определяется не характеристиками автоматизации, а временем открытия проёма, и как этот параметр закладывается в проект.
Стекло AIG в проекте Центрального телеграфа
В отреставрированном Центральном телеграфе на Тверской использованы три типа остекления AIG: для исторического фасада, кровли атриума и внутренних ограждений. Основные требования – нейтральность цветопередачи, солнцезащита без затемнения и сохранение визуальной легкости исторического объема.
Три цвета MODFORMAT на фасаде
Жилой комплекс «ЦЕНТР» в Бресте – первый в портфеле «Полесьежилстрой» проект, где фасады полностью выполнены из клинкера удлиненного формата. Квартал из пяти корпусов распродан почти на 100%, строительство продолжается. Разбираемся, что именно сработало: архитектурное решение, выбор материала или их удачное сочетание.
От модерниста – экологисту
Швейцарский архитектор Барбара Бузер получила премию Джейн Дрю 2026 года. Ежегодную премию представительницам слабого пола вручает журнал Architects′ Journal – за профессиональные достижения и «укрепление женского авторитета в профессии».
Зеленые полимеры: эволюция фасадной теплоизоляции
Современная «зеленая архитектура» – это не только про озеленение крыш и солнечные батареи. В первую очередь, это про технологии, снижающие углеродный след здания. Ключевую роль здесь играют теплоизоляционные материалы (ТИМ), позволяющие радикально сократить потребление энергии. Пенополистирол, PIR и другие материалы, которые принято называть «зелеными полимерами» за их вклад в энергоэффективность, сегодня превратились в стандарт индустрии.
Пищевые производства: логистика и температура
Будучи одними из самых сложных объектов с точки зрения внутренней организации, пищевые производства требуют не просто размещения холодильных камер и цехов, а создания системы «климатических островов» внутри здания. Главная сложность возникает в зонах проемов в условиях интенсивного движения техники и персонала. Разбираем инженерные нюансы подбора оборудования, позволяющие обеспечить герметичность без потери энергоэффективности и удобства логистики.
Тепло и форма
Энергоэффективность сегодня – не враг архитектурной выразительности. Полимерные утеплители – ЭППС, ПИР, ППУ – берут на себя нагрузку, усадку и влагу, освобождая фасад от массивных наслоений. Какой материал выбрать для фундамента, фасада и кровли, чтобы сохранить и тепло, и чистоту линий – разбираем в обзоре.
Угольная пыль вместо цемента
Ученые Пермского Политеха и УрФУ создали экологичный бетон с повышенной водостойкостью. В составе материала – тонкомолотые горелые породы, отравляющие экологию угледобывающих регионов.
Материал с характером
За последние годы продажи металлических фасадных кассет в России выросли почти на 40 % – в сегментах бизнес и премиум всё активнее спрос на материалы, которые дают архитектору свободу работать с выразительной формой, не в ущерб безопасности и сроку службы фасада. Металлокассеты стали одним из главных ответов на этот запрос. Смотрим актуальные приёмы их применения на реализованных объектах от компании «Алкотек».
Архитектура воздухообмена
В зданиях большого объема – от спортивных комплексов до производственных корпусов – формирование комфортного микроклимата связано с особыми инженерными задачами. Одной из ключевых становится организация циркуляции воздуха, позволяющая устранить температурное расслоение и обеспечить равномерные условия по всей высоте пространства.
Инновационное остекление для идеального микроклимата:...
В современной архитектуре стеклопакет приобрел множество полезных функций, став полноценным инструментом управления микроклиматом здания. Так, энергосберегающие стеклопакеты эффективно удерживают тепло в помещении, солнцезащитные – предотвращают перегрев, а электрообогреваемые сами становятся источником тепла. Разбираемся в многообразии современных стеклоизделий на примере продукции Российской Стекольной Компании.
Опоры из грибницы
В США придумали новую альтернатива бетону – живой материал на основе мицелия и бактерий. Такой материал способен самовосстанавливаться и годится для применения в конструктивных компонентах зданий.
«Сухой» монтаж: КНАУФ в BelExpo
Минский BelExpo возвели на год раньше плана. Ключевую роль сыграли технологии КНАУФ: в основе конструкций – каркасно-обшивное перекрытие, собранное как конструктор и перекрывающее 6 метров без тяжелой техники, а также системы «потолок под потолком» с плитами КНАУФ-Акустика.
Сейчас на главной
В поисках вопросов
На острове Хайнань открылось новое здание музея науки по проекту MAD. Все его выставочные зоны выстроены в единый маршрут, развивающийся по спирали.
Между fair и tale, или как поймать «рынок» за хвост
На ВДНХ открылась выставка «Иномарка», исследующая культовую тему романтического капитализма 1990-х. Ее экспозиционный дизайн построен на эксперименте: его поручили трем авторам; а эффект знакомый – острого натурализма, призванного погрузить посетителя в ностальгическую атмосферу.
Казанские перформансы
В последние дни мая в Казани в шестой раз пройдет независимый фестиваль медиаискусства НУР, объединяющий медиахудожников, музыкантов и перформеров со всего мира. Организаторы фестиваля стремятся показать знаковые архитектурные объекты Казани с другого ракурса, открыть скрытые исторические части города и погрузить зрителей в новую реальность. Особое место в программе занимают музыкально-световые инсталляции. Рассказываем, что ждет гостей в этом году.
Друзья по крыше
В честь 270-летия Александринского театра на крыше Новой сцены откроется общественное пространство. Варианты архитектурной концепции летней многофункциональнй площадки с лекторием и камерной сценой будут создавать студенты петербургских вузов в рамках творческой лаборатории под руководством «Студии 44». Лучшее решение ждет реализация! Рассказываем об этой инициативе и ждем открытия театральной крыши.
На воскресной электричке
Для поселка Ушково Курортного района Санкт-Петербурга архитектурная мастерская М119 подготовила проект гостиницы с отдельно стоящим физкультурно-оздоровительным центром. Ячейки номеров, деревянные рейки на фасадах, а также бетонные блоки, акцентирующие функциональные блоки, отсылают к наследию советских санаториев и детских лагерей.
Наука на курорте
Здание для центра научно-промышленных исследований Чжэцзянского университета на острове Хайнань извлекает максимум из мягкого климата и видов на море. Авторы проекта – UAD, архитектурный институт в составе того же вуза.
Идеалы модернизма
В Дубне благодаря инициативе руководства местного научного института реконструировано модернистское здание. По проекту Orchestra Design в бывшем Доме международных совещаний открылся выставочный зал «Галерея ОИЯИ», чья деятельность будет проходить на стыке науки и искусства. И первой выставкой, иллюстрирующей этот принцип, стала экспозиция одного из самых известных художников современности, пионера российского кинетизма Франциско Инфантэ.
Мембрана для мысли: IND
Бюро IND предложило для ФИЦ биомедицинских технологий проект, вдохновлённый устройством нейронной сети: многогранные полупрозрачные объёмы, сдвинутые относительно друг друга, образуют «живую структуру» – с «синапсами» общих дворов, где случайный разговор в атриуме может превратиться в научную коллаборацию.
Сплав мировых культур
Гостевой дом, построенный по проекту Osetskaya.Salov на окраине Переславля-Залесского, предлагает путешественнику насыщенное пространство, которое дополнит опыт пребывания в древнем городе. Внутри – пять номеров, отсылающих к славянской, африканской, индуистской, европейской и латиноамериканской культурам. Их расширяют общие пространства – терраса с коммунальным столом, эскуплуатируемая кровля с видом на город, укромный сад. Оболочка здания транслирует универсальное высказывание, вбирая в себя черты всех культур.
«Шартрез д’Эма»: монастырь под Флоренцией как архетип...
Петр Завадовский рассматривает влияние картезианского монастыря в тосканском Галлуццо на формирование концептуальных основ жилищной архитектуры Ле Корбюзье, а также на его проект «дома вилл» – Immeuble-villas.
КиноГолограмма
Не так давно московскими властями был одобрен проект нового комплекса Дома Кино от архитекторов Kleinewelt. Старое здание 1968 года сохранить не удалось – зато авторы сберегли витражи, металлические рельефы, а также объемные параметры здания, в котором разместится Союз кинематографистов и кинозалы. А главным акцентом станет жилая башня. Изучаем ее пластику и аллюзии в московском контексте.
Форма как метод: ТПО «Резерв»
В основе концепции Владимира Плоткина и ТПО «Резерв» – нетривиальная морфология, работающая на решение функциональных задач помимо чисто формальных. Хотя больше всего, конечно, на выразительность и создание редкостного – как можно предположить, рассматривая ключевые решения проекта, пространственно-эмоционального опыта. Изучили, оно того стоит. Наша версия – в таком проекте работает не стиль и даже не метафора, а метод.
Консервация как комментарий
Для руинированной усадьбы Сумароковых-Миллеров, расположенной недалеко от Тарусы, бюро Рождественка предложило концепцию противоаварийных работ, которая помогает восстановить целостность объекта, не нарушая принципов охраны наследия. Временная мера не только стабилизирует памятник и защищает его от дальнейших разрушений, но также позволяет ему функционировать как общественный объект.
Хроника Шуховской башни
Над шаболовской башней сгущается, теперь уже всерьез. Ее собираются построить в новом металле – копию в натуральную величину. Сейчас, вероятно, мы находимся в последней точке невозврата. Айрат Багаутдинов, основатель проекта «Москва глазами инженера», собрал впечатляющую подборку сведений по новейшей истории башни: попытки реконструкции, изменения предмета охраны и общественный резонанс. Публикуем. Сопровождаем фотографиями современного состояния.
Лесные травы
Студия 40 создала интерьер ресторана FOREST в Екатеринбурге, руководствуясь необычным принципом – дизайн должен быть высококлассным и при этом ненавязчивым, чтобы все внимание посетителей было сосредоточено на кулинарных впечатлениях.
Земельные отношения
Экоферма Цзаохэ в предместье Пекина восстанавливает отношения между человеком, землей и пищей. Fon Studio в своем проекте предсказуемо обратилось к традициям и легендам.
Курган памяти
Конкурсный проект мемориального комплекса на Пулковских высотах от «Студии 44» не будет реализован, но мы хотим о нем рассказать – это интересный пример того, как с помощью архитектуры можно символизировать травматичные события и тем самым способствовать их переработке и интеграции в опыт человека. Кроме того, авторам удается совместить мемориальную функцию с рекреационной, не уходя ни в драматизацию, ни в упрощение. Проект развивает идеи двух других конкурсных работ, ушедших в стол, – Музея блокады и парка «Тучков буян». А еще – отсылает к холму-кургану, который Александр Никольский воплотил в облике уже утраченного стадиона на Крестовском острове.
Между цирком и рынком
Манеж для представлений по проекту K architectures на конном заводе в Бретани соединяет ресурсоэффективность с традициями французской архитектуры.
Баня по-царски
Бюро «Уникум» создало собственную версию идеального банного интерьера, отказавшись от расхожих трендов в пользу собственного уникального стиля – нео-русской готики, одновременно роскошной, интригующей и сказочной, что делает поход в эту баню настоящим побегом от серой реальности.
«Заря» над волнами
В проекте реконструкции муниципального пляжа «Заря» в Сочи от бюро V6 GROUP – террасирование, «текучий» бетон и открытый бассейн стали ответами на главные вызовы курорта: нехватку места, капризы моря и модернистскую айдентику местной инфраструктуры.
Белый конгломерат: AI-Architects
Белые цилиндры «слипаются», расширяются кверху и подсвечиваются изнутри, как гигантские лабораторные колбы. Внутри – атриум-амфитеатр, где наука становится зрелищем. Мы продолжаем публиковать конкурсные проекты ФИЦ оригинальных и перспективных биомедицинских и фармацевтических технологий и показываем концепцию от консорциума «АИ-АРХИТЕКТС+ТОЛК+ZLT+АрТех Лаб».
Между фантазией и реальностью: ПАСП & РОСТ
Начинаем публикацию конкурсных проектов ФИЦ биомедицинских и прочих технологий – с проекта, занявшего 6 место. Но Сергей Кузнецов сказал, что «разрыв между участниками был минимальным». А значит, все интересны. Предваряем обзором участка и задач – только так можно понять конкурсные проекты. Проект воронежской команды настроен на практику и удобство, рациональный подход к построению и вероятным трансформациям. Какое у них ключевое решение – читайте в тексте.
Типографика пространства
Консорциум ab Plombir и проект «ДАЛЬ» разработали комплексную концепцию развития исторического квартала «Нижполиграф» в Нижнем Новгороде. Бывшая типография превращается в креативный кластер и федеральный технопарк профессионального образования. Проект сохраняет промышленную идентичность места, деликатно работает с объектом культурного наследия и программирует 45 000 м2 как единую экосистему для встреч, коллабораций и городской жизни.
За холмами
Бюро Анастасии Томенко спроектировало для участка в районе Жигулевских гор загородный дом. Он одновременно подражает холмистому рельефу и заявляет о своем статусе выразительной скульптурной оболочкой, предлагает уединение и широкие виды, а также разные сценарии использования – от бутик-отеля до частной резиденции.
Фолиант большого архитектора
Олег Явейн написал, а «Студия 44» издала монументальный двухтомник про Александра Никольского. Многие материалы публикуются впервые. Читается, при всей фундаментальности, легко. Личность, и архитектура человека-гиганта (он был большого роста), который пришел к авангарду своим путем и не был готов «отпустить» то, что считал правильным – а о политике не говорил вообще никогда – показана с разных сторон. Читаем, рассуждаем, рассказываем несколько историй. Кое-что цепляет пресловутой актуальностью для наших дней.
Взгляд сверху
Дом “Энигмия” на Новослободской, спроектированный Андреем Романовым и Екатериной Кузнецовой, ADM architects – яркий, нашумевший проект последних месяцев. Соответствуя своему названию, он волшебно блестит и загадочно вырастает, расширяясь вверх. Расспросили девелопера и архитектора.
Переплетение перспектив
В середине апреля в Центральном доме архитектора Москвы прошел очередной Всероссийский архитектурный молодежный фестиваль «Перспектива 2026». Темой этого года стало «Переплетение». Конкурсная программа включала смотр-конкурс среди студентов и молодых архитекторов, а также конкурс на разработку архитектурной концепции многофункционального центра «Город Талантов» в Кемерово. Показываем победителей.
Блоки и коробки
Дом по проекту Studioninedots в новом районе Амстердама раскладывает жизнь семьи с двумя детьми по «коробочкам».
Звенья одной цепи
Бюро ulab разработало проект жилого комплекса, для которого выделен участок на границе с лесным массивом и экотропой «Уфимское ожерелье». Чтобы придать застройке индивидуальности, архитекторы использовали знакомые всем горожанам образы: башни силуэтом и материалом облицовки соотносятся со скальными массивами, а урбан-виллы – с яркими деревянными домиками. Не оставлено без внимания и соседство с советским кинотеатром «Салют» – доминанта комплекса подчеркивает его осевое расположение и использует паттерн фасада как основу для формообразования.
Стоечно-балочное гостеприимство
Отель Author’s Room по проекту B.L.U.E. Architecture Studio в агломерации Гуанчжоу соединяет для постояльцев отдых на природе с флером интеллектуальности от видного китайского издательства.