Вилла «Петергоф» появилась в квартале с частной застройкой разных лет, уютно расположившейся между дворцово-парковым ансамблем «Собственная дача», над которым работал Андрей Штакеншнейдер, и Английским парком, спроектированным Джакомо Кваренги. Здесь, среди новых коттеджей и старых дач, теплиц, заборов и садов теперь стоит «белый дом» – элегантный «интурист», приземлившийся в Петродворце.
Вилла Петергоф
Фотография © Алексей Боголепов / предоставлена Архитектурная мастерская Головин & Шретер
Где, как не в Петергофе, построенном по образу виллы д’Эсте, оглядываться на зарубежных коллег. Тем более, как говорит сам автор проекта, он со студенчества мечтал о том, чтобы создать свой вариант Ротонды.
Антон Головин, Архитектурная мастерская Головин & Шретер
Каждый архитектор рано или поздно обращается к Палладио и его вилле Капра, как к камертону или эталону. Нам удалось создать центричную монументальную композицию, основаную на идеях целостности мировосприятия и антропоцентризма. Источником вдохновения являются произведения Андреа Палладио и Адольфа Лооса. В частности: Villa La Rotonda, Villa Karma, Scheu House, Muller Houze.
Вилла Петергоф
Фотография © Алексей Боголепов / предоставлена Архитектурная мастерская Головин & Шретер
От Ротонды архитекторы взяли симметрию, крестообразный план, скульптурность и пропорции, приближенные к золотому сечению. Почти кубическая форма здания, обращенные на четыре стороны ризалиты, главный фасад, превращенный в укрупненную версию серлианы, выходящей на зеленую лужайку – все эти элементы помножены на гладкую белизну стен без намека на орнамент, как завещал Адольф Лоос. На этой белизне, как на нетронутом снегу, отчетливо проступают графичные линии «контуров»: карнизов, водосточных труб, консолей козырьков, рам и импостов. Строгость вертикального ритма смягчает циркульная линия окон первого этажа и термальных окон третьего.
Вилла Петергоф
Фотография © Алексей Боголепов / предоставлена Архитектурная мастерская Головин & Шретер
При симметричности объемно-планировочного решения фасады, однако, разнятся, откликаясь уже на второй источник вдохновения – виллы Лооса и постройки финского архитектора Уно Ульберга: они оба группировали проемы окон таким образом, чтобы акцентировать и «одушевить» поверхность стены.
Обращенный на запад «садовый» фасад, за которым прячутся кабинет, двусветная гостиная и столовая – самый открытый и классический. Большие окна почти стирают границу между помещениями и улицей, в белые ночи здесь должно быть светло почти круглые сутки. Перголы отсылают к вилле «Карма», но Антон Головин опускает их на уровень первого этажа, чтобы хозяева могли проводить больше времени на улице, невзирая на дождь или яркое солнце.
Вилла Петергоф
Фотография © Алексей Боголепов / предоставлена Архитектурная мастерская Головин & Шретер
Остальные три фасада, напротив, более закрытые. Здесь окна группируются либо вокруг ризалита, либо отодвигаются к периферии стены, проявляя ее белоснежную массу – этот прием также вдохновлен постройками и Палладио, и Лооса, и Ульберга.
Вилла Петергоф
Фотография © Алексей Боголепов / предоставлена Архитектурная мастерская Головин & Шретер
Отсутствие декора компенсируют оконные отливы, водосточные трубы и даже решетки вытяжных систем дома. Дом, по сути, строил сам заказчик со своей бригадой, и качество исполнения оставило авторов в большом удовлетворении. По профессии заказчик – врач, для него архитекторы строили стоматологическую клинику в Стрельне, которая также не осталась незаметной в профессиональной среде.
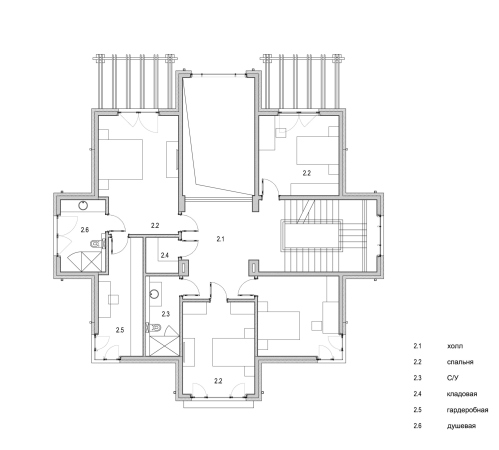
Антон Головин видит в крестообразном плане много потенциала для жилой архитектуры: он компактен, дает выразительный объем, при кажущейся замкнутости оказывается проницаемым для воздуха и природы. Если встать в центре дома на пересечении двух осей, можно увидеть все четыре стороны света, границы с садом стираются. Сторона дома – 11 метров, площадь – примерно 300 м2. План третьего этажа – квадратный.
Соединение Палладио и модернистских вилл уместно как с точки зрения преемственности – по словам Глеба Смирнова, Палладио «мыслил не колоннами, а кубом и стеной» – но и с точки зрения контекста. Все-таки участок в тесно застроенном коттеджами поселке – это не усадьба, волюты и сандрики смотрелись бы здесь претенциозно. Не сказать, что и в таком виде вилла становится «своей» в окружении, но определено задает тон и вкус.
Постройка победила в номинации «Лучший реализованный объект жилой функции» на фестивале «Архитектоне 2023».
