Школа The Heights
Фото © Laurian Ghinitoiu
Облицовка белым глазурованным кирпичом подчеркивает скульптурность формы здания, при этом учитывая плотную застройку вокруг, а также традиции – в частности, исторический центр Александрии, граничащего с Арлингтоном города.
Школа The Heights
Фото © Laurian Ghinitoiu
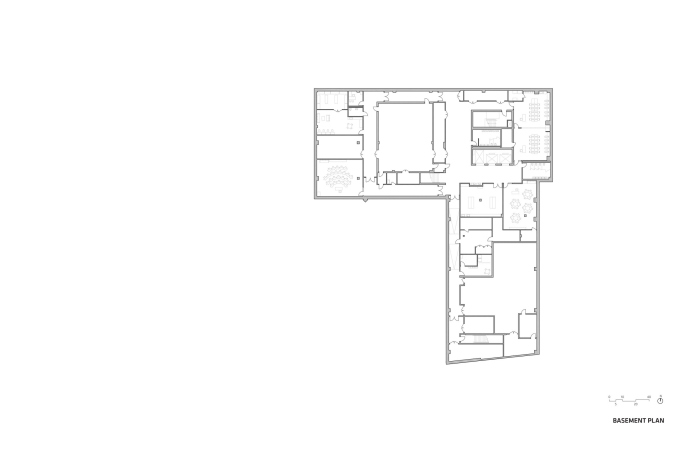
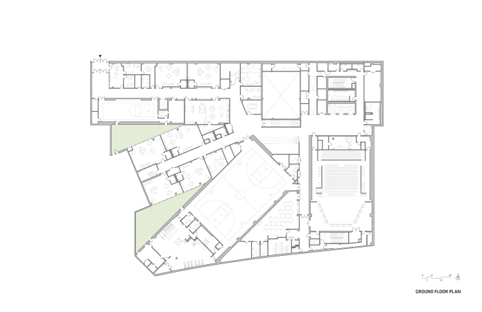
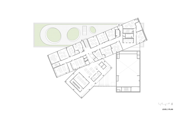
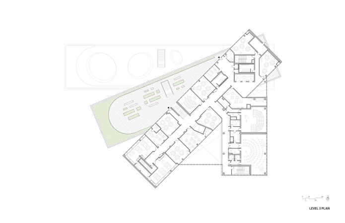
Пять прямоугольных этажей школы разворачиваются вокруг центрального стержня с лифтами, лестницей и санузлами как веер; их кровли превращены в зеленые террасы, где также ведут занятия. Самая нижняя терраса и соседствующее с ней рекреационное и спортивное поле (1700 м2) также предназначены для публичных мероприятий – школьного и районного масштаба. Местные жители могут использовать для организации своих событий и аудиторию на 400 мест, главный спортзал, библиотеку, зону стойки администратора и столовую. Все эти помещения находятся в центре здания, рядом с вестибюлем.
Школа The Heights
Фото © Laurian Ghinitoiu
Исключительно школьникам доступны художественная студия, лаборатории для занятий науками и робототехникой, музыкальные классы и два театральных зала.
Каждый этаж получил интерьер своего яркого цвета: это создает настроение и помогает ориентироваться. Школа для учеников 11–22 лет с особыми потребностями заняла второй и третий ярусы, доступные с первого этажа. Туда легко попасть, также там обеспечена приватность. Программа включает в себя свои спортзал и дворик, блок эрготерапии и физиотерапии, «сенсорный коттедж».
Школа The Heights
Фото © Laurian Ghinitoiu
Школа The Heights
Фото © Laurian Ghinitoiu
Школа The Heights
Фото © Laurian Ghinitoiu
Школа The Heights
Фото © Laurian Ghinitoiu
Школа The Heights
Фото © Laurian Ghinitoiu
Школа The Heights
Фото © Laurian Ghinitoiu
Школа The Heights
© BIG
