Дом на юге России
Фотография предоставлена Студия архитектуры и дизайна ТЧК
Дом на юге России
Фотография предоставлена Студия архитектуры и дизайна ТЧК
На верхнем уровне размещается лишь небольшая часть дома – гараж и парковка с навесом, рассчитанная на два автомобиля, а также мини-площадка для баскетбола. Основной объем располагается ниже по склону. «Парящие» над травой каменные ступени, ведут к главному входу, отмеченному деревянной облицовкой и массивным навесом, зависшим меж двух стен, словно валун, упавший в ущелье и задержанный крепостью двух скал. Эффект левитации вообще характерен для всего дома – белые «бесшовные» объемы легко дифференцируются за счет богатой светотеневой игры, выступов и террасированной структуры, поддержанной массивными бетонными клумбами и утопленными в траву дорожками.
Дом на юге России
Фотография предоставлена Студия архитектуры и дизайна ТЧК
Дом на юге России
Фотография предоставлена Студия архитектуры и дизайна ТЧК
Дом на юге России
Фотография предоставлена Студия архитектуры и дизайна ТЧК
Дом на юге России
Фотография предоставлена Студия архитектуры и дизайна ТЧК
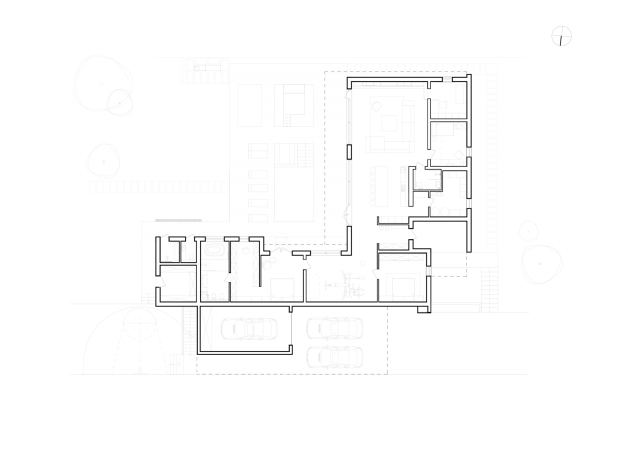
Естественный уклон рельефа и г-образный план основной части дома формирует приватный двор, в котором расположилась терраса с бассейном, лежаками и уютной «чашей» у костра. Низкорослые хвойные растения дополняют скудную растительность окружающего ландшафта. Вынос кровли, а также темная металлическая пергола дают тень.
Внутренние пространства дома, состоящие из перетекающих друг в друга пространств, делятся на две большие смысловые части. Крыло «общественной жизни» выходит панорамными окнами на бассейн: здесь помещается кухня с четырехметровым столом-«островом», гостиная, кабинет и трехуровневая детская. В приватной части – хозяйская спальня с гардеробом и ванной комнатой. «Транзитом» служит спортивный зал и тамбур входа, откуда можно попасть сразу во двор.
Палитра интерьера вторит наружной отделке: оттенки белого, серого и черного сочетаются с глубокими тонами и теплой фактурой натурального дерева.
Дом на юге России
Фотография предоставлена Студия архитектуры и дизайна ТЧК
Дом на юге России
Фотография предоставлена Студия архитектуры и дизайна ТЧК
Дом на юге России
Фотография предоставлена Студия архитектуры и дизайна ТЧК
