В районе Курляндской улицы, где и будет построен Wellamo, плотные кварталы доходных домов с дешевыми квартирами (дешевыми по меркам дат их возведения) перемежаются с заводскими и часто все еще действующими корпусами – винных складов, меднолитейного завода, фабрики «Гознак». Новые дома и даже советская застройка – редкое для этого района явление. Одного из таких «пришельцев» – АТС 1970-х постройки, как раз и заменит Wellamo.
Жилой дом со встроенно-пристроенными помещениями и подземной автостоянкой
© Архитектурная мастерская А.А. Столярчука
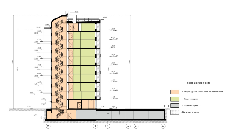
Участок располагается на пересечении Курляндской улицы и Дерптского переулка, также будущий дом будет влиять на фронт улицы Циолковского, от которой его отделяет небольшой угловой сквер. Соседом по брандмауэру станет достаточно габаритный семиэтажный доходный дом, построенный по проекту Василия Шауба, а вот напротив располагаются дома пониже, за авторством Дмитрия Крыжановского и Петра Гилёва. Десятиэтажный Wellamo займет компактный участок, но станет самым высоким в округе зданием, поэтому архитекторы старались сделать так, чтобы оно органично встроилось как в контекст исторической Курляндской улицы, так и менее однородного бульвара Циолковского.
Жилой дом со встроенно-пристроенными помещениями и подземной автостоянкой
© Архитектурная мастерская А.А. Столярчука
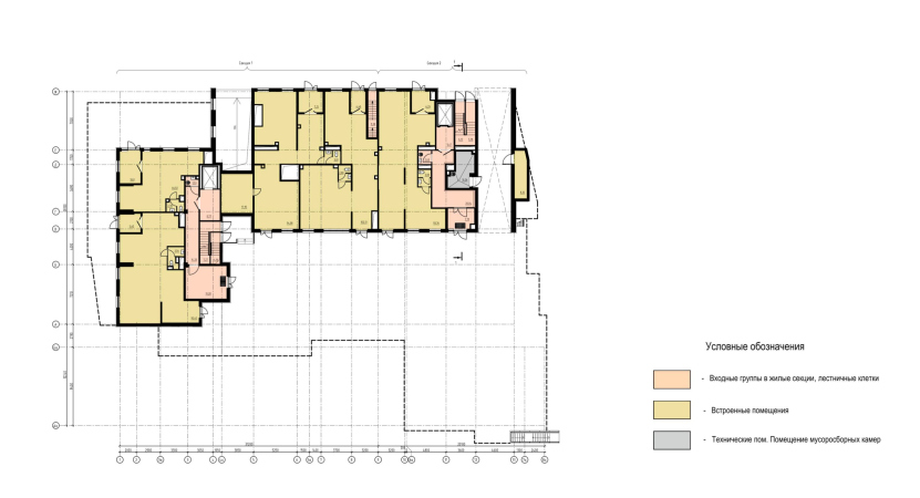
Дом состоит из двух прямоугольных секций, меньшая из которых развернута к улице Циолковского, образуя небольшой двор. Секции соединяются углами, пустота между ними – дополнительная мера, уводящая от возможной массивности, своеобразный акцент, закрепляющий угол с помощью «негативного» пространства. Первый этаж отступает от красной линии, благодаря чему часть широкого тротуара с клумбами оказывается укрытой под навесом лоджий по подобию галереи. Все первые этажи, к слову, отдаются коммерческим помещениям. Со стороны сопряжения с доходным домом располагается арка, со стороны сквера – въезд в подземный паркинг.
Жилой дом со встроенно-пристроенными помещениями и подземной автостоянкой
© Архитектурная мастерская А.А. Столярчука
Жилой дом со встроенно-пристроенными помещениями и подземной автостоянкой
© Архитектурная мастерская А.А. Столярчука
Фасадные решения служат все той же цели – подружить дом с окружением, не уходя в подражание. Фасад, выходящий на улицу Циолковского, имеет два слоя. Подложка терракотового цвета – спокойная и плоская, со строгим ритмом окон. На нее как на основу надет «кожух» из балконов и лоджий, объединенных в несколько блоков. Этот слой по габаритам и пропорциям приближен к соседнему доходному дому и акцентирован за счет выступа, светлого цвета, а также ночной подсветки, благодаря которым высокие части здания уходят «в тень».
Жилой дом со встроенно-пристроенными помещениями и подземной автостоянкой
© Архитектурная мастерская А.А. Столярчука
Жилой дом со встроенно-пристроенными помещениями и подземной автостоянкой
© Архитектурная мастерская А.А. Столярчука
Вторая секция решена только в терракотовом цвете, но имеет тот же рисунок: группы окон объединяются на высоту двух и трех этажей в блоки с тонкими простенками, которые задают ритм и растворяют монотонность. Торец этой секции представляет собой классический брандмауэр, оставляющий возможность для будущего развития этой части улицы.
Жилой дом со встроенно-пристроенными помещениями и подземной автостоянкой
© Архитектурная мастерская А.А. Столярчука
Дворовые фасады хоть и выглядят проще уличных, но все же имеют свою пластику и цветовые акценты, повторяющие основные решения. В закрытом дворе располагаются входы в парадные, также здесь появятся игровая и спортивная площадки, застройщик обещает и озеленение: планируется высадить клены, сирень, цветующие многолетники, а в центре детской площадки – голубую ель. Предусмотрена парковка, где можно оставлять велосипеды на ночь, не поднимая их в квартиру.
Жилой дом со встроенно-пристроенными помещениями и подземной автостоянкой
© Архитектурная мастерская А.А. Столярчука
Жилой дом со встроенно-пристроенными помещениями и подземной автостоянкой
© Архитектурная мастерская А.А. Столярчука
В доме Wellamo всего 95 квартир, их площадь варьируется от 24 до 108,5 м2, причем больше половины составляют 2-3 комнатные квартиры с евро-планировками. На последнем этаже располагаются большие квартиры с террасами, откуда открываются классические виды на крыши Петербурга.
С недавних пор финский застройщик ЮИТ снабжает квартиры в своих домах не только саунами и системой механической вентиляции с естественным притоком воздуха, но и системой «умный дом». Еще одна особенность проекта – квартиры-трансформеры: при покупке учитываются пожелания владельца и прорабатываются от двух до четырех вариантов планировок, которые могут стать актуальными в будущем.
Дом Wellamо планируется ввести в эксплуатацию II квартале 2023 года.
