Трехзвёздочная гостиница со встроенными помещениями
© Архитектурная мастерская А.А. Столярчука
Трехзвёздочная гостиница со встроенными помещениями. Ситуационный план
© Архитектурная мастерская А.А. Столярчука
Участок достаточно удобный, в плане близок к квадрату, небольшая часть которого – водоохранная зона. Зато он расположен почти на самом берегу реки, что позволило архитекторам предложить, в дополнение к проекту гостиницы, эскизный проект благоустройства прибрежной зоны – зеленые склоны, спуски к воде, новые деревья и мощение вместо существующего газона с единственной вереницей деревьев. Задача нового сквера – оформить место для прогулок посетителей отеля и в то же время прилечь местных жителей в ареал кафе и магазинов, помочь развитию бизнеса на отдельно взятом, сравнительно небольшом, участке.
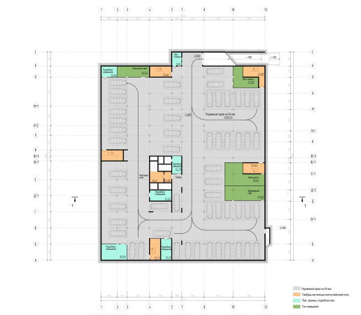
По периметру территории авторы располагают проезд, прямоугольник основной части занят стилобатом на одном ярусе подземной парковки, из которого, в свою очередь, вырастают две пластины собственно гостиницы, объединенные общим коммуникационным ядром, но смещенные одна относительно другой: одна ближе к реке, другая дальше, в плане получается похоже на очень стилизованный зигзаг молнии.
Объем получает от этого приема пластику, возможность облегчить массу методом разделения – и, с другой стороны, отзывается на контекст: советские дома розового кирпича вдоль изгиба проспекта Стачек здесь выстроены длинной «пилой» и ступенька в объемах гостиницы интерпретирует этот прием, вступает в диалог с окружением.
«Пила» домов 1970-х на проспекте Ветеранов:
Но самая интересная, пожалуй, часть проекта – стилобат. Во-первых, он, в какой-то мере интерпретируя современную классику Дэвида Чипперфильда, объединяет два нижних яруса со стороны торгового центра высокой – около 9 метров, стройной и воздушной, галереей. В обоих ярусах гостиницы с этой стороны расположены кафе и магазины, так что наличие галереи функционально оправдано. В целом, если закрыть глаза на непритязательную внешность соседнего универмага «Таллинский», здесь возникает городская торговая площадь, а высота крытого променада и тонкие пропорции пилонады добавляют импозантности и задают тон, как бы призывая окружение вытянуться постройнее.
Фасады собственно стилобата продолжают тему, заданную галереей: они расчерчены сеткой светлых опор и перекрытий, которая непринужденно «держит» большие плоскости остекления, трактуя объем основания как тонкокостный и легкий каркас. Оказывается, здание не чуждо эффекта парения, но в то же время твердо стоит «на ногах». Впрочем любопытнее то, что стилобат, в целом прямоугольный, получает несколько ответвлений, что делает его асимметричным, а композицию – нескучной. Эти «протуберанцы», в отличие от основной структуры и галереи, более плотные, с узкими прорезями и широкими пилонами.
Со стороны реки расположен главный вход и сюда далеко выступает козырек-рамка, обеспечивающий защиту от дождя для такси с постояльцами (так как высота 9 м, здесь свободно проедет и двухъярусный автобус). Выступ в северной части, на торце гостиницы, обеспечивает проезд, над ним помещается ярус магазинов. А вот южный выступ над проездом, на торце, обращенном к проспекту, несет на себе часть пластины гостиницы – объемы, таким образом, не то чтобы предсказуемо вырастают из блока основания, – все сложнее, тема зигзагообразного сдвига развивается, здание ведет себя в пространстве достаточно свободно, что добавляет и динамики, и интереса. В какой-то степени все галереи и выступы, несмотря на строгий геометризм на грани стерильности, похожи на корни здания – этакие ноги тропического дерева. Так или иначе, а они активно формируют пространство на уровне человеческого восприятия, выстраивают вокруг гостиницы ощущение освоенного городского пространства.
Кровлю стилобата предлагают озеленить и активно использовать: это способ не только получить дополнительные площади и точку притяжения, но и улучшить видовые характеристики тех номеров, что на реку не выходят. Здесь же находятся дополнительные эвакуационные выходы.
Фасад подчинен той же тонкой разгранке, что и стилобат, но здесь система оживлена диагоналями шахматного порядка: следуя ему, чередуется пара застекленных лоджий и углубления с желтыми откосами, которые благодаря керамике, латуни и подсветке сияют теплым светом, напоминая то ли вкрапления драгоценных камней, то ли свет каминов, то ли срезы породы, внутри которой медь или даже золото. Любопытный прием и очень уютный – он отчетливо показывает, что перед нами место, где можно погреться и отдохнуть, работая с эффектом теплого окна в вечернем городе и прочими знаками дома и покоя. Отчасти эффект сохраняется и днем – вообще все здание пронизано желтоватыми вставками, в стилобате они тоже присутствуют.
А шахматная геометрия, надо признать, становится характерной для Анатолия Столярчука – похожее решение использовалось в доме на Прилукской улице и в МФК на Софийской.
Высота башен – предельно допустимые на этом участке 55 метров, что чуть ниже жилого дома по проспекту Ветеранов, расположенного напротив будущей гостиницы. Анатолий Столярчук признается, что проект можно было бы улучшить, сделав башни разными по высоте. Но для этого требовалось либо поступиться квадратными метрами, либо идти на длительную процедуру согласования.
Проект получился спокойным и элегантным – именно такие слова чаще всего используют эксперты градостроительного совета, когда обсуждают планшеты мастерской Анатолия Столярчука. Новое здание согласуется окружением по высотности, функциям и даже приемам объемного построения, честно соблюдает все нормы и демонстрирует выверенный фасадный рисунок, не лишенный эмоциональности. Прививка новой архитектуры к спальному району получается безболезненной, но эффективной: здание задает новый подход и строй, после его появления выстраивать район по подобию «Таллинского» уже вряд ли получится.
