ЖК iLona
© Архитектурная мастерская А.А. Столярчука
Главная сложность, которая встала перед архитекторами – это масштаб нового комплекса: из-за технико-экономических показателей ему суждено быть выше своего окружения. В районе уже появились или строятся новые дома примерно тех же габаритов – ЖК «Нейшлотская крепость», Nobelius, «Дом на Выборгской», «БЦ Лесной, 19», и общая их проблема – соседство с двух-трехэтажными домами городка Нобеля.
ЖК iLona
© Архитектурная мастерская А.А. Столярчука
Авторам удалось сохранить с своем проекте масштаб застройки по Нейшлотскому переулку: два пятиэтажных корпуса фланкируют дом конного парка, а три десятиэтажных корпуса оказываются в глубине квартала, благодаря перспективе вполне соотносясь по высоте с домом молочного комплекса Бенуа. Учитывая, что эта часть застройки выходит на сквер, а высокие дома развернуты к переулку торцами, эффекта массивной стены получается избежать, а переход к новому масштабу происходит комфортно.
ЖК iLona
© Архитектурная мастерская А.А. Столярчука
ЖК iLona
© Архитектурная мастерская А.А. Столярчука
Со стороны Лесного проспекта картина другая: на красную линию выходит корпус чуть меньшей высоты, чем две другие пластины, последний этаж отодвинут от карниза. Однако это место, пожалуй, самое проблемное в проекте, поскольку стоящий по соседству особняк Нобеля несколько теряется на фоне нового соседа, особенно учитывая тот факт, что торцы с этой стороны комплекса получили пластическое оформление и остекление, в то время как брандмауэр мог бы играть роль кулисы. С другой стороны, здания не стоят впритык друг к другу, «пауза» между ними получилась достаточно продолжительной, чтобы смягчить контраст.
ЖК iLona
© Архитектурная мастерская А.А. Столярчука
ЖК iLona
© Архитектурная мастерская А.А. Столярчука
Добившись проницаемости комплекса и его силуэтности, архитекторы не оставили без внимания фасады, усиливая ракурсность. Пятиэтажные корпуса выполнены намеренно минималистично, чтобы не спорить с исторической застройкой, и полностью облицованы клинкерной плиткой. Крупная расстекловка и черные детали в аскетичном декоре добавляют «лофта», что коррелирует с индустриальным прошлым района и близостью железной дороги.
ЖК iLona
© Архитектурная мастерская А.А. Столярчука
В облицовке высотных корпусов появляется белая штукатурка, которая помогает акцентировать или оттенять объемные части. Если по «внешней» стороне всего комплекса масштаб первых двух этажей поддерживает облицовка из клинкерного кирпича, то внутри белый цвет разливается практически по всему фасаду. Группировка балконов и окон призвана сбить масштаб пластин и разделить их на несколько визуальных блоков.
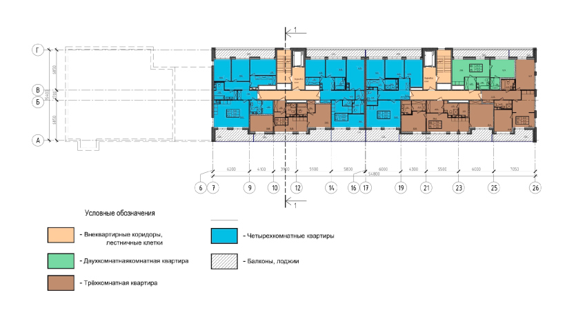
YIT – финская строительная компания, отсюда некоторые непривычные особенности комплекса: например, просторные финские балконы, возможность установки сауны и кладовые в подвальных помещениях. Комплекс рассчитан на 400 квартир площадью от 23 до 90 м2, на этаже располагается по 4-7 квартир. На стадии строительства покупатель имеет возможность выбрать планировку из нескольких вариантов – евроформат с кухней-гостиной или традиционную с отдельными комнатами. На последних этажах размещаются видовые квартиры с террасами.
Еще одна особенность комплекса, который получил название iLona, – нацеленность на сертификат BREEAM. Чтобы соответствовать его стандартам, квартиры хорошо инсолированы, предусмотрена система механической вентиляции с естественным притоком воздуха, а также установлены базовые элементы «умного дома»: жильцы смогут регулировать системы отопления, свет, температуру и влажность, контролировать протечки, дистанционно включать или отключать раздельные линии электропитания.
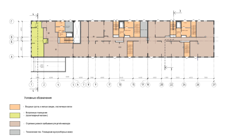
Первым застройщик планирует вводить корпус, расположенный ближе всего к железной дороге. На первом его этаже откроется детский реабилитационный центр, помещение для которого передадут городу. После завершения всего комплекса более четко оформится угол Нейшлотского переулка и Лесного проспекта – раньше его «держали деревья» – и весь уличный фронт. Ритейл на первых этажах сделает эту, долгое время пустовавшую, часть района более активной.
