Квартальный подход

Квартал актуальная тема, и архитекторы бюро Кашириных трактуют частный дом, состоящий из нескольких объемов на небольшой территории, как квартал с внутренним двором. И даже сопоставляют свой дом – типологически загородный, – с городской застройкой в микромасштабе.

mainImg
Архитектор:
Игорь Каширин
Алёна Каширина
Мастерская:
Архитектурная мастерская Кашириных http://kashirins-architects.ru/
Проект:
Дом как приватный квартал
Россия, Королёв

Авторский коллектив:
Архитекторы, партнеры: Елена Валерьевна Каширина, Игорь Валентинович Каширин 

2015 — 2016 / 2016 — 2019
Описание от авторов проекта: 

«Загородный дом находится в одном из пригородов Москвы, в его живописной части, где сосредоточена довольно плотная малоэтажная застройка частных домов. Специфика небольшого участка и требования заказчика продиктовали необычную компоновку постройки.
Макет. Дом как приватный квартал
© Архитектурная мастерская Кашириных

Перед нами как архитекторами стояла задача уместить на небольшом пятне застройки множество разных функций таким образом, чтобы они не конфликтовали друг с другом. Мы, привыкшие заниматься крупномасштабной архитектурой, стали рассматривать частный дом как целый мультифункциональный квартал. И в этом нашли решение поставленной задачи. Так основные функциональные блоки дома образуют периметральную застройку вокруг приватного дворика. Получается, что застройка как бы состоит из нескольких небольших разновысотных домиков, образующих своеобразный микро-квартал в масштабе загородного дома. Блоки выделяются контрастными материалами, среди которых стекло, кирпич и штукатурка. В результате получился городской характер застройки, размещенный в природном окружении на ограниченной территории.
  • zooming
    1 / 8
    Вид на дворовую часть, гостиная. Дом как приватный квартал
    © Архитектурная мастерская Кашириных, фотография Дмитрий Яговкин
  • zooming
    2 / 8
    “Ферма-бабочка”. Дом как приватный квартал
    © Архитектурная мастерская Кашириных, фотография Дмитрий Яговкин
  • zooming
    3 / 8
    Дом как приватный квартал
    © Архитектурная мастерская Кашириных, фотография Дмитрий Яговкин
  • zooming
    4 / 8
    Дворик. Дом как приватный квартал
    © Архитектурная мастерская Кашириных, фотография Дмитрий Яговкин
  • zooming
    5 / 8
    Дворик. Дом как приватный квартал
    © Архитектурная мастерская Кашириных, фотография Дмитрий Яговкин
  • zooming
    6 / 8
    Фасад со стороны главного входа. Дом как приватный квартал
    © Архитектурная мастерская Кашириных, фотография Дмитрий Яговкин
  • zooming
    7 / 8
    Контраст материалов, ленточное остекление ванной комнаты. Дом как приватный квартал
    © Архитектурная мастерская Кашириных, фотография Дмитрий Яговкин
  • zooming
    8 / 8
    Гостиная. Дом как приватный квартал
    © Архитектурная мастерская Кашириных, фотография Дмитрий Яговкин

При этом жизнь в “приватном квартале” кипит так же, как и в центре города, но в своем микромасштабе. У каждого из домиков свой функционал: спальни, детская, гостиная и холл. Все блоки расположены таким образом, чтобы их обитатели не мешали друг другу. Спальни и детская разделены лестницей, а просторный проницаемый холл отделяет их от гостиной. Двор объединяет все части “квартала” и служит общим приватным пространством, скрытым от соседних участков. От перегрева и осадков он защищен навесом. Приватный и в тоже время проницаемый внутренний двор – это уютное пространство для семейных обедов, дружеских посиделок, барбекю».
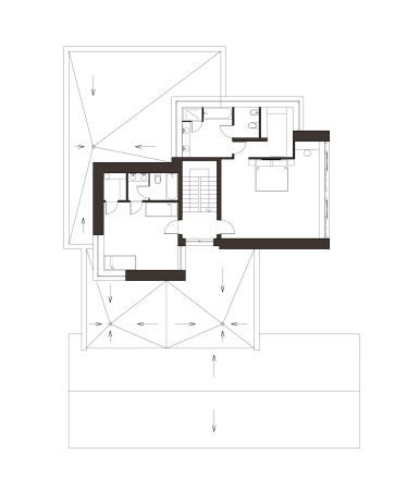
  • zooming
    1 / 4
    План 1-го этажа. Дом как приватный квартал
    © Архитектурная мастерская Кашириных
  • zooming
    2 / 4
    План 2-го этажа. Дом как приватный квартал
    © Архитектурная мастерская Кашириных
  • zooming
    3 / 4
    Разрез. Дом как приватный квартал
    © Архитектурная мастерская Кашириных
  • zooming
    4 / 4
    Сечение. Дом как приватный квартал
    © Архитектурная мастерская Кашириных
Архитектор:
Игорь Каширин
Алёна Каширина
Мастерская:
Архитектурная мастерская Кашириных http://kashirins-architects.ru/
Проект:
Дом как приватный квартал
Россия, Королёв

Авторский коллектив:
Архитекторы, партнеры: Елена Валерьевна Каширина, Игорь Валентинович Каширин 

2015 — 2016 / 2016 — 2019

12 Августа 2020

Похожие статьи
Типографика пространства
Консорциум ab Plombir и проект «ДАЛЬ» разработали комплексную концепцию развития исторического квартала «Нижполиграф» в Нижнем Новгороде. Бывшая типография превращается в креативный кластер и федеральный технопарк профессионального образования. Проект сохраняет промышленную идентичность места, деликатно работает с объектом культурного наследия и программирует 45 000 м2 как единую экосистему для встреч, коллабораций и городской жизни.
За холмами
Бюро Анастасии Томенко спроектировало для участка в районе Жигулевских гор загородный дом. Он одновременно подражает холмистому рельефу и заявляет о своем статусе выразительной скульптурной оболочкой, предлагает уединение и широкие виды, а также разные сценарии использования – от бутик-отеля до частной резиденции.
Звенья одной цепи
Бюро ulab разработало проект жилого комплекса, для которого выделен участок на границе с лесным массивом и экотропой «Уфимское ожерелье». Чтобы придать застройке индивидуальности, архитекторы использовали знакомые всем горожанам образы: башни силуэтом и материалом облицовки соотносятся со скальными массивами, а урбан-виллы – с яркими деревянными домиками. Не оставлено без внимания и соседство с советским кинотеатром «Салют» – доминанта комплекса подчеркивает его осевое расположение и использует паттерн фасада как основу для формообразования.
DELO’вой подход
Компания DELO успешно ведет дела во многих архитектурно-дизайнерских областях. Для того чтобы наилучшим образом представить все свои DELO’вые ипостаси, она создала специальное пространство, в котором торговая, маркетинговая и рабочая функции объединены в единый, очень органичный и привлекательный формат.
Северный ветер
Региональные бренды все чаще обзаводятся своими шоу-румами в лучших московских торговых центрах, и это дает возможность не только познакомиться с новыми именами в фэшн-дизайне, но и увидеть яркие произведения интерьерного дизайна от успешных бюро, достигших успеха в своих родных городах и уверенно завоевывающих столичный рынок.
Всматриваясь вдаль
Гордость за свой город и стремление передать его genius loci во всех своих проектах – вот настоящее кредо каждого питерского архитектора. И бюро ZIMA уверенно следует негласному принципу, без скидок на размеры и функцию, создавая интерьер небольшого магазина модной одежды LESEL так же, как если бы они делали парадную залу.
Школа со слониками
Девелопер «МетроПолис» выступил в несвойственной роли проектировщика при разработке для постконструктивистского детского сада со слониками в московском Щукино концепции реставрации и приспособления под современную школу. Историческое здание дополнит протяженный объем из легковозводимых деревоклееных конструкций. «Пристройку-забор»украсят панно с изображением памятников 1920-1930-х и зеленая кровля. Большим навесом, предназначенным для ожидающих родителей, смогут воспользоваться и посетители городского сквера «Юность».
Гипербола в кирпиче
Апарт-комплекс «Маки» – третья очередь комплекса «Инские холмы» в Новосибирске. Проектная артель 2ПБ создала в ней акцент за счет контраста материалов и форм: в кирпичном объеме, тяготеющем к кубу, сделаны два округлых стеклянных «выреза», в которых отражается город. Специально для проекта разработан кирпич особого цвета и формовки. Рельефная кладка в сочетании с фибробетоном, моллированным стеклом и гранитом делают архитектуру «осязаемой». Также пространство на уровне улицы усложнено рельефом.
Теплый берег
Проектная группа 8 и Институт развития городов и сел Башкортостана во взаимодействии с жителями района на окраине Уфы благоустроили территорию вокруг пруда. Зонировние учитывает интересы рыбаков, любителей наблюдать за птицами, владельцев собак и, конечно, детей и спортсменов. Малые архитектурные формы раскрывают природный потенциал территории, одновременно делая ее более безопасной.
Приближение таинства
Бюро Ивана Землякова ziarch спроектировало для Новой Москвы небольшой храм для венчаний и крещений, который также включает приходское кафе в духе «Антипы». Автор ясно разделяет мирскую и храмовую части, опираясь на аналоги из архангельских деревень. Постройка дополнит основной храм, перекликаясь с ним схожими материалами в отделке.
Жизнерадостный декаданс
Ресторан «Машенька», созданный бюро ARCHPOINT, представляет еще один взгляд на интерьерный дизайн, вдохновленный русскими традициями и народными промыслами. Правда, в нем не так много прямых цитат, а больше вольных фантазий в духе «Алисы в стране чудес», благодаря чему гости могут развлечься разгадыванием визуальных шарад.
Легкая степень брутализма
Особенные люди собираются в особенных местах. Например, в кофейне St.Riders Coffee, спроектированной бюро Marat Mazur interior design специально для сообщества райдеров и любителей экстрима, с использованием материалов и деталей, достаточно брутальных, чтобы будущие посетители почувствовали себя в своей стихии.
Текстильный подход
Бюро 5:00 am создало для фабрики «Крестецкая строчка» и бренда Alexandra Georgieva московский шоу-рум, продолжив эксперименты со стилизацией под классические жилые интерьеры XIX века, в которых благодаря переосмыслению культуры быта и прикладной эстетики актуальные тренды сочетаются с народными традициями, атмосферностью и тактильностью.
Еловый храм
Бюро Ивана Землякова ziarch для живописного участка на берегу Волги недалеко от Твери предложило храм, которые наследует традициям местного деревянного зодчества, но и развивает их. Четверик поднят на бетонный подклет, вытянутая восьмискатная щипцовая кровля покрыта лемехом, а украшением фасада служат маленькие оконца. Сочетание материалов, форм и приемов роднит храм с окружающим лесным пейзажем.
Сезонные настроения
Бюро «Уголок» разработало интерьер одного из филиалов ресторана «М2 Органик клуб», специализирующегося на экологически чистой продукции и органической кулинарии, проиллюстрировав при помощи дизайна каждое из четырех времен года.
Фахверк в формате барнхауса
В проекте загородного дома Frame Wood от AGE architects тектоника мощного фахверкового каркаса освобождена от стереотипов и заключена в лаконичный силуэт барнхауса. Конструкция по-прежнему – главное средство выразительности, но она становится более вариативной, а дом приобретает не характерную для фахверка легкость.
Цветы жизни
Архитектурная мастерская «Константин Щербин и партнеры» разработала мастер-план кампуса Университета имени Лесгафта, который, вероятно, расположится во Всеволожске. Планировочная структура с четким ядром и системой осей напоминает цветочную поляну, в центре которой – учебные корпуса, а ближе к периферии – жилой городок, спортивные объекты и медицинский кластер. В мастер-план заложен зеленый и водный каркас, а также транспортная схема, предполагающая приоритет пешеходов и велосипедистов.
«Призрак» в разноцветном доспехе
Новый формат ресторанов – «призрачная кухня», появившийся не так давно на волне все возрастающей с ковидных времен привычки заказывать ресторанную еду на дом, требовал не менее нового и эффектного дизайна. Именно такое неформальное и жизнерадостное дизайнерское лицо разработало бюро VEA Kollektiv для бренда Why Not Sushi.
Корочка льда
В рамках конкурса «Неочевидное. Арктика» петербургское бюро GRAD предложило для города-спутника Мурманска социальный хаб с видами на Кольский залив. Здание состоит из нескольких модулей, которые группируются вокруг атриума и соединяются мостами. У каждого модуля своя функциональная программа, что на фасаде проявлено различными типами облицовки из перфорированных металлических панелей. В проекте используются prefab-технологии
В ритме Неглинной
Citizenstudio бережно осовременили недостроенный трехэтажный корпус на Неглинной, принадлежащий МФЮА. Ограниченные логикой существующего объема, архитекторы, тем не менее, смогли реализовать достаточно тонкую игру со стилевыми реминисценциями самых разных исторических периодов и максимально деликатно вписаться в контекст центра Москвы.
Искушающая нежность
Бюро «Синица» умеет совершать большие и маленькие чудеса, создавая для магазинов не просто интерьеры, а целую философию. Магия дизайна привносит в пространство новую атмосферу и эстетику, а брендам – дает ключ к пониманию своей миссии.
Между сосен
Публикуем новый кампус Физмат школы Новосибирского государственного университета (НГУ), построенный по проекту AI Studio в Академгородке. Это весьма удачная попытка вписаться в глобальный контекст современного образования, перенеся центр тяжести с фасадов на качество обучающей среды.
Ячейка и кривуля
Детский сад, построенный по проекту BuroMoscow в столичном ЖК Грин парк, удачно балансирует между языком модернизма и эстетикой сделанного цветными карандашами рисунка. Кубический объем с регулярной фасадной сеткой отсылает к сортеру – развивающей игрушке, помогающей в числе прочего почувствовать форму. Роль объемных фигурок для сортировки играют залы, которые выбиваются из общей матрицы и делают элегантные фасады чуть менее серьезными. Яркий цвет этих залов сообщает нежный рефлекс помещениям холлов и групповых комнат, преимущественно белых. Среди других находок: отсутствие забора, встроенные в фасад скамейки и кадки для цветов, деревянные створки на панорамных окнах.
Зов традиции
Проект современной юрты в Ботаническом саду Алматы казахстанское бюро Cogarts готовило, что называется, для души. Однако в процессе работы подвернулся подходящий конкурс, который способствовал кристаллизации идей. Юрта стала местом для проведения небольших культурных событий и принесла бюро несколько архитектурных премий.
Путь к истокам
Бюро SEEU подошло к проекту реконструкции популярного в Калининграде ресторана «Соль» как к исследованию истории края и поиску в нем ключей к построению гармонии между европейской и азиатской дизайнерской традицией и философией.
Скорлупа под антаблементом
Архитектор Егор Рыбин спроектировал ТРЦ для коттеджного поселка «Боярское» в 30 км от Нижнего Новгорода, прочитав его как парковый павильон. Кирпичные экседры считываются как фрагменты ротонды, а прорастающее сквозь центральную арку дерево символично напоминает о главенстве пейзажа.
Против ветра
Общественно-деловой центр «Графит» построен по проекту бюро FUTURA-ARCHITECTS в новом жилом районе, который развивается за южной границей Санкт-Петербурга, недалеко от Финского залива. Авторы отрефлексировали близость холодного Балтийского моря, придав зданию динамику преодоления и скругленные, словно от ветра и воды, края.
Игра противоположностей
На месте снесенной пожарной части в Ижевске построен жилой комплекс «Монблан». Авторы проекта из бюро «АП-Групп» собрали композицию из двух объемов, соединив классическую сетку одного с деконструктивистской свободой ломаных форм другого.
Вне стресса
DA bureau продолжает ломать стереотипы и задавать новые тренды. В новом медицинском центре, практикующем биохакинг, они материализовали дизайн, который раньше, если где-то и встречался, то в мультфильмах о воображаемых мирах, светлых и настолько умиротворяющих, что не понятно, где проходит граница между сном и анимированной реальностью.
Вторая жизнь гидроузла
Департамент технического заказчика предложил превратить монументальные руины советского гидроузла в Подольске в кластер экстремальных развлечений. Бетонные скелеты плотин в нем становятся объектами скалолазания, страйкбольными декорациями и скейтпарком.
Технологии и материалы
Моллирование от Modern Glass: гибкость без ограничений
Технологии компании Modern Glass позволяют производить не просто гнутое стекло, а готовые стеклопакеты со сложной геометрией: сверхмалые радиусы, моллирование в двух плоскостях, длина дуги до 7 м – всё это стало возможно выполнить на одном производстве. Максимальная высота моллированных изделий достигает 18 м, благодаря чему можно создавать цельные фасадные поверхности высотой в несколько этажей без горизонтальных стыковочных швов, а также реализовывать сложные комбинированные решения в рамках одного проекта.
Cool Colours: цвет в структуре
Благодаря технологии коэкструзии, используемой в системах Melke Cool Colours, насыщенный цвет оконного профиля перестал вызывать опасения в долговечности конструкции. Работать с темными и фактурными оттенками можно без риска термической деформации и отслаивания.
Быстро, дешево и многоэтажно
Техасский ICON – производитель промышленных 3D-принтеров и компаньон бюро BIG – выпустил на рынок новую печатную систему. Она предназначена для строительных компаний, а не для частных пользователей. Подразумевается, что на установке Titan будут печатать быстровозводимые, качественные и относительно дешевые дома. А рядовые покупатели, пусть и не знакомые с аддитивными технологиями, смогут обзавестись доступным инновационным жильем.
Фальцевая кровля Rooflong как инженерная система
Современная архитектура предъявляет к кровельным системам значительно более высокие требования, чем это было еще несколько лет назад. Речь идет не только о защите здания от внешних воздействий, но и о сложной геометрии, долговечности, интеграции инженерных элементов и точной реализации архитектурной идеи. Так, фальцевая кровля все чаще рассматривается не как отдельный материал, а как часть комплексной оболочки здания.
Эффективные фасады из полимеров
К современным фасадам предъявляются множество требований: они должны быть одновременно легкими и прочными, гибкими и удобными в монтаже, эстетичными и пригодными для повторного использования. Полимерные композитные системы успешно справляются со всеми этими задачами, выходя далеко за рамки традиционной светотехники и стандартных форм. Эффективность выражается в снижении нагрузки на каркас, в простоте монтажа, в возможности создавать сложнейшие скульптурные оболочки. Разберем, как это работает на практике.
По второму кругу
​В Осаке разбирают «Большое кольцо» – гигантскую деревянную конструкцию, построенную по проекту Со Фудзимото для ЭКСПО-2025. Когда демонтаж завершится, древесину от «Кольца» передадут новым владельцам. Стройматериалы пойдут на восстановление домов, пострадавших от стихийных бедствий, и на строительство новых сооружений.
Архитектура потоков: узкие места в проектах логистических...
Проектирование логистических объектов – это не столько про объём, сколько про систему управляемых переходов между зонами. Значительное время работы техники теряется на ожидания, причём основные потери концентрируются не в стеллажном хранении, а в проёмах, стыках температурных контуров и зонах пересечения потоков. Разбираемся, почему реальная производительность склада определяется не характеристиками автоматизации, а временем открытия проёма, и как этот параметр закладывается в проект.
Стекло AIG в проекте Центрального телеграфа
В отреставрированном Центральном телеграфе на Тверской использованы три типа остекления AIG: для исторического фасада, кровли атриума и внутренних ограждений. Основные требования – нейтральность цветопередачи, солнцезащита без затемнения и сохранение визуальной легкости исторического объема.
Три цвета MODFORMAT на фасаде
Жилой комплекс «ЦЕНТР» в Бресте – первый в портфеле «Полесьежилстрой» проект, где фасады полностью выполнены из клинкера удлиненного формата. Квартал из пяти корпусов распродан почти на 100%, строительство продолжается. Разбираемся, что именно сработало: архитектурное решение, выбор материала или их удачное сочетание.
От модерниста – экологисту
Швейцарский архитектор Барбара Бузер получила премию Джейн Дрю 2026 года. Ежегодную премию представительницам слабого пола вручает журнал Architects′ Journal – за профессиональные достижения и «укрепление женского авторитета в профессии».
Зеленые полимеры: эволюция фасадной теплоизоляции
Современная «зеленая архитектура» – это не только про озеленение крыш и солнечные батареи. В первую очередь, это про технологии, снижающие углеродный след здания. Ключевую роль здесь играют теплоизоляционные материалы (ТИМ), позволяющие радикально сократить потребление энергии. Пенополистирол, PIR и другие материалы, которые принято называть «зелеными полимерами» за их вклад в энергоэффективность, сегодня превратились в стандарт индустрии.
Пищевые производства: логистика и температура
Будучи одними из самых сложных объектов с точки зрения внутренней организации, пищевые производства требуют не просто размещения холодильных камер и цехов, а создания системы «климатических островов» внутри здания. Главная сложность возникает в зонах проемов в условиях интенсивного движения техники и персонала. Разбираем инженерные нюансы подбора оборудования, позволяющие обеспечить герметичность без потери энергоэффективности и удобства логистики.
Тепло и форма
Энергоэффективность сегодня – не враг архитектурной выразительности. Полимерные утеплители – ЭППС, ПИР, ППУ – берут на себя нагрузку, усадку и влагу, освобождая фасад от массивных наслоений. Какой материал выбрать для фундамента, фасада и кровли, чтобы сохранить и тепло, и чистоту линий – разбираем в обзоре.
Угольная пыль вместо цемента
Ученые Пермского Политеха и УрФУ создали экологичный бетон с повышенной водостойкостью. В составе материала – тонкомолотые горелые породы, отравляющие экологию угледобывающих регионов.
Материал с характером
За последние годы продажи металлических фасадных кассет в России выросли почти на 40 % – в сегментах бизнес и премиум всё активнее спрос на материалы, которые дают архитектору свободу работать с выразительной формой, не в ущерб безопасности и сроку службы фасада. Металлокассеты стали одним из главных ответов на этот запрос. Смотрим актуальные приёмы их применения на реализованных объектах от компании «Алкотек».
Архитектура воздухообмена
В зданиях большого объема – от спортивных комплексов до производственных корпусов – формирование комфортного микроклимата связано с особыми инженерными задачами. Одной из ключевых становится организация циркуляции воздуха, позволяющая устранить температурное расслоение и обеспечить равномерные условия по всей высоте пространства.
Инновационное остекление для идеального микроклимата:...
В современной архитектуре стеклопакет приобрел множество полезных функций, став полноценным инструментом управления микроклиматом здания. Так, энергосберегающие стеклопакеты эффективно удерживают тепло в помещении, солнцезащитные – предотвращают перегрев, а электрообогреваемые сами становятся источником тепла. Разбираемся в многообразии современных стеклоизделий на примере продукции Российской Стекольной Компании.
Опоры из грибницы
В США придумали новую альтернатива бетону – живой материал на основе мицелия и бактерий. Такой материал способен самовосстанавливаться и годится для применения в конструктивных компонентах зданий.
«Сухой» монтаж: КНАУФ в BelExpo
Минский BelExpo возвели на год раньше плана. Ключевую роль сыграли технологии КНАУФ: в основе конструкций – каркасно-обшивное перекрытие, собранное как конструктор и перекрывающее 6 метров без тяжелой техники, а также системы «потолок под потолком» с плитами КНАУФ-Акустика.
Полы, выращенные бактериями
Нидерландско-американская исследовательская команда представила напольную плитку на основе «биоцемента». Привычный цемент, выполняющий роль вяжущего вещества, авторы заменили на выработанный бактериями известняк. При производстве плитки Mimmik в среду попадает на 60% меньше выбросов – по сравнению с традиционной.
Сейчас на главной
Мембрана для мысли: IND
Бюро IND предложило для ФИЦ биомедицинских технологий проект, вдохновлённый устройством нейронной сети: многогранные полупрозрачные объёмы, сдвинутые относительно друг друга, образуют «живую структуру» – с «синапсами» общих дворов, где случайный разговор в атриуме может превратиться в научную коллаборацию.
Сплав мировых культур
Гостевой дом, построенный по проекту Osetskaya.Salov на окраине Переславля-Залесского, предлагает путешественнику насыщенное пространство, которое дополнит опыт пребывания в древнем городе. Внутри – пять номеров, отсылающих к славянской, африканской, индуистской, европейской и латиноамериканской культурам. Их расширяют общие пространства – терраса с коммунальным столом, эскуплуатируемая кровля с видом на город, укромный сад. Оболочка здания транслирует универсальное высказывание, вбирая в себя черты всех культур.
«Шартрез д’Эма»: монастырь под Флоренцией как архетип...
Петр Завадовский рассматривает влияние картезианского монастыря в тосканском Галлуццо на формирование концептуальных основ жилищной архитектуры Ле Корбюзье, а также на его проект «дома вилл» – Immeuble-villas.
КиноГолограмма
Не так давно московскими властями был одобрен проект нового комплекса Дома Кино от архитекторов Kleinewelt. Старое здание 1968 года сохранить не удалось – зато авторы сберегли витражи, металлические рельефы, а также объемные параметры здания, в котором разместится Союз кинематографистов и кинозалы. А главным акцентом станет жилая башня. Изучаем ее пластику и аллюзии в московском контексте.
Форма как метод: ТПО «Резерв»
В основе концепции Владимира Плоткина и ТПО «Резерв» – нетривиальная морфология, работающая на решение функциональных задач помимо чисто формальных. Хотя больше всего, конечно, на выразительность и создание редкостного – как можно предположить, рассматривая ключевые решения проекта, пространственно-эмоционального опыта. Изучили, оно того стоит. Наша версия – в таком проекте работает не стиль и даже не метафора, а метод.
Консервация как комментарий
Для руинированной усадьбы Сумароковых-Миллеров, расположенной недалеко от Тарусы, бюро Рождественка предложило концепцию противоаварийных работ, которая помогает восстановить целостность объекта, не нарушая принципов охраны наследия. Временная мера не только стабилизирует памятник и защищает его от дальнейших разрушений, но также позволяет ему функционировать как общественный объект.
Хроника Шуховской башни
Над шаболовской башней сгущается, теперь уже всерьез. Ее собираются построить в новом металле – копию в натуральную величину. Сейчас, вероятно, мы находимся в последней точке невозврата. Айрат Багаутдинов, основатель проекта «Москва глазами инженера», собрал впечатляющую подборку сведений по новейшей истории башни: попытки реконструкции, изменения предмета охраны и общественный резонанс. Публикуем. Сопровождаем фотографиями современного состояния.
Лесные травы
Студия 40 создала интерьер ресторана FOREST в Екатеринбурге, руководствуясь необычным принципом – дизайн должен быть высококлассным и при этом ненавязчивым, чтобы все внимание посетителей было сосредоточено на кулинарных впечатлениях.
Земельные отношения
Экоферма Цзаохэ в предместье Пекина восстанавливает отношения между человеком, землей и пищей. Fon Studio в своем проекте предсказуемо обратилось к традициям и легендам.
Курган памяти
Конкурсный проект мемориального комплекса на Пулковских высотах от «Студии 44» не будет реализован, но мы хотим о нем рассказать – это интересный пример того, как с помощью архитектуры можно символизировать травматичные события и тем самым способствовать их переработке и интеграции в опыт человека. Кроме того, авторам удается совместить мемориальную функцию с рекреационной, не уходя ни в драматизацию, ни в упрощение. Проект развивает идеи двух других конкурсных работ, ушедших в стол, – Музея блокады и парка «Тучков буян». А еще – отсылает к холму-кургану, который Александр Никольский воплотил в облике уже утраченного стадиона на Крестовском острове.
Между цирком и рынком
Манеж для представлений по проекту K architectures на конном заводе в Бретани соединяет ресурсоэффективность с традициями французской архитектуры.
Баня по-царски
Бюро «Уникум» создало собственную версию идеального банного интерьера, отказавшись от расхожих трендов в пользу собственного уникального стиля – нео-русской готики, одновременно роскошной, интригующей и сказочной, что делает поход в эту баню настоящим побегом от серой реальности.
«Заря» над волнами
В проекте реконструкции муниципального пляжа «Заря» в Сочи от бюро V6 GROUP – террасирование, «текучий» бетон и открытый бассейн стали ответами на главные вызовы курорта: нехватку места, капризы моря и модернистскую айдентику местной инфраструктуры.
Белый конгломерат: AI-Architects
Белые цилиндры «слипаются», расширяются кверху и подсвечиваются изнутри, как гигантские лабораторные колбы. Внутри – атриум-амфитеатр, где наука становится зрелищем. Мы продолжаем публиковать конкурсные проекты ФИЦ оригинальных и перспективных биомедицинских и фармацевтических технологий и показываем концепцию от консорциума «АИ-АРХИТЕКТС+ТОЛК+ZLT+АрТех Лаб».
Между фантазией и реальностью: ПАСП & РОСТ
Начинаем публикацию конкурсных проектов ФИЦ биомедицинских и прочих технологий – с проекта, занявшего 6 место. Но Сергей Кузнецов сказал, что «разрыв между участниками был минимальным». А значит, все интересны. Предваряем обзором участка и задач – только так можно понять конкурсные проекты. Проект воронежской команды настроен на практику и удобство, рациональный подход к построению и вероятным трансформациям. Какое у них ключевое решение – читайте в тексте.
Типографика пространства
Консорциум ab Plombir и проект «ДАЛЬ» разработали комплексную концепцию развития исторического квартала «Нижполиграф» в Нижнем Новгороде. Бывшая типография превращается в креативный кластер и федеральный технопарк профессионального образования. Проект сохраняет промышленную идентичность места, деликатно работает с объектом культурного наследия и программирует 45 000 м2 как единую экосистему для встреч, коллабораций и городской жизни.
За холмами
Бюро Анастасии Томенко спроектировало для участка в районе Жигулевских гор загородный дом. Он одновременно подражает холмистому рельефу и заявляет о своем статусе выразительной скульптурной оболочкой, предлагает уединение и широкие виды, а также разные сценарии использования – от бутик-отеля до частной резиденции.
Фолиант большого архитектора
Олег Явейн написал, а «Студия 44» издала монументальный двухтомник про Александра Никольского. Многие материалы публикуются впервые. Читается, при всей фундаментальности, легко. Личность, и архитектура человека-гиганта (он был большого роста), который пришел к авангарду своим путем и не был готов «отпустить» то, что считал правильным – а о политике не говорил вообще никогда – показана с разных сторон. Читаем, рассуждаем, рассказываем несколько историй. Кое-что цепляет пресловутой актуальностью для наших дней.
Взгляд сверху
Дом “Энигмия” на Новослободской, спроектированный Андреем Романовым и Екатериной Кузнецовой, ADM architects – яркий, нашумевший проект последних месяцев. Соответствуя своему названию, он волшебно блестит и загадочно вырастает, расширяясь вверх. Расспросили девелопера и архитектора.
Переплетение перспектив
В середине апреля в Центральном доме архитектора Москвы прошел очередной Всероссийский архитектурный молодежный фестиваль «Перспектива 2026». Темой этого года стало «Переплетение». Конкурсная программа включала смотр-конкурс среди студентов и молодых архитекторов, а также конкурс на разработку архитектурной концепции многофункционального центра «Город Талантов» в Кемерово. Показываем победителей.
Блоки и коробки
Дом по проекту Studioninedots в новом районе Амстердама раскладывает жизнь семьи с двумя детьми по «коробочкам».
Звенья одной цепи
Бюро ulab разработало проект жилого комплекса, для которого выделен участок на границе с лесным массивом и экотропой «Уфимское ожерелье». Чтобы придать застройке индивидуальности, архитекторы использовали знакомые всем горожанам образы: башни силуэтом и материалом облицовки соотносятся со скальными массивами, а урбан-виллы – с яркими деревянными домиками. Не оставлено без внимания и соседство с советским кинотеатром «Салют» – доминанта комплекса подчеркивает его осевое расположение и использует паттерн фасада как основу для формообразования.
Стоечно-балочное гостеприимство
Отель Author’s Room по проекту B.L.U.E. Architecture Studio в агломерации Гуанчжоу соединяет для постояльцев отдых на природе с флером интеллектуальности от видного китайского издательства.
DELO’вой подход
Компания DELO успешно ведет дела во многих архитектурно-дизайнерских областях. Для того чтобы наилучшим образом представить все свои DELO’вые ипостаси, она создала специальное пространство, в котором торговая, маркетинговая и рабочая функции объединены в единый, очень органичный и привлекательный формат.
Тянись, нить
Как вырастить постиндустриальную городскую ткань из места с богатой историей? Примером может служить реставрация производственного корпуса шерстоткацкой фабрики в Москве. Здание удалось сохранить среди новых жилых домов. Сейчас его приспосабливают – частью под креативные офисы, частью под магазины и рестораны.
IAD Awards 2026
В этом году среди призеров премии International Architecture & Design Awards целая россыпь российских проектов, преимущественно от московских бюро. Рассказываем подробнее об обладателях платиновых наград и показываем всех финалистов из номинации «Архитектура».
Иван Кычкин: «Наш подход строится на балансе между...
За последнее время на архитектурном горизонте России все чаще появляются новые и интересные бюро из Республики Саха. Большинство из них активно участвуют в программах благоустройства, но не ограничиваются ими, развивая новые направления на стыке архитектуры, дизайна и арт-практик. Одним из таких бюро является мультидисциплинарная студия GRD:, о специфике которой мы поговорили с ее руководителем Иваном Кычкиным.
Северный ветер
Региональные бренды все чаще обзаводятся своими шоу-румами в лучших московских торговых центрах, и это дает возможность не только познакомиться с новыми именами в фэшн-дизайне, но и увидеть яркие произведения интерьерного дизайна от успешных бюро, достигших успеха в своих родных городах и уверенно завоевывающих столичный рынок.
Волна и камень: обзор проектов 20-26 апреля
Новые проекты прошедшей недели – все они, к слову, московские – позволяют говорить об интересе к бионическим формам. Пока что в достаточно простом их проявлении: вас ждем много волнообразных фасадов, изогнутых контуров, а также стилизованные «воронки» бутонов и даже прямые «цитаты» в виде огромных драгоценных камней. Часто подобные приемы кажутся беспочвенно заимствованными, редко – устойчивыми и экологичными.
В ожидании китайской Алисы
Бюро PIG DESIGN по заказу компании NEOBIO, развивающей в Китае сеть оригинальных игровых центров, создало магическое пространство, насыщенное таким огромным количеством удивительных с визуальной и функциональной точки зрения открытий, что его можно использовать в качестве методического пособия для подготовки архитекторов и дизайнеров.