Соседство с экспрессивным бруталистским зданием, которое в 2024 году открылось после длительной реконструкции, стало одним из факторов, повлиявших на архитектуру Дворца. Другие значимые обстоятельства: близость Москвы-реки, особенности функции и протяженность участка, вытянутого вдоль эстакады метромоста более чем на 300 метров.
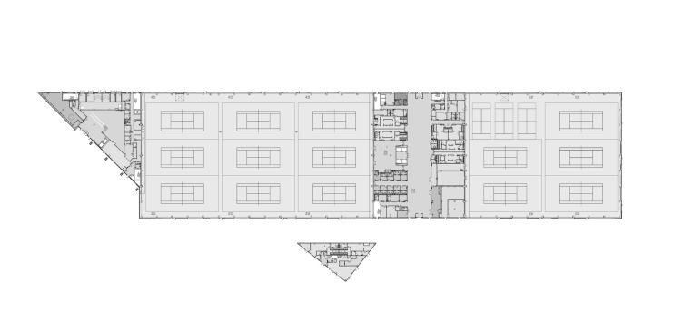
В соответствии с «технологией» здание делится на четыре блока. Два из них – «спортивные», внутри размещаются всевозможные корты: для большого и настольного тенниса, бадминтона, игры в сквош или модный падел. Естественный свет поступает через зенитные фонари и боковые витражи, поднятые на всю высоту здания. Их конструкции реагируют на интенсивность солнечного света, не позволяя прямым лучам влиять на игру. Искусственное освещение интегрировано в систему шедовых фонарей кровли. Каждая площадка оборудована видео-аналитической системой, залы можно трансформировать под проведение соревнований.
Еще два блока, разделенные на четыре и пять этажей, предназначены для всех сопутствующих функций. Один из них располагается между кортами и вмещает раздевалки, фитнес-центр, бассейн со спа-зоной, а также кафе правильного питания, спортивный магазин и административные помещения. Второй блок, расположенный ближе к выходу станции метро «Воробьевы горы» и обращенный к набережной Москвы-реки, рассчитан на более широкую аудиторию, поэтому в нем обосновалось большое видовое кафе, бизнес-центр и ряд компаний, которые оказывают услуги массажа, реабилитации и специализированных спортивных тренировок. Помещения в каждом блоке группируются вокруг атриумов сложной формы.
Наконец, продолжением комплекса стали открытые корты на прилегающем участке, для обслуживания которых построен небольшой треугольный «флигель» с раздевалками и очень популярным кафе: вместе со столиком гость получает возможность понаблюдать за игрой.
Каждый тип блоков имеет собственное архитектурное выражение. «Спортивные» – более протяженные, прямоугольные в плане, с объемными серебристо-серыми фасадами. «Сопутствующие» блоки отличаются более темным цветом и динамичной формой: клин со стороны Москвы-реки и усеченная пирамида в центре здания.
Обратный уклон этих объемов энергично нависает над основными входами – их углубленные лоджии врезаны в скосы стеклянных фасадов.
Стеклянная призма прорезана не только углублениями входов, но и тремя (!) балконами-лоджиями. Тут поневоле хочется поговорить о том, насколько часто эти балконы будут открывать для посетителей. Да в нашем-то климате. Однако совершенно точно известно, что за последние годы в Москве террасы разного рода стали очень популярны. Так что может быть и эти откроют. Все же хорошо, что они есть. Прорези придают крупному цельному объему некое подобие «выражения лица», вглядывающегося в свое окружение, некое антропоморфное измерение, отнюдь не снимающее, впрочем, выразительности гигантизма.
Крупный масштаб, заданный, как было сказано выше, самим размером комплекса, поддержан и в основной, «спортивной» части фасадов. Они, определенно, отталкиваются от зала «Дружба»: широкие грани серебристого металла, чередуясь со спокойными полосами стекла, выступают далеко вперед от его плоскости, формируя дополнительную объемно-скульптурную оболочку, которая охватывает в равной степени и боковые фасады, и пятый, верхний – поверхность кровли. Только у «Дружбы» граненые объемы пустотелого металла образуют паукообразные «ноги», сходящиеся в верхней части; а в данном случае здание – отнюдь не центрическое, протяженное, поэтому и металл расступается в размеренно-живописном ритме. На продольных фасадах металлические пилоны объединены общей на всем протяжении линией выступающего вперед «ребра перелома» – к центру она поднимается, а к краям – опускается, как будто мы смотрим на «шатуны» – элементы гигантского механизма, наполовину скрытого под землей... Застывшие после того, как они «вытолкнули» на поверхность главный, входной, блок.
Но фасады – только опора, а разворачивается намеченная динамика на кровле: здесь металлические полосы шедовых фонарей приподняты асимметрично-чередующимися «домиками» с прорезной поверхностью. Форма – на самом деле та же, что и на фасадах, но протяженность больше и нет единства линии «конька» – напротив, здесь мы наблюдаем скорее «волнующееся море».
Как результат – чередование металла и стекла, как и крупные ребристые выступы, обволакивают здание с трех доступных для обозрения сторон – в данном случае «пятый фасад» особенно важен, поскольку виден при проезде по эстакаде проспекта Вернадского. И если грани «Дружбы» собираются в пучок, то тут наоборот, плоскости равномерно «колышатся». Восприятие в проезде, из окна автомобиля, усиливает эффект потенциальной подвижности.
Художественным осмыслением фасадов, как уже говорилось, занималось ТПО «Резерв», хорошо знакомое с площадкой: в 2015 году его проект нового здания Олимпийского комитета России, расположенного чуть севернее Дворца тенниса, победил в закрытом конкурсе, хотя пока что не был реализован.
Поверх металлических панелей нанесен рисунок пересекающихся полос – по словам авторов, они обозначают траектории теннисных мячиков. Они же довольно эффектно, правильно находя точки, переламываются на ребрах панелей, смешивают графическую и трехмерную линейность. Линии также, как и ребра, подчеркивают цельность «нашинкованной на вертикали» металлической массы. Так в одном объеме сосуществуют две популярные архитектурные темы недавних лет: пилоны «периптера» и образованный сечениями крупных поверхностей «кокон».
Надо признать, что «кокон» – прием, широко распространенный в спортивных сооружениях XXI века, в данном случае скорее побеждает. Можно даже представить себе здание как гигантскую гусеницу, которая, тяжело переваливаясь кольцами, превращается в «куколку» и замирает. Тогда крупные асимметричные скосы на южном торце у реки – не только портал входа, но еще и ее «рот»; или наоборот, боевой «рог».
Впрочем, не будем акцентировать «похожести» – если они тут и есть, то в очень обобщенном виде, остальное дорисовывает фантазия наблюдателя. Хотя интересно, конечно, как она работает...
Заметим напоследок две вещи. Во-первых, серебристый металл с росчерками и стекло с принтами кругов, с данном случае тоже напоминающие о теннисных мячах – это очень, очень распространенные приемы последних десятилетий; что увы, дает какой-то априорный минус. Они считываются сразу при беглом взгляде и психологически отбрасывают нас куда-то в начало 2010-х. Хотя! Не лишне заметить, что проект был начат в 2016 году, то есть уже достаточно давно. Во-вторых, в проектной графике стекло призматических объемов было прозрачнее, и «бусы» светлых кругов на нем казались более жемчужными. Вероятно, эти объемы должны были бы быть сродни «шуршащим шторам» восьмидесятых – получились они, из-за темного оттенка, более внушительными и брутальными. Не заигрывают с посетителем, скорее наблюдают за ним впадинами своих глаз-террас.
Тем не менее в остальном реализация, в том числе фасадов, оказалась на высоте: линии, переломы, стыки, грани – все точно, и по бокам, и на кровле. Здание аккуратное и, благодаря огранке большими плоскостями, скульптурное. Но лаконичное. Что вполне уместно с его гигантским объемом (больше только Арена Лужники) и расположением – вдоль одной из напряженных московских трасс.





