В феврале в соцсетях прошел первый этап голосования 16 Рейтинга архитектуры Нижнего Новгорода – есть список объектов, набравших наивысшие оценки. Этот список уже начали обсуждать члены жюри. Итоги 16 Рейтинга будут подведены в середине марта – тогда и будет известно, какое здание съедят в виде торта. Напомним, в истории Рейтингов были сразу несколько победителей и однажды – целая улица тортов.
Итоги первого этапа 16 Рейтинга архитектуры Нижнего Новгорода: из 33 новостроек в короткий список вошли 16 объектов.
Описания предоставлены авторами проектов.
Куратор, инициатор и организатор премии – Марина Игнатушко.
1.
ЖК «Аристократ»
коллектив
Объемно-пространственное решение многоквартирного дома обусловлено традиционным характером квартальной застройки исторической части города Нижнего Новгорода. Умеренная этажность корреспондируется с этажностью расположенного рядом существующего жилого дома постройки 50-х годов XX века. Архитектурно-художественные решения также соответствуют контексту квартала, что выражается в вертикально вытянутых пропорциях оконных проемов и продольной парцелляции фасадов.
2.
«Бугров»
коллектив
Здание представляет собой структурированный монообъем с динамичными «зазубринами». Структурно разделен на два блока – «рыжий» и «белый» с подсечкой. Вертикальные белые пилоны, уходящие вверх и собранные над основным парапетом здания, создают законченный и выразительный образ. Корзины для кондиционеров добавляют структурности и мелкой пластики.
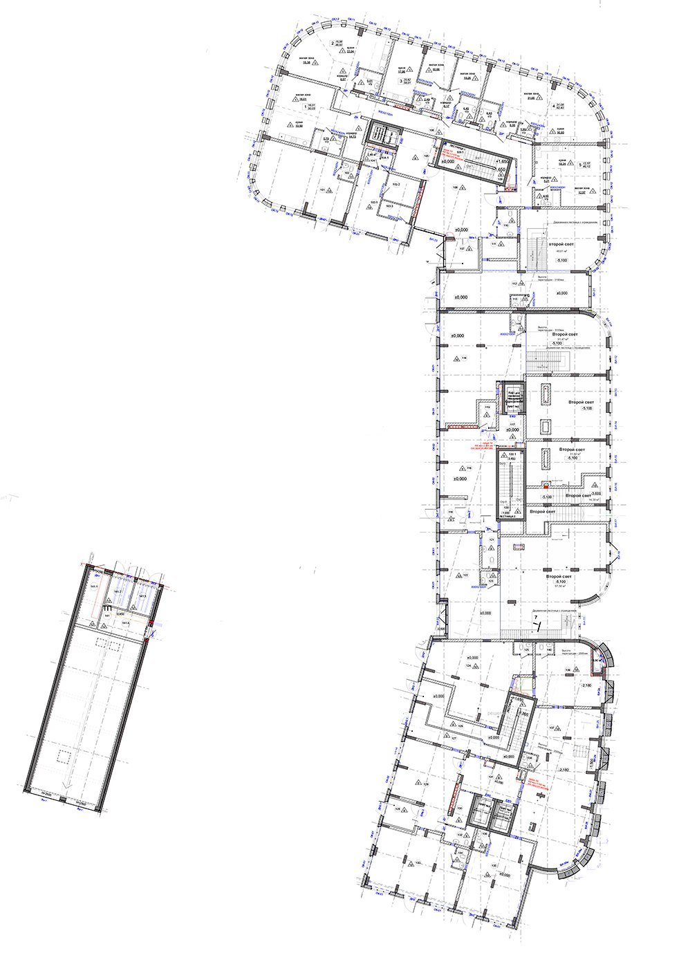
3.
«Синий»
коллектив
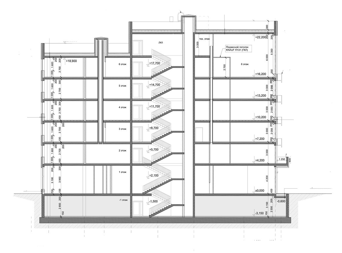
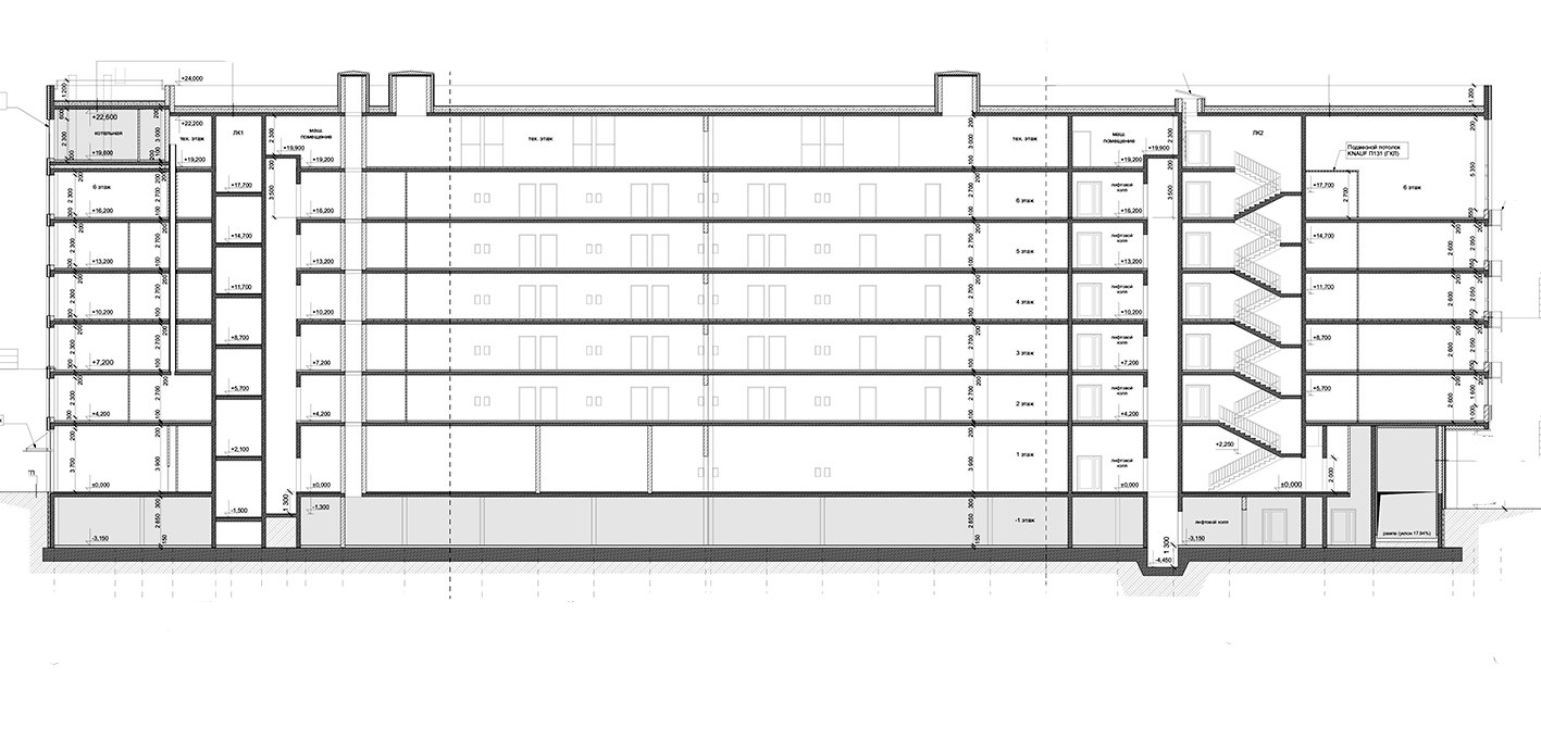
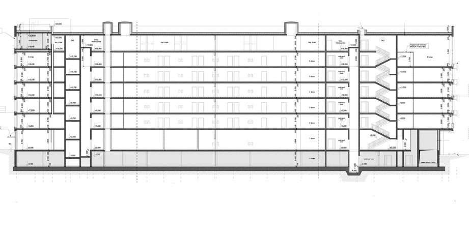
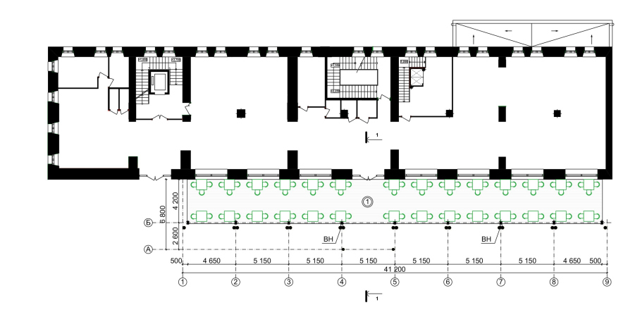
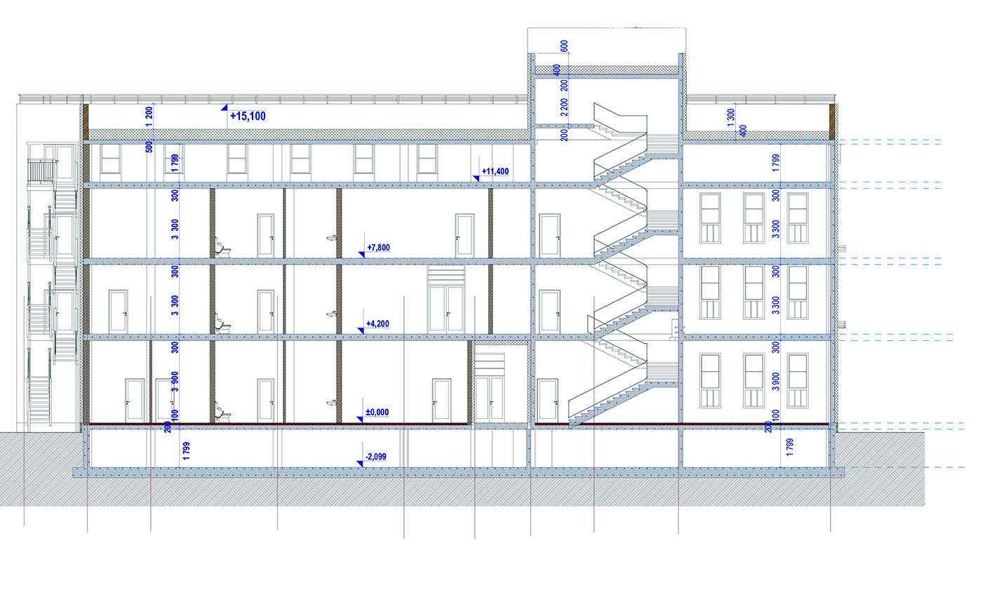
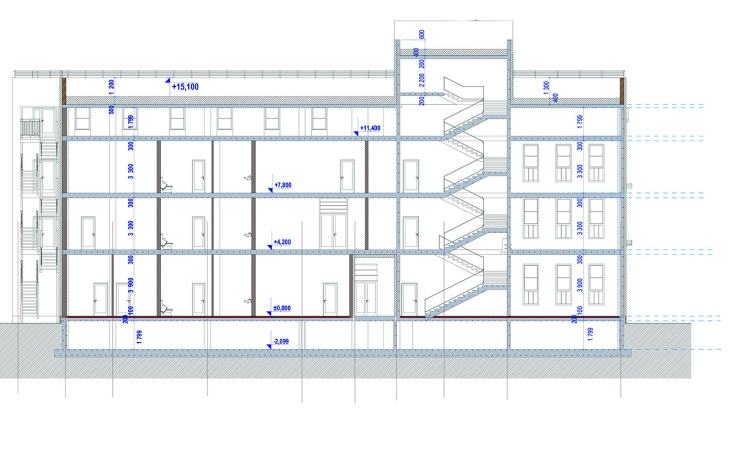
Размеры здания в плане 81,0х34,2 м. На первом этаже располагаются коммерческие помещения и помещения гостиницы. На 2–6 этажах располагаются апартаменты гостиницы. Связь этажей – за счет лестниц и лифтов. На -1 этаже – автостоянка и технические помещения. Автостоянка размещена в одном пожарном отсеке. Каждый этаж гостиницы представляет собой отдельный пожарный отсек. На техническом этаже размещены машинные помещения лифтов. На эксплуатируемой кровле – помещение котельной, вент. оборудование.
Конструктивная схема – монолитный ж/б каркас, наружные стены из газосиликатных блоков, утеплителя, вент. фасада и тонкостенной штукатурки. Кровля плоская утепленная.
4.
Три толстяка
коллектив
Основная конструктивная схема здания – монолитная железобетонная каркасная система с вертикальными железобетонными стенами, колоннами и пилонами, связанными горизонтальными дисками перекрытий с ядрами жёсткости лестничных, лифтовых узлов.
5.
«На фасон Скобы»
коллектив
конструктор Г.М. Грушевский
В советский период было утрачено левое крыло здания, а в 90-е годы правое. На момент начала проектирования в 2019 году здание сильно пострадало от пожара. Проектом реконструкции была предусмотрена надстройка здания третьим этажом и мансардой. Фасады очищены от штукатурки, кладка восстановлена, в декоре нового третьего этажа появились полукруглые колонны из фасонного кирпича, кровлю покрыли фальцованной медью. После реконструкции и надстройки здесь разместился Центр повышения квалификации «Корпоративный университет Правительства Нижегородской области», офисы, ресторан. Для ресторана «Гусь в яблоках» выполнена стеклянная веранда, по форме напоминающая трамвай – трамвай №1, что ходил по улице с 1896 года.
6.
«Балахна»
коллектив
Тем более культурно Балахна богата: здесь и кружевоплетение, и кузнечное дело, и стекольное, керамика, деревянные игрушки, и все это живет до сих пор и формирует бренд города. Новый центр художественных промыслов объединяет в себе мастерские, сувенирные магазины, пространства для мастер-классов, кафе и выставочную галерею.
7.
«Майский»
коллектив
Проект благоустройства этого парка в 2020 году победил во Всероссийском конкурсе проектов по созданию комфортной городской среды в малых городах и исторических поселениях. Финансирование осуществлялось в рамках проекта инициативного бюджетирования «Вам решать» и нацпроекта «Жилье и городская среда». Общая сумма выделенных средств составила около 100 млн рублей.
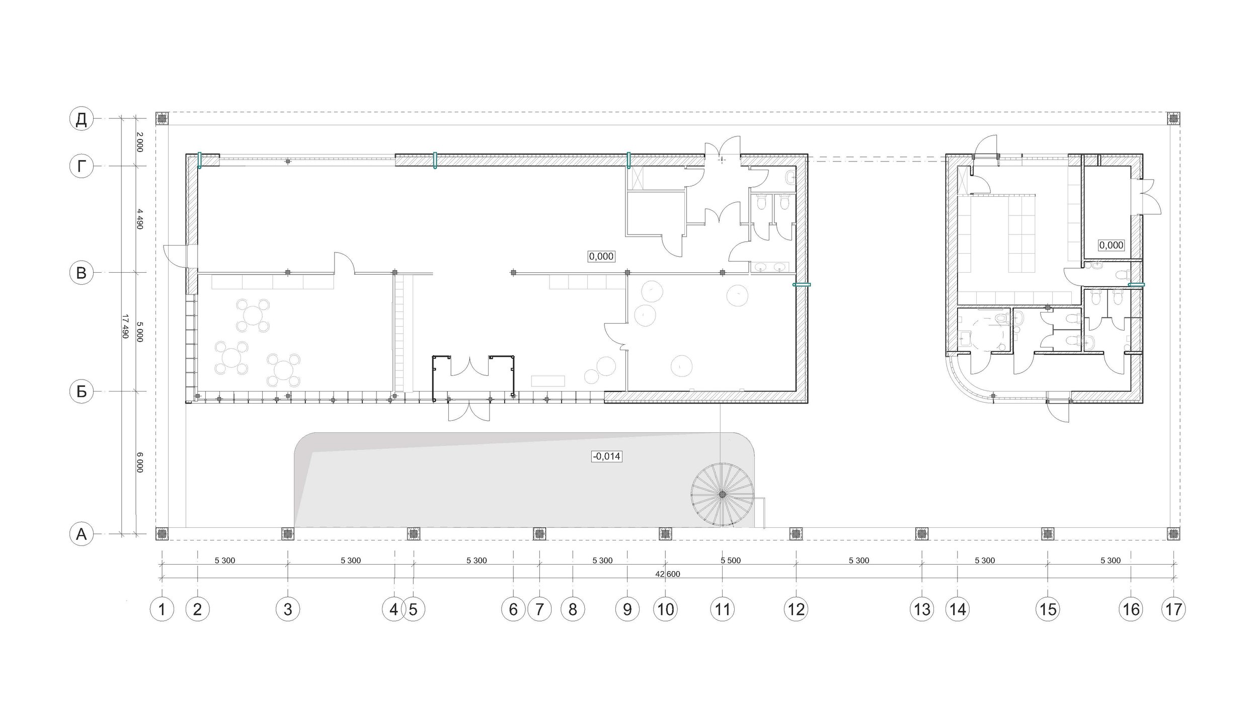
Павильон – один из ключевых объектов комплексного благоустройства парка «Майский», доминанта площади и акцентное завершение входной пешеходной аллеи.
Объект стилизован под архитектуру авангарда 20-x – 30-х годов XX века. Это отсылка к творчеству Н. Ламановой, которая родилась в Первомайске.
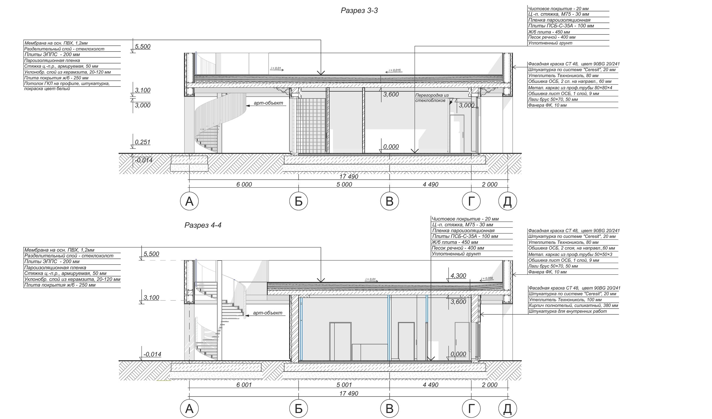
Два прямоугольных объема объединены единой кровлей, с включением между ними контрастного плавного художественного объекта – винтовой лестницы.
Работы на территории продолжались два года. Павильон детского развивающего центра завершил комплекс благоустройства парка. Сейчас в павильоне – сразу два центра – «Майский жук» – для малышей от года до семи лет и центр «Мишель», оборудованный интерактивным полом и стенами.
8.
«Все мы немножко лошади»
коллектив
В результате поэтапного развития в состав комплекса кроме ранее возведенных, сейчас входят открытые площадки для тренировки и проведения соревнований, левады и трасса для троеборья.
9.
«Уголек»
коллектив
«Уголек» встал на северо-западной стороне от озера, в начале улицы Шлиссельбургской. Улица начинается от Комсомольского шоссе – одной из крупных городских магистралей, берущей начало у транспортной развязки на Комсомольской площади у моста через Оку. Новое здание – на виду со всех, расположенных рядом транспортных путей.
При большом потенциале территории, улица Шлиссельбургская не имеет никакой смысловой и градостроительной нагрузки. Архитектор Ирина Капустина рассказывает: «Когда мы с заказчицей обсуждали этот участок, поняли, что нам хочется НАЧАТЬ. Мы подумали, что пока не появится первое более-менее приличное здание и благоустроенная территория вокруг, ничего происходить не будет и потенциал улицы так и останется потенциалом…
Если посмотреть на окружающую застройку – вокруг простые геометричные угловатые формы. Эту «угловатость» мы и решили поддержать в объеме здания.
Черно-белое решение фасадов тоже родилось, исходя из существующей ситуации. Мы подумали, что красному, синему, зеленому зданию тут появляться пока рано, потому в отделке фасадов использован немецкий клинкер и декоративная тонкослойная штукатурка».
10.
«Икс-Гребешок»
коллектив
Этот тихий зеленый район, удаленный от шумных магистралей и туристических маршрутов, имеет великолепные видовые раскрытия на слияние двух Великих рек.
Место богато своей историей. В непосредственной близости от жилого комплекса находится особняк купца М.Е. Башкирова, и такой значимый исторический объект как Благовещенский монастырь. Кроме прекрасных видов, необходимо отметить удачное расположение ЖК «Гребешковский» – между двух мостов, большое преимущество активной и насыщенной жизни – возможность быстро добраться в любую часть города.
Архитектура здания решена в традициях классицизма. Здание имеет строгий аристократичный облик и выполнено в классической цветовой гамме. Первый этаж, занимаемый помещениями общественного назначения, выделен темным цветом и горизонтальным рустом. Верхний пятый этаж трактован как аттик, его фасадная плоскость украшена мелким горизонтальным рустом. Венчает здание широкий подкровельный карниз, украшенный кронштейнами. Над карнизом расположены балюстрады с фигурными тумбами. Плоскости фасадов облицованы клинкерной плиткой с горизонтальными штукатурными поясками. Фасады украшают декоративные детали из фибростеклобетона. Цоколь облицован керамогранитом.
11.
ТОТ
коллектив
руководитель – Ольга Добротина;
ГИП – Елена Григорьева;
ведущий архитектор – Андрей Никитин;
архитекторы – Евгения Безаева, Даниил Нуждин, Роман Оганин
А кто у нас Бог мудрости и знаний? Вики подсказывает: ТОТ – древнеегипетский покровитель библиотек, ученых, и даже чиновников.
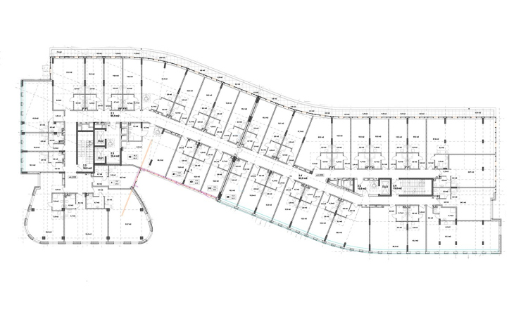
В основе объёмно-планировочного решения здания – протяжённый линейный корпус, формирующий непрерывный уличный фронт. Он расчленён на несколько самостоятельных объёмов, различающихся по пластике и глубине, что визуально уменьшает масштаб здания и приближает его к ритму исторической застройки. Три кирпичных блока воспринимаются как отдельные «дома», нанизанные на основную “фоновую” часть здания. Такое членение создаёт иллюзию постепенного наращивания, будто здание сложилось из нескольких корпусов.
Планировочно здание организовано вокруг центрального коммуникационного ядра с вертикальными связями. От него по обе стороны развиваются линейные коридоры, обеспечивающие доступ к жилым ячейкам. Конструктивная сетка регулярна, что обеспечивает рациональную нарезку помещений. Внутренние планировки подчинены этой сетке, благодаря чему фасадный ритм точно отражает структуру помещений.
12.
«Тосканка»
коллектив
Ведущий архитектор – Ольга Грачева
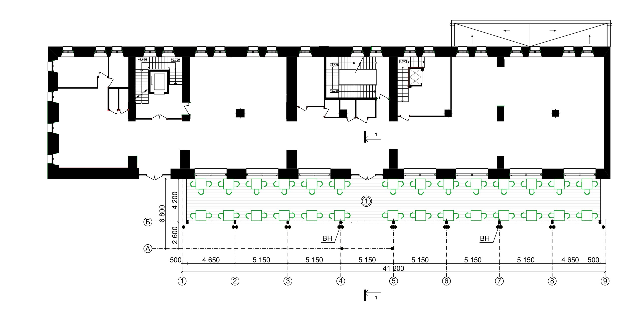
Это деревянный сборно-разборный павильон на винтовых сваях. Купольный конференц-зал – идея заказчика, так же его выбор пал на технологию с SIP-панелями для возведения основного объема павильона. Задачей проекта было «поженить» две разные технологии производителей и не забыть при этом про архитектуру.
13.
ЖК КМ Ривер Парк
коллектив
Главный архитектор Нижегородской области: Сергей Попов
Архитектор: Маргарита Шишкина,
Ландшафтный архитектор: Екатерина Слобожанина
Дизайнер: Полина Юрманская
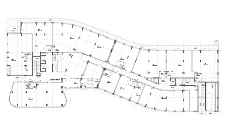
Проект многоквартирного жилого здания выполнен в соответствии с требованиями строительных, пожарных, санитарно-эпидемиологических норм и требований, обеспечивающих безопасную для жизни и здоровья людей эксплуатацию объекта.
Все проектные решения направлены на эффективное использование земельного участка, максимально возможный выход площадей, создание внешнего облика зданий, органично вписывающихся в окружающую среду.
Комплекс зданий решает важную визуальную градостроительную задачу, формируя гармоничный ракурс с Нагорной части города на панораму Заречной.
При проектировании объекта обеспечено единое архитектурное и композиционное решение. Выразительность здания достигается за счёт последовательного чередования внешних объёмов, имеющих разную массивность, вертикальных и горизонтальных членений фасадов, цветовых контрастов, сдвижки оконных проёмов, панорамного остекления.
Объект капитального строительства представляет собой комплекс зданий, состоящий из трёх блоков:
- Блок 1 имеет этажность 14 этажей и представляет собой здание прямоугольной формы в плане, состоит из двух секций. С первого по четырнадцатый этажи располагаются жилые квартиры.
- Блок 2 имеет этажность 21 этаж, представляет собой объём параллелепипеда, состоит из одной секции. По функциональной организации здание предусмотрено для размещения квартир со 2 по 21 этаж, на первом этаже предусмотрены помещения общественного назначения.
- Блок 3 в пятне застройки имеет переменную этажность – 1–14 этажей, перекрытую в зоне 12–14 этажа общим объёмом. Со второго по четырнадцатый этажи располагаются жилые квартиры. Визуальная выразительность достигается выделением объёмной композиции путём разнообразных выступов и сдвижек объёмов, которые подчёркиваются гармонично работающими друг с другом фасадными решениями.
В подземном этаже проектом предусмотрено размещение технических помещений. На первом этаже предусматривается размещение помещений общественного назначения и жилых квартир. Со второго этажа – жилые квартиры. Проектом предусмотрена двухуровневая подземная автостоянка. Вместимость подземной автостоянки составляет 410 м/м.
Здания жилого комплекса выполнены из трёхслойных железобетонных панелей с отделкой керамическим кирпичом, внедрённым в панель, изготовленных на заводе ЖБК КМ Precast.
Именно панели, с нашей точки зрения, интересны на этом объекте – это продолжение эксперимента с объектами группы компаний «Каркас Монолит» в поисках интересного образа – индивидуального, стильного, долговечного.
14.
Схрон
коллектив
Ландшафтный архитектор, куратор проектов благоустройства бюро ГОРА: Мария Юдина
Архитектор: Екатерина Крылова
Архитектор-аналитик: Будько Елизавета
Территория благоустройства представляет собой поле, вытянутое вдоль реки Княгинка и «зажатое» между двумя массивами частного сектора. Раньше это место было центром притяжения горожан, местом проведения футбольных матчей, ярмарок, народных гуляний. Сейчас же луг используется только для проведения ежегодного фестиваля «Соловьиные напевы», а также для выгула домашнего скота. В зимний период территория практически не функционирует.
Основная идея проекта – создание арт-парка, выполняющего функцию нового студенческого и общественного пространства через сохранение и развитие природной составляющей местности. Территория делится на зоны, за каждую из которых в дальнейшем будет отвечать определённый институт Княгининского университета. Такое вовлечение студенческого сообщества поможет создать пространство, которое будет управляться студентами.
Поскольку территория представляет собой луг, на котором практически отсутствуют деревья, стояла задача создать объекты, которые бы не только подчёркивали идентичность местности, но и являлись своеобразными вертикальными ориентирами, с помощью которых посетители парка могли бы легко определить расположение той или иной зоны.
Институту экономики, например, предусмотрен павильон «Дженга», который благодаря своей модульности может трансформироваться в зависимости от проводимого мероприятия. Немного севернее располагается деревянная набережная с детскими водными площадками, зонами тихого отдыха и местом для анализа химического состава воды реки Княгинка – за эту зону отвечает инженерный институт.
Ключевым элементом парка становится павильон института информационных технологий и систем связи – «Вышка». Объект представляет собой Wi-Fi станцию. С помощью установки солнечных панелей можно будет генерировать энергию для беспроводной интернет-сети, а также создавать места для подзарядки девайсов. Павильон носит исследовательский характер и предназначен для наблюдения за небесными телами, проведения различных семинаров, лекций и мастер-классов.
Есть на лугу и менее инновационные объекты. Павильон «Облако» за счёт формы и цвета выделяется на фоне остальных сооружений и становится местом вдохновения и размышлений. Завершающей точкой парка является арт-объект «Журавль». Он представляет собой переосмысление классического вида родника. Благодаря открытости и отказу от ограждающих конструкций родник «Визин ключ» становится частью окружающей природы.
15.
ТП-РП №2820
коллектив
В 2021 году Институт развития городской среды Нижегородской области создал концепцию активации территории Стрелки, чтобы она стала открытой для всех горожан и туристов. Бывшая портовая территория стала настоящим городским открытием: теперь Стрелка – это просторное общественное пространство, доступное для всех. Здесь проводят выставки и концерты, гуляют, устраивают пикники, катаются на качелях и фотографируются.
В рамках этой большой работы создана и концепция ревитализации трансформаторной подстанции, реализованная совместно с Нижегородской епархией при поддержке Правительства Нижегородской области. Концепция сохранения и приспособления подстанции основана на сочетании индустриальной и храмовой эстетики как напоминание о промышленном наследии утраченного порта на Стрелке, а также как посвящение иконописной и реставрационной культуре Нижегородской области.
Реконструируемое здание является уникальным объектом – полностью выполненная из армированного монолитного бетона трансформаторная подстанция. Строение имеет необычную структуру, с главным нефом и боковыми блоками, разного размера. Мы сохранили эту форму и использовали её для формирования уникального общественного пространства. Например, сделали 9 одиночных «келий» в бывших технических нишах подстанции.
Вся мебель – деревянная, металлическая – и металлические светильники сделана по авторскому индивидуальному дизайну архитекторов ИРГСНО. Деревянная мебель выполнена из натурального дерева и изготовлена столярной мастерской Нижегородской епархии. А большая часть поверхностей стен и потолков покрыта фактурной волнистой белой штукатуркой. Нюансы исполнения мы обсуждали с мастером по отделке.
Один из главных элементов интерьера – полиптих об этапах написания икон от подготовки доски до завершающих стадий, каждый элемент которого выполнен вручную художниками иконописной мастерской Нижегородской епархии.
Эстетика аскетичности поддерживается минимализмом в деталях и лаконичностью в цветах. Индустриальность интерьера подчёркивается выбранными материалами: серый бетонный пол, а также барная стойка, некоторые светильники и отделка стен в туалете из листов горячекатанной стали. Мы сохранили текстуру и цветовые оттенки реальных листов, исключив покраску: вместо этого покрыли стальные элементы матовым прозрачным лаком. В технических помещениях и туалетах используется керамическая белая плитка 100*100 мм.
При обновлении бережно сохранена форма здания, а также использованы найденные в интерьере элементы (плакаты, таблички). Выполнена открытая проводка электричества, соответствующая индустриальной эстетике, трассы которой формируют графику на потолке и стенах.
Фасад здания выполнен в белой штукатурке с дополнительным утеплением. Кровля также утеплена и покрыта фальцевой сталью серого цвета.
Территория вокруг здания также благоустроена по концепции Института. В качестве покрытий использован серый колото-пиленный гранит Габбро. Подпорные стенки облицованы гранитными серыми плитами. Для территории подобраны фонари и выполнены индивидуальные мафы: кашпо, урны, велопарковки, скамейка. Всё это в едином сером цвете. Благоустройство территории минималистичное и нейтральное, чтобы само здание оставалось главной доминантой.
16.
«Звенящая синяя даль»
коллектив
– Большои манеж с размерами рабочего поля в плане 25х70 м предназначен для тренировок и выступлении всадников. Для зрителеи предусмотрены трибуны на 498 мест и VIP ложа на 12 мест.
Трибуны ориентированы на север, чтобы зрителям открывался вид на Четвертыи Каменскии пруд и деревянную набережную.
– Малыи манеж с размерами рабочего поля в плане 20х40 м используется в качестве предманежника для разогрева конного состава во время зрелищных мероприятии.
Во время учебно-тренировочного процесса оба манежа задействованы для занятии.
