Учебный корпус имени Марги Кломпе в Университете Тилбурга
Фотография © Sebastian van Damme / предоставлена Powerhouse Company
Учебный корпус имени Марги Кломпе в Университете Тилбурга
Фотография © Sebastian van Damme / предоставлена Powerhouse Company
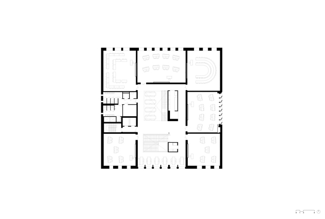
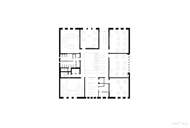
Открывшийся в январе 2024-го новый корпус назван в честь политической деятельницы Маргареты (Марги) Кломпе, одной из создательниц в Нидерландах «социального государства». Он также имеет в плане правильный квадрат, размеры которого 33х33 метра. Каркас здания, перекрытия и стены, лестницы, потолки и оконные рамы, а также часть мебели выполнены из дерева, а для внешней отделки использован португальский известняк, рисунок которого роднит новое здание с предшественником из 1960-х. На первых этажах расположены вестибюль, большой зал, вмещающий до 450 человек, и лекционная аудитория поменьше, а выше – еще 12 аудиторий разного плана и помещения для самостоятельной подготовки: все они сгруппированы вокруг атриума. При относительно небольшой площади (всего 5000 м2) одновременно здесь могут заниматься до тысячи студентов.
Учебный корпус имени Марги Кломпе в Университете Тилбурга
Фотография © Sebastian van Damme / предоставлена Powerhouse Company
Но прежде всего корпус Марги Кломпе интересен своим конструктивным устройством и инженерными решениями. Уже сама кубическая форма постройки и центральный атриум позволили значительно уменьшить теплопотери. В качестве эффективного утеплителя использована переработанная джинсовая ткань: натуральный хлопковый материал одновременно улучшил и акустические характеристики аудиторий. Чтобы обеспечить свободные большепролетные пространства, конструкции из клееной древесины усилили балками из инженерного дерева, зазоры между которыми использовали для установки системы вентиляции и адаптивного, экономичного освещения. Балки вместе с решетчатыми потолками также способствуют лучшим акустическим качествам.
Учебный корпус имени Марги Кломпе в Университете Тилбурга
Фотография © Sebastian van Damme / предоставлена Powerhouse Company
Учебный корпус имени Марги Кломпе в Университете Тилбурга
Фотография © Sebastian van Damme / предоставлена Powerhouse Company
Учебный корпус имени Марги Кломпе в Университете Тилбурга
Фотография © Sebastian van Damme / предоставлена Powerhouse Company
Пространство центрального атриума задействуется как часть системы естественной вентиляции и вместе с точно расположенными проемами внешней оболочки обеспечивает стабильный климат без установки дополнительных воздуховодов. Кроме этого, предусмотрено максимально возможное количество солнечных батарей и тепловой насос с системой рекуперации. Даже естественный уклон участка ландшафтные архитекторы Studio REDD использовали для создания подобия сухого ручья, засаженного цветами, который собирает дождевую воду и таким образом существенно снижает нагрузку на систему канализации.
Учебный корпус имени Марги Кломпе в Университете Тилбурга
Фотография © Sebastian van Damme / предоставлена Powerhouse Company
Учебный корпус имени Марги Кломпе в Университете Тилбурга
Фотография © Sebastian van Damme / предоставлена Powerhouse Company
Учебный корпус имени Марги Кломпе в Университете Тилбурга
Фотография © Sebastian van Damme / предоставлена Powerhouse Company
Учебный корпус имени Марги Кломпе в Университете Тилбурга
Фотография © Sebastian van Damme / предоставлена Powerhouse Company
Все эти инженерные решения, а также активное использование долговечных и одновременно пригодных для переработки материалов позволили новому корпусу достичь высокой энергоэффективности и статуса энергетически почти нейтрального здания, подтвержденного рейтингом BREEAM Outstanding и другими экологическими сертификатами. Более того, архитекторы надеются, что их постройка задаст новые стандарты в архитектуре образовательных учреждений.
Дополнительные фотографии процесса строительства можно найти в блоге архитекторов.
Учебный корпус имени Марги Кломпе в Университете Тилбурга
Фотография © Sebastian van Damme / предоставлена Powerhouse Company
Учебный корпус имени Марги Кломпе в Университете Тилбурга
© Powerhouse Company
Учебный корпус имени Марги Кломпе в Университете Тилбурга
© Powerhouse Company
