Крытый городской рынок в Сьонзье
Фотография © Atelier Archiplein
Городская площадь перед рынком в Сьонзье
Фотография © 11h45 / предоставлена Atelier Archiplein
Городская площадь перед рынком в Сьонзье
Фотография © 11h45 / предоставлена Atelier Archiplein
Мунициальный культурный центр Alpex в Сьонзье
Фотография © Atelier Archiplein
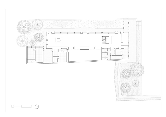
Первым шагом в осуществлении плана стала реконструкция исторического завода Alpex, где раньше производили металлический прут, под муниципальный культурный центр. Небольшая постройка общей площадью 1100 м2 вытянута вдоль речки Форон и одноименной улицы. Ей вернули яркое, контрастное решение фасадов, в котором сочетаются красный, желтый и зеленый цвета, восстановив его по документам и сохранившимся фрагментам краски. Внутри на двух уровнях созданы светлые универсальные пространства с низкими перекрытиями и нейтральным оформлением. Стоимость реконструкции, завершившейся в 2020, составила 3,5 млн евро.
Мунициальный культурный центр Alpex в Сьонзье
Фотография © Aurélien Poulat / предоставлена Atelier Archiplein
Мунициальный культурный центр Alpex в Сьонзье
Фотография © Aurélien Poulat / предоставлена Atelier Archiplein
Мунициальный культурный центр Alpex в Сьонзье
Фотография © Aurélien Poulat / предоставлена Atelier Archiplein
Мунициальный культурный центр Alpex в Сьонзье
Фотография © Aurélien Poulat / предоставлена Atelier Archiplein
Мунициальный культурный центр Alpex в Сьонзье
Фотография © Aurélien Poulat / предоставлена Atelier Archiplein
Главный вход в культурный центр при этом перенесли на торцевой фасад, пристроив внушительную колоннаду из молочно-белого известняка, добываемого совсем недалеко: на плато Отвиль. Такое решение позволило раскрыть здание в сторону вновь созданной городской площади с озеленением, детской площадкой, сухим фонтаном, скамейками и зоной для игры в петанк.
Мунициальный культурный центр Alpex в Сьонзье
Фотография © Aurélien Poulat / предоставлена Atelier Archiplein
Мунициальный культурный центр Alpex в Сьонзье
Фотография © Aurélien Poulat / предоставлена Atelier Archiplein
Мунициальный культурный центр Alpex в Сьонзье
Фотография © 11h45 / предоставлена Atelier Archiplein
Мунициальный культурный центр Alpex в Сьонзье
Фотография © 11h45 / предоставлена Atelier Archiplein
Оставшееся свободное место между площадью и зданием муниципалитета Сьонзье теперь занимает крытый рынок, который местные жители называют grenette. Под таким навесом традиционно хранили зерно, муку и другие товары, а иногда он служил для проведения ярмарок и даже свадеб. Архитекторы возвели легкую конструкцию из инженерного дерева, придав ей форму идеального равностороннего треугольника. Общая площадь рынка составляет 680 м2. Семь тонких колонн поддерживают высокую (7 м) часть навеса, обращенную в сторону улицы. Кровля постепенно понижается и опирается на небольшое техническое помещение из бетона в дальнем углу треугольника. Сам навес сложен из деревянных реек, уложенных в три слоя, и имеет общую толщину в 90 см. Сверху он накрыт прозрачным полимерным материалом, что позволило создать эффектную игру света и тени и одновременно защитить внутреннее пространство. Наконец, в самом центре навес поддерживает толстый столб, от которого расходится регулярный орнамент деревянных конструкций. В результате возникает впечатление безопасной, уютной кроны.
Крытый городской рынок в Сьонзье
Фотография © Atelier Archiplein
Крытый городской рынок в Сьонзье
Фотография © Atelier Archiplein
Крытый городской рынок в Сьонзье
Фотография © Atelier Archiplein
Крытый городской рынок в Сьонзье
Фотография © 11h45 / предоставлена Atelier Archiplein
Крытый городской рынок в Сьонзье
Фотография © 11h45 / предоставлена Atelier Archiplein
Обустройство площади и строительство рынка вошли во вторую фазу реконструкции центра Сьонзье; стоимость этих работ составила 4,5 млн евро. И, конечно, все основные объекты центральной части города архитекторы соединили единым благоустроенным (высажено около 40 новых деревьев) и безопасным променадом. Муниципалитет теперь планирует насыщенную программу из ярмарок, фестивалей, концертов, кинопоказов и надеется таким образом изменить имидж города, привлечь к нему внимание и повысить тем самым здесь качество жизни.
Крытый городской рынок в Сьонзье
Фотография © 11h45 / предоставлена Atelier Archiplein
Крытый городской рынок в Сьонзье
Фотография © 11h45 / предоставлена Atelier Archiplein
Крытый городской рынок в Сьонзье
Фотография © 11h45 / предоставлена Atelier Archiplein
Планировка центральной части Сьонзье
© Atelier Archiplein
