Проект загородного дома Buena Vista
© Архитектурное бюро Романа Леонидова
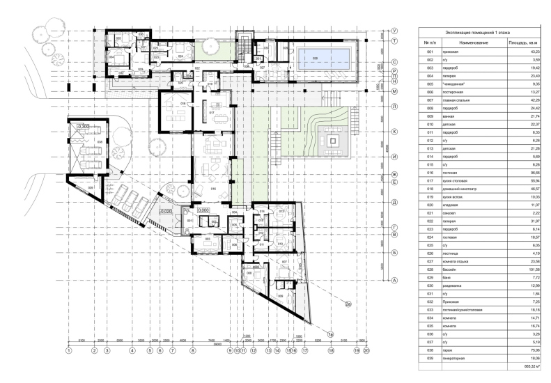
Соответственно вид, как из дома, так и на дом из ландшафта, образуется сногсшибательный. И большинство эстетических и функциональных параметров архитектуры диктуются этим обстоятельством. Как можно больше красивых пейзажей должно открываться из огромных окон виллы. Тем более, что с окружением владельцам повезло: в этом подмосковном поселке приличная архитектура и запрещены заборы, за исключением зеленой изгороди. Дом спланирован довольно большим, около 1000 м2, и принципиально одноэтажным, поскольку должен быть удобным для семьи с детьми и пожилыми родителями. Дом распластан по территории и зонирован так, чтобы всем поколениям семьи было комфортно, чтобы у каждого была автономная территория с отдельным входом, и чтобы они могли уединяться и объединяться по желанию.
План виллы в виде неправильной буквы Н позволяет сформировать как фасадный фронт вокруг внешнего въездного двора, так и протяженные прозрачные фасады, обращенные к парку. Вилла состоит из нескольких частей: технический блок и гараж; блок персонала и гостевая часть; спа-блок с бассейном и бельведером хозяина наверху; и наконец, парадная зона: гостиная-кухня-столовая и хозяйская спальня и детские. Гостевой блок, расположенный слева от въезда на участок, задуман как трансформер и может превратиться в квартиру для пожилых родителей. У этой квартиры окна не такие огромные, как парковые, зато есть своя стеклянная галерея с проходом в бассейн и свой укромный зеленый патио. Неподалеку расположены технический блок и комнаты для персонала с отдельными входами.
Справа от въезда помещен крытый гараж на несколько машин и дополнительно навес для автомобилей, потому что хозяева любят гостей. Здесь же, под навесом, находится главный вход в дом. В прихожей санузел имеет островное положение, создавая некоторую границу при переходе к общественному пространству и спально-гардеробной зоне. Вокруг «острова», подобно автомобильному кругу, образуется распределяющее круговое движение.
Образ горизонтальной белой виллы для модернистской архитектуры, можно сказать, хрестоматийный, но в произведении Романа Леонидова нет ретро-оттенка. Белый цвет достигнут благодаря материалу облицовки: предполагается, что это будет белый известняк или фиброцементные плиты. Но в отличие от совсем бесплотного «дома-чертежа», типичного, скажем, для калифорнийских белых вилл 1960-х, здесь материальность все же ощущается. И горизонтали, и пилоны в композиции виллы – достаточно мощные. Образ дома, как уже говорилось, – монументальный и даже, как говорит Роман Леонидов, агрессивный в хорошем смысле слова. Имеется в виду вот что. Боковые части парадной композиции, обращенной в сад, представляют собой «флигели» с сильными выносами. У стеклянного бассейна это – далеко выступающий в сад, обобщенный модернистский «портик».
Проект загородного дома Buena Vista
© Архитектурное бюро Романа Леонидова
Левый флигель со спальнями венчается остроугольным навесом (так дом реагирует на диагональное очертание участка, и именно этот угол создает впечатление активной пластики).
Проект загородного дома Buena Vista
© Архитектурное бюро Романа Леонидова
Центральная же часть – общественная зона с гостиной, столовой, кухней – решена более спокойно. Но центр композиции все же подчеркнут рамой, обозначающей повышенную относительно остального дома гостиную. Здесь стоит рояль, хозяин – меломан и ценитель хорошей акустики. И небольшой акцент в виде эркера из черного сланца нужен, чтобы оттенить белый цвет виллы.
Проект загородного дома Buena Vista
© Архитектурное бюро Романа Леонидова
Детские и хозяйская спальня стеклянными стенами выходят в парк. У всех комнат есть выход на лоджию, но лоджия не сплошная, между детьми и родителями есть граница. Ванная под тем самым остроугольным козырьком также имеет стеклянную стену и балкон для полного слияния с природой (как быстро меняется психология русского человека, еще не давно ванная с окном казалась революцией, а вот уже у нее и стеклянная стена, и лоджия с креслом). Интересно наличие большого количества просторных, до 25 м2, гардеробных: мужской, женской, детских, гостевых, для верхней и обычной одежды. Да и сама хозяйская спальня, площадью 42 м2, производит впечатление простора.
Проект загородного дома Buena Vista
© Архитектурное бюро Романа Леонидова
Самая главная изюминка или квинтэссенция виллы – это, конечно, бельведер над бассейном. Он решен как графичный, нематериальный чертеж: тонкие черные рамы, сплошное остекление, почти круговая панорама и, конечно, пейзаж, с которым можно остаться наедине. Это кабинет владельца, который он называет не очень подходящим в данном случае словом «берлога». Было бы замечательно, если бы этот стеклянный и стильный модернистский объем всё же построили. В связи с ажиотажем в области загородного строительства, вызванным пандемией, цены на стройматериалы взлетели на порядок, из-за чего многие стройки потребовали корректировки. Относительно бельведера и зоны спа решение пока не принято.
Проект загородного дома Buena Vista
© Архитектурное бюро Романа Леонидова
Перед домом на понижающейся части ландшафта спланированы несколько террас и лестниц, плавно спускающихся к открытому очагу и месту для барбекю. Любопытно, что Роман Леонидов подводит травяные террасы и лужайки вплотную к дому. У архитектора есть теория, что дом должен вырастать из земли, дому не нужна отмостка, отделяющая его от природы, наоборот, он должен естественным образом утопать в зелени, быть обнимаемым цветами и кустами. Эта теория будет осуществлена и в вилле Buena Vista. В конце концов, это и есть ее главная тема: прикосновение к природе, погружение в пейзаж, как визуальное, так и тактильно-обонятельное, максимально полное.


