Работать
Проммодули – это универсальный бизнес-центр, который полностью состоит из ячеек-слотов площадью по 50 м2 каждая, формирующих три пространства: производственные площади на первом этаже, лаборатории на втором и офисы на третьем. Модуль или группа модулей готовится к заезду арендаторов за 48 часов – за это время устанавливают перегородки и фасадные панели, подготавливают полы и подводят коммуникации из магистральных трасс, которые опоясывают все здание. Пустые модули – это просто балки и колонны, не закрытые фасадом, поэтому они не требуют обогрева, что позволяет экономить на эксплуатации здания. По внутреннему периметру располагаются места общего пользования, которые выходят во дворик-патио.
Арендатор набирает слоты в любой конфигурации и количестве: например, компания-стартап может начать хоть с одной ячейки, а по мере разрастания или при переходе от моделирования к производству, расширять свое представительство. Такая адаптивность отражается на облике бизнес-центра: когда меняются или расширяются арендаторы, меняется и рисунок фасада. Занятые модули закрывают фасадами из поликарбоната, а пустые дополняют архитектурной подсветкой или деревьями в кадках.
Проммодули – собственная инициатива бюро TRY. Проект можно реализовать в любой точке страны, как и придуманные этими же архитекторами Районные ряды.
Подробнее о проекте ->
Жить
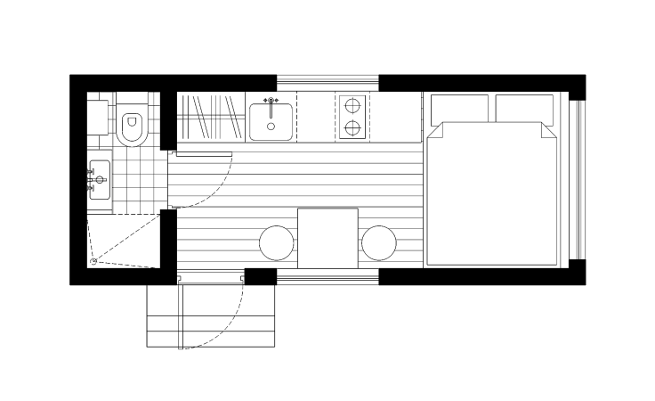
Домик The Cabin – по сути современная хижина. При скромной площади в 11,2 м2 он оснащен всем необходимым: внутри есть кухня, обеденная зона, шкаф, кровать с подъемным механизмом и пространством для хранения, туалет и душ. Видовое окно почти во всю стену позволяет сблизиться с ландшафтом и визуально расширяет внутреннее пространство.
Домик собирается на производстве Delo Design в Петербурге за месяц, транспортируется с помощью трала или, если локация труднодоступна, на вертолете. В случае, если на участке нет коммуникаций, можно установить солнечные батареи и резервуар для воды. Домик отделан досками планкен из хвойных пород дерева, а конструктивные элементы разработаны и произведены специально для проекта. Цена побега от городской суеты – 1 млн рублей, сюда входит каркас, наружная и внутренняя отделка, остекление, освещение, коммуникации, сантехника, а также мебель, текстиль и посуда, изготовленные по эскизам Delo Design. The Cabin можно использовать как дачный или гостевой домик, а также в качестве гостиничного номера.
Подробнее о проекте ->
Развлекаться
Гастромаркет, придуманный MODUL ab – в сущности, общественное пространство нового типа для спального района, в данном случае – для Чертаново, но его конструкция позволяет адаптировать проект для других локаций.
Прямоугольное в плане здание ориентировано наружу: места для посетителей располагаются у витражей, а кухни и технические помещения смещены в обслуживающее ядро, при этом потоки персонала и посетителей не пересекаются. Первый этаж более глухой, но в теплое время года он может раскрываться, стирая границу между интерьерным и городским пространством.
Яркий амфитеатр и стена для уличных художников превращают атриум в культурное пространство локального масштаба. На втором этаже корнеры кафе образуют микродворики с разными функциями: детская игровая комната, выставочный зал или фотогеничная инстаграм-зона. В самой тихой части здания располагается коворкинг с изолированными посадочными местами, а также ресторан с выходом на кровлю. Гастромаркет планируют построить в 2022 году.
Подробнее о проекте ->
