Корпус LAB42 Амстердамского университета
Фото © Jannes Linders
Такая разнообразная программа требовала от проекта особой гибкости и способности к трансформации в зависимости от нужд текущего момента. Архитекторы при этом хотели дать передовым областям знания не менее передовую «оболочку», поэтому LAB42 – весьма ресурсоэффективное и безопасное для окружающей среды здание, где многие материалы применены вторично и/или рассчитаны на последующее использование.
Корпус LAB42 Амстердамского университета
© Benthem Crouwel Architects
В основе – трехмерная модульная сетка в виде стального каркаса, позволяющая легко менять назначение помещений и частей постройки и даже перемещать их по зданию. LAB42 может быть приспособлена для новой функции, разобрана или расширена. Каркас пригоден на 100% для повторного использования, он напоминает стеллаж, который можно пересобрать или разобрать в любой момент. Возможно даже добавить новые этажи с перекрытиями из бетона, вторично использованной древесины или же деревянных балок. Фасад и внутренние перегородки тоже «адаптивны». 95% стали в каркасе и 70% алюминия на фасаде – вторсырье. Искусственный войлок в акустических панелях произведен из полиэтиленовых бутылок. Значительная часть гипсокартона, бетона, кабель-каналов и других материалов и деталей также использована здесь повторно, по схеме экономики замкнутого цикла.
Многие части постройки были изготовлены на заводе, что упростило и ускорило строительство, а также сделало этот процесс более чистым – в прямом смысле и экологически.
Корпус LAB42 Амстердамского университета
Фото © Jannes Linders
LAB42 производит столько же электроэнергии, сколько потребляет: 1800 м2 солнечных батарей установлено на кровле, включая остекленные перекрытия атриума, и на фасадах здания. Атриум обеспечивает интерьер солнечным светом, используются естественная вентиляция, дождевая вода (для санитарных целей), тепловая энергия поступает из теплового аккумулятора, общего для всего Научного парка. Проект получил эко-сертификат BREEAM Outstanding.
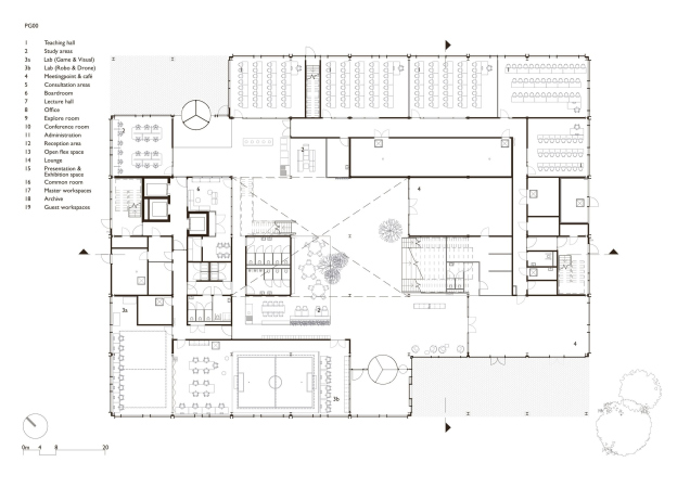
Архитекторы не забыли и о комфорте и удобстве пользователей здания и парка в целом. Здание максимально открыто вовне: часть пешеходных маршрутов кампуса проходят его насквозь, а лаборатории по визуализации, робототехнике и разработке игр на первом этаже полностью видны прохожим благодаря прозрачным стенам.
Корпус LAB42 Амстердамского университета
Фото © Jannes Linders
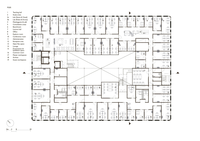
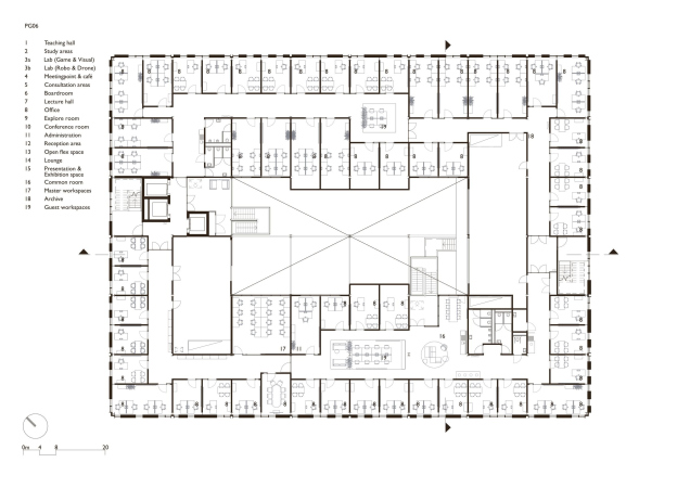
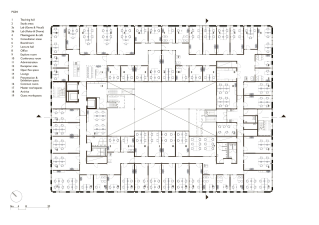
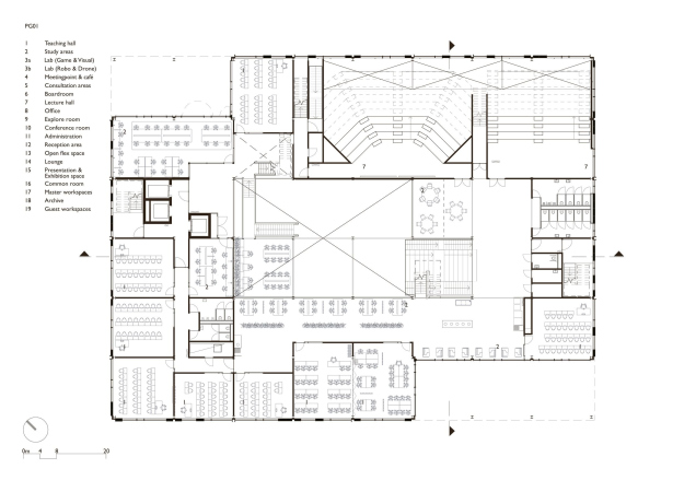
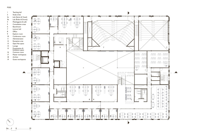
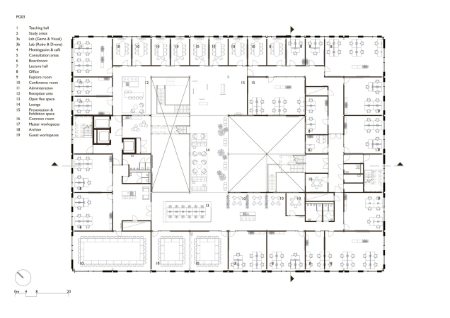
Семинарские и лекционные аудитории находятся на втором и третьем этажах, остальные уровни заняты переговорными, лабораториями, пространствами для неформальных дискуссий и тихой сосредоточенной работы. Общая площадь здания – более 14 тыс. м2.
Корпус LAB42 Амстердамского университета
Фото © Jannes Linders
Корпус LAB42 Амстердамского университета
Фото © Jannes Linders
Корпус LAB42 Амстердамского университета
Фото © Jannes Linders

