Школа и центр дневного пребывания района Het Zand в Утрехте
Фотография © Luuk Kramer / предоставлена VenhoevenCS
Построенный в 2006 центр детского образования района Занд находится в археологическим парке, вокруг – сад из плодовых деревьев и аккуратно сохраненные следы прошлого, например, кирпичная труба, оставшаяся от обогреваемых углем теплиц. Здание объединило две школы (обычную и системы Монтессори), детский сад, общественную зону с театральным залом и спортзал. Несмотря на прогрессивную для своего времени концепцию и футуристический образ, уже к 2019 оно технически устарело и «стало мало». Проект реконструкции разработали авторы изначального проекта – бюро из Амстердама VenhoevenCS.
Школа и центр дневного пребывания района Het Zand в Утрехте
Фотография © Luuk Kramer / предоставлена VenhoevenCS
Школа и центр дневного пребывания района Het Zand в Утрехте
Фотография © Luuk Kramer / предоставлена VenhoevenCS
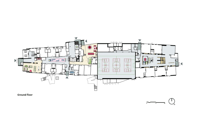
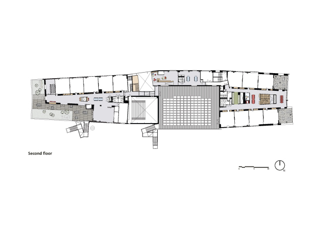
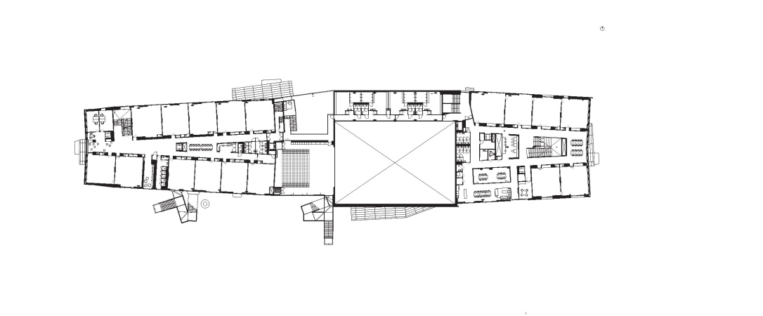
Трехэтажный объем надстроили с боков и придали ему вытянутую форму, сохранив при этом изначальное сходство с космическим кораблем. В торцах находятся помещения школ, получившие теперь уютные зеленые террасы, а в центральной части сосредоточена спортивная и общественная функции. Каждое из подразделений имеет свой отдельный вход, оформление площадки перед которым было придумано современными художниками вместе с учениками школы в ходе воркшопов. Перед всеми входами при помощи мощения контрастного цвета нанесены выдуманные слова приветствия на случай появления инопланетян.
Школа и центр дневного пребывания района Het Zand в Утрехте
Фотография © Luuk Kramer / предоставлена VenhoevenCS
Школа и центр дневного пребывания района Het Zand в Утрехте
Фотография © Luuk Kramer / предоставлена VenhoevenCS
Но одновременно здание ориентировано и на взаимодействие с окружающей природой: именно на крыше устроена площадка для игр, чтобы не отнимать место у парка, а также размещен курятник. За курами присматривают дети, а яйца покупают жители квартала. На фасадах оборудовали специальные «домики» для летучих мышей; рядом разбит небольшой огородик, за которым опять же ухаживают сами дети.
Школа и центр дневного пребывания района Het Zand в Утрехте
Фотография © Luuk Kramer / предоставлена VenhoevenCS
Школа и центр дневного пребывания района Het Zand в Утрехте
Фотография © Luuk Kramer / предоставлена VenhoevenCS
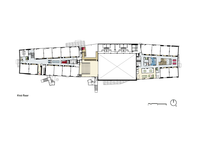
Внутренняя организация здания, напротив, претерпела кардинальные изменения: возможность реконструкции изначально была предусмотрена проектом. В сотрудничеством с самими школами кроме обычных классов архитекторами были разработаны «учебные квадраты», где зоны сосредоточенной учебы сочетаются с игровыми и местами для внеклассных мероприятий. При необходимости такие блоки могут быть расширены или объединены при помощи мобильных перегородок. Одновременно архитекторы предусмотрели много разных уголков для уединения или тихого общения наряду с обширными общественными пространствами, которые дети используют как им хочется. Наполненные светом интерьеры получили экологичную отделку из бамбука.
Школа и центр дневного пребывания района Het Zand в Утрехте
Фотография © Luuk Kramer / предоставлена VenhoevenCS
Школа и центр дневного пребывания района Het Zand в Утрехте
Фотография © Luuk Kramer / предоставлена VenhoevenCS
Значительное внимание уделили инженерным проблемам и энергоэффективности: появились центральная система вентиляции и солнечные батареи, улучшена акустика.
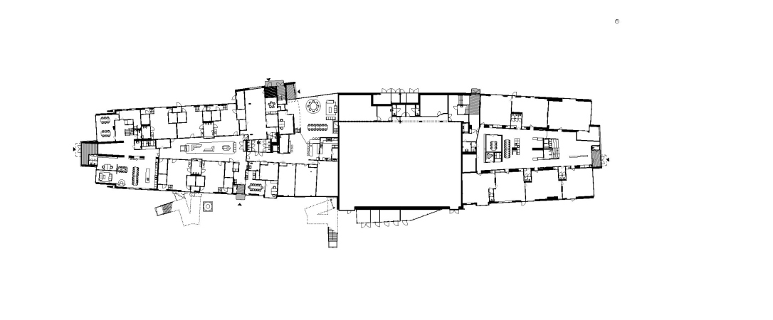
Школа и центр дневного пребывания района Het Zand в Утрехте
© VenhoevenCS
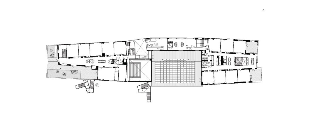
Школа и центр дневного пребывания района Het Zand в Утрехте
© VenhoevenCS
Школа и центр дневного пребывания района Het Zand в Утрехте
© VenhoevenCS
Школа и центр дневного пребывания района Het Zand в Утрехте
© VenhoevenCS
