Офисный центр на улице Шемен-дю-Буа-Арель в Рене
Фотография © Gaëtan Chevrier / предоставлена агентством FE Consulting
Офисный центр на улице Шемен-дю-Буа-Арель в Рене
Фотография © Gaëtan Chevrier / предоставлена агентством FE Consulting
Офисный центр на улице Шемен-дю-Буа-Арель в Рене
Фотография © Gaëtan Chevrier / предоставлена агентством FE Consulting
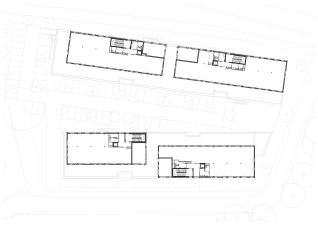
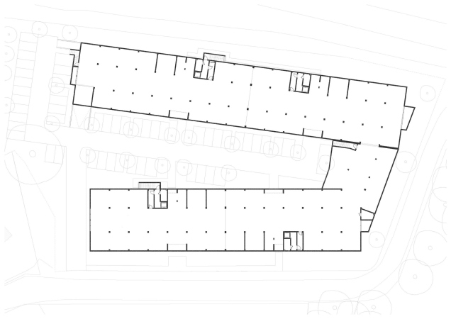
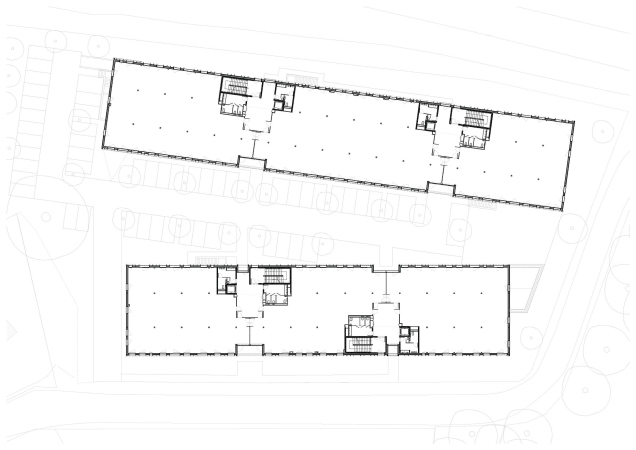
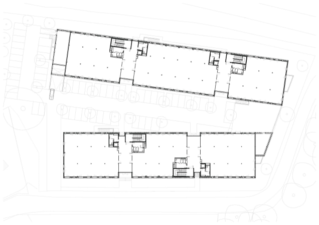
Два трехэтажных вытянутых корпуса поставлены на участке не параллельно, а под заметным углом друг к другу. На верхнем уровне устроены открытые видовые террасы. Общий подземный ярус отдан под автостоянку на 170 машин, на которой также предусмотрены зарядки для электрокаров и места для велосипедов. Дополнительные парковочные места устроены в замощенном пространстве перед и между корпусами. Комплекс изначально строился как экологически безопасный, с низким углеродным следом. Армированный бетон использован минимально: в основании, зонах вертикальной коммуникации и где это было необходимо для обеспечения стабильности конструкций.
Офисный центр на улице Шемен-дю-Буа-Арель в Рене
Фотография © Gaëtan Chevrier / предоставлена агентством FE Consulting
Офисный центр на улице Шемен-дю-Буа-Арель в Рене
Фотография © Gaëtan Chevrier / предоставлена агентством FE Consulting
Но на 80 % здания выстроены из древесины, причем отдельно подчеркивается, что все деревья были выращены и обработаны в полном соответствии с современными экологическими стандартами. Фасады каркасные, перекрытия из поперечно-клееной древесины, дополнительно использованы стальные балки. Все это позволило создать просторные рабочие зоны с высотой потолков 2,7 м, здоровым микроклиматом и комфортной акустикой.
Офисный центр на улице Шемен-дю-Буа-Арель в Рене
Фотография © Gaëtan Chevrier / предоставлена агентством FE Consulting
Во внешней отделке тонированная ель, образующая заметные вертикальные членения, сочетается с деталями из анодированного алюминия. Наконец, отдельные элементы (покрытие кровли, водостоки) оцинкованы. Собственно, эта игра фактур и призвана продемонстрировать одновременную принадлежность сразу двум мирам. Все инженерное оборудование спрятали на кровле, чтобы силуэт оставался «аккуратным», а в мощении использовали керамогранит и водопроницаемый бетон, чтобы дождевая вода не затапливала территорию, а могла проходить в грунт, не повреждая покрытие.
Офисный центр на улице Шемен-дю-Буа-Арель в Рене
Фотография © Gaëtan Chevrier / предоставлена агентством FE Consulting
Офисный центр на улице Шемен-дю-Буа-Арель в Рене
Фотография © Gaëtan Chevrier / предоставлена агентством FE Consulting
Офисный центр на улице Шемен-дю-Буа-Арель в Рене
Фотография © Gaëtan Chevrier / предоставлена агентством FE Consulting
Сами архитекторы говорят, что попробовали отойти от стереотипных представлений об офисных зданиях. Вместо саморепрезентаций архитектурных решений как таковых в ренском проекте на первый план вышли внимание к ландшафту и тесное взаимодействие с ним объемов, а также комфорт, экологичность и удобство использования. В таком подходе, в его человечности они и видят направление для дальнейшего развития.
Офисный центр на улице Шемен-дю-Буа-Арель в Рене
© ALTA Architectes – Urbanistes / предоставлено агентством FE Consulting
Офисный центр на улице Шемен-дю-Буа-Арель в Рене
© ALTA Architectes – Urbanistes / предоставлено агентством FE Consulting
Офисный центр на улице Шемен-дю-Буа-Арель в Рене
© ALTA Architectes – Urbanistes / предоставлено агентством FE Consulting
