Софт дизайн

Студия «Завод 11» разработала интерьер небольшого бабл-кафе Milu в Новосибирске, соединив новосибирский конструктивизм, стилистику азиатской поп-культуры, смелую колористику и арт-объекты. Получилось очень необычное, но очень доброжелательное пространство для молодежи и не только.

mainImg
Архитектор:
Ирина Потапова
Мастерская:
«Завод11» https://www.zavod11.com/
Проект:
Баблти MILU в Новосибирске
Россия, Новосибирск, Красный проспект 49

Авторский коллектив:
Потапова Ирина, Немиров Валерий

5.2024 — 7.2024 / 6.2024 — 10.2024

Заказчик: Егор Красноруцкий, Никита Рыбин, Рамазан Файзиев
От редакции
В постиндустриальную эпоху, после многочисленных социальных и этических пертурбаций, начала складываться новая поведенческая модель, в которой с каждым следующим поколением все активнее формируется запрос на софт-скилз или мягкие, позитивные коммуникационные навыки. Не быть «токсичным» или «душнилой» – это то, без чего сейчас невозможно выстраивать отношения. На место лидерства, настойчивости и навыков выживания у поколения «Х», или сбалансированности и плюс-минус здорового эгоцентризма у миллениалов, пришла потребность в максимальной защите внутреннего мира и комфорта на психологическом уровне у зумеров.

В интернете множество смешных роликов на тему того, как пытаются договориться между собой представители разных поколений, но факт остается фактом – каждое следующее предъявляет свои собственные требования к коммуникации и качеству окружающего пространства. Появляется дизайн, в котором на первый план выходит его мягкость, минимальная агрессивность и позитивность для зрителя и особенно для пользователя.

Если вы не очень ориентируетесь в нюансах актуального дизайна, предлагаем вместе с нами внимательно познакомиться с интерьером бабл-кафе Milu в Новосибирске, разработанным студией «Завод 11» для 23-летних владельцев. Давайте вместе попробуем разобраться, какой коктейль из каких дизайнерских ингредиентов использовали авторы, чтобы создать новую модную точку на карте города, а заодно и заложить основу для оформления будущей сети кафе.
Баблти MILU в Новосибирске
Фотография © Валерий Немиров / предоставлена «Завод11»

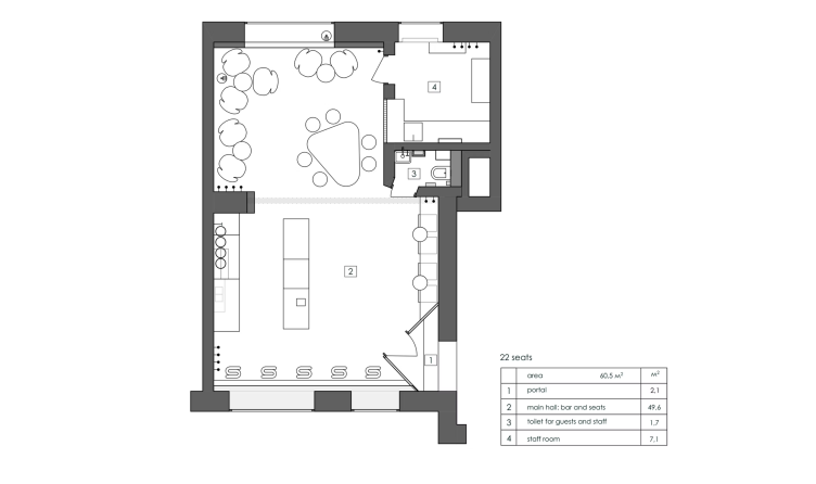
В маленьком помещении площадью всего 60 квадратных метров архитекторы расположили около 20 посадочных мест. Помещение делится на две части – первая представляет собой зал с массивной стойкой бариста. Это место для торопливых посетителей, которым нужно быстро сделать заказ, расплатиться и уже в чуть более спокойном темпе насладиться своим напитком за длинными столиками, выстроившимися вдоль окна, сидя на одном из смешных, похожих на пухлые скрепки, табуретов.
Баблти MILU в Новосибирске
© «Завод11»

Вторая часть помещения предназначена для тех, кто пришел не только выпить авторский чай или кофе, но и потусоваться с друзьями. Тут царят разноформатные столики и стулья, кресла и табуреты. Часть столов компактны и мобильны, а один – как ответ стойке бариста – большой и массивный, уверенно стоящий на трех «слоновьих» ногах.
Баблти MILU в Новосибирске
Фотография © Валерий Немиров / предоставлена «Завод11»

В интерьере царит светло-оливковый, сложно намешанный и очаровательный оттенок. Он обволакивает своей мягкостью посетителя, одинаково неотразимый как в формате крашеных стен, так и, что особенно неожиданно, в виде мелкой квадратной кафельной плитки. Плитка – это последнее, что ожидаешь увидеть в кафе, главная идея которого – создать комфортную и расслабленную атмосферу, а вот пожалуйста. И сразу же белые матовые стеклоблоки кажутся вполне уместным и даже необходимым дополнением.
  • zooming
    1 / 4
    Баблти MILU в Новосибирске
    Фотография © Валерий Немиров / предоставлена «Завод11»
  • zooming
    2 / 4
    Баблти MILU в Новосибирске
    Фотография © Валерий Немиров / предоставлена «Завод11»
  • zooming
    3 / 4
    Баблти MILU в Новосибирске
    Фотография © Валерий Немиров / предоставлена «Завод11»
  • zooming
    4 / 4
    Баблти MILU в Новосибирске
    Фотография © Валерий Немиров / предоставлена «Завод11»

Очень интересно, как дизайнеры вводят в «зеленую» дымку дополнительные цветовые акценты – оранжевый, изумрудный и ярко-синий цвета. Вроде бы должна была возникнуть какофония, но вместо этого возникает немного мультяшный и милый эффект нереальности. Как будто тебя поместили в среду, у которой свои собственные и вполне гармоничные по-своему представления о красоте.

Сами авторы утверждают, что интерьер стал результатом сплава конструктивизма и поп-ап-культуры, но каких-то прямых и очевидных цитат здесь крайне мало, что хочется отметить как позитивное качество дизайна, подтверждающее, что авторы в поисках образа будущего интерьера достаточно глубоко и творчески переработали изначальные референсы, создав свое собственное прочтение актуального дизайна для тех, кто превыше всего ценит мягкость и умную иронию.
  • zooming
    Баблти MILU в Новосибирске
    Фотография © Валерий Немиров / предоставлена «Завод11»
  • zooming
    Баблти MILU в Новосибирске
    Фотография © Валерий Немиров / предоставлена «Завод11»

Описание предоставлено архитекторами
 
Владельцы Milu – молодые друзья из Сибири, которым еще нет 23 лет. Они провели полгода в Китае, вдохновились местной молодежной культурой напитков баблти и решили привезти этот продукт в свой город. До Milu у команды уже был успешный опыт – они развивали продажу мягкого мороженого в регионах Сибири. Этот успех стал импульсом для открытия полноценного кафе с технологичным приготовлением напитков и азиатскими десертами.
Персонаж MILU
Предоставлено «Завод 11»
В процессе работы над проектом команда студии «Завод 11» совмещала ассоциации с продуктом и образом персонажа Milu, разработанного брендинговой командой. Концепт получился чистым, лаконичным и ярким, с прогрессивным и игривым характером, что отразилось в визуальном образе кафе. Также архитекторы учитывали контекст – авангардное здание, комплекс жилищного кооператива «Кузбассуголь» (1931–1933 годы), в котором расположилось кафе.
  • zooming
    Баблти MILU в Новосибирске
    Фотография © Валерий Немиров / предоставлена «Завод11»
  • zooming
    Баблти MILU в Новосибирске
    Фотография © Валерий Немиров / предоставлена «Завод11»

Вход в кафе общий с другими арендаторами, в том числе офисами, и выделен козырьком со ступенями, ведущими вниз. Из тамбура посетители попадают в треугольную входную группу, ведущую вверх. Геометрия зала и сам треугольный вход показались выразительными – они добавляют пространству динамики и задают характер будущего интерьера.
Баблти MILU в Новосибирске
Фотография © Валерий Немиров / предоставлена «Завод11»

Первая часть зала – динамичная посадка для ожидания заказа: гости могут наблюдать за главной улицей, ожидая свой напиток или десерт. Бар выделен в центре, что улучшает логику работы бариста, создавая удобное круговое движение.  Это снижает барьер общения с гостями, подчеркивая дружелюбный характер Milu. Открыв вторую часть зала и заменив окно во двор на панорамное, архитекторы добавили больше света и воздуха в пространство. Этот участок сделали зоной отдыха с креслами и большим коммунальным столом.
  • zooming
    Баблти MILU в Новосибирске
    Фотография © Валерий Немиров / предоставлена «Завод11»
  • zooming
    Баблти MILU в Новосибирске
    Фотография © Валерий Немиров / предоставлена «Завод11»

В интерьере используются арт-объекты: кинетическая скульптура-мобиль с шариками из переработанного пластика, которую под заказ изготовила художница из Москвы. Шарики по концепции совпадают с баблти – так в напитках используются всем известные шарики тапиоки. Также здесь использовали диджитал-арт, что добавляет динамики пространству и отсылает к азиатскому дизайну.
Архитектор:
Ирина Потапова
Мастерская:
«Завод11» https://www.zavod11.com/
Проект:
Баблти MILU в Новосибирске
Россия, Новосибирск, Красный проспект 49

Авторский коллектив:
Потапова Ирина, Немиров Валерий

5.2024 — 7.2024 / 6.2024 — 10.2024

Заказчик: Егор Красноруцкий, Никита Рыбин, Рамазан Файзиев

07 Февраля 2026

Похожие статьи
Зов традиции
Проект современной юрты в Ботаническом саду Алматы казахстанское бюро Cogarts готовило, что называется, для души. Однако в процессе работы подвернулся подходящий конкурс, который способствовал кристаллизации идей. Юрта стала местом для проведения небольших культурных событий и принесла бюро несколько архитектурных премий.
Путь к истокам
Бюро SEEU подошло к проекту реконструкции популярного в Калининграде ресторана «Соль» как к исследованию истории края и поиску в нем ключей к построению гармонии между европейской и азиатской дизайнерской традицией и философией.
Скорлупа под антаблементом
Архитектор Егор Рыбин спроектировал ТРЦ для коттеджного поселка «Боярское» в 30 км от Нижнего Новгорода, прочитав его как парковый павильон. Кирпичные экседры считываются как фрагменты ротонды, а прорастающее сквозь центральную арку дерево символично напоминает о главенстве пейзажа.
Против ветра
Общественно-деловой центр «Графит» построен по проекту бюро FUTURA-ARCHITECTS в новом жилом районе, который развивается за южной границей Санкт-Петербурга, недалеко от Финского залива. Авторы отрефлексировали близость холодного Балтийского моря, придав зданию динамику преодоления и скругленные, словно от ветра и воды, края.
Игра противоположностей
На месте снесенной пожарной части в Ижевске построен жилой комплекс «Монблан». Авторы проекта из бюро «АП-Групп» собрали композицию из двух объемов, соединив классическую сетку одного с деконструктивистской свободой ломаных форм другого.
Вне стресса
DA bureau продолжает ломать стереотипы и задавать новые тренды. В новом медицинском центре, практикующем биохакинг, они материализовали дизайн, который раньше, если где-то и встречался, то в мультфильмах о воображаемых мирах, светлых и настолько умиротворяющих, что не понятно, где проходит граница между сном и анимированной реальностью.
Вторая жизнь гидроузла
Департамент технического заказчика предложил превратить монументальные руины советского гидроузла в Подольске в кластер экстремальных развлечений. Бетонные скелеты плотин в нем становятся объектами скалолазания, страйкбольными декорациями и скейтпарком.
Форма радости
Архитекторы бюро MARAT MAZUR interior design получили необычный заказ – разработать дизайн киоска для продажи мороженого My Gelato в одном из торговых центров, который был бы эффектным, образным, удобным и, самое главное, необычным. И им это удалось.
Орел или решка
Бюро .dpt создало интерьер бара Nightcall в компактном пространстве флигеля усадьбы Закревского-Савина, построенного в XVIII веке. Но вместо исторических аллюзий они попытались преодолеть законы геометрии и ухитрились совместить в одном объеме два очень разных по дизайну пространства: одно спокойное и солидное, второе – ироничное и богемное.
От пещеры до звезды
Концепция бюро Ad Hoc победила в закрытом конкурсе на культурно-рекреационный комплекс для норвежского острова. Ненавязчивыми архитектурными решениями авторы проявили силу места: водопад стал частью входной группы, естественная терраса – платформой для смотровой площадки, закат и звездное небо – украшением интерьеров.
Горный страж
В рамках международного конкурса Артем Агекян разработал проект автономного горного убежища, которое предполагается разместить на высоте около 3000 метров в итальянских Альпах. Форма бивуака учитывает розу ветров и опасность камнепада, градиент цвета делает его одновременно заметным и энергоэффективным.
Карельский разлом
Отель в Карелии, спроектированный архитектурным бюро Chado, вырастает из ландшафта в образе гигантского валуна, расколотого надвое. В центре этой композиции рождается драматичное общественное пространство, напоминающее древнее убежище. Материалом, связывающим рукотворное с природным, становится монолитный бетон, приближенный по оттенку к местным породам.
Все красное
Бюро «Лепо» разработало дизайн для ресторана «ЭНСО», в котором экзотическая кулинарная концепция и нестандартное пространственное решение со входом по стеклянному мосту получили свое логичное завершение в виде ярко-алого интерьера, интригующего и харизматичного.
Кирпичные зубцы
Архитектурный облик ЖК «Всевгород» в Ленобласти (бюро УМБРА) изобилует приемами, в том числе использующими декоративные возможности фибробетонных панелей с фактурой – что делает его интересным опытом в сегменте мало- и среднеэтажного жилья.
Симоновская ветвь
Бюро UTRO вместе с единомышленниками и друзьями подготовило концепцию превращения бывшей железнодорожной ветки на юго-востоке Москвы в линейный парк, который улучшит проницаемость территории и свяжет жилые кварталы с набережной и центром города. Сохранившиеся рельсы превращаются в элементы благоустройства, дождевые сады помогают управлять ливневым стоком, а на безопасные пешеходные и велосипедные маршруты нанизаны площадки для отдыха. Проект некоммерческий и призван привлечь внимание к территории с большим потенциалом.
Чемпионский разряд
Дизайн-бюро «Уголок» посчастливилось вытянуть счастливый билет – проект редчайшей типологии, для которой изначально требуется интерьерный дизайн максимальной степени выразительности и харизматичности. Задача создать киберспортивный клуб Gosu Cyber Lounge – это шанс реализовать свои самые сумасшедшие идеи, и бюро отлично справилось с ней.
Кирпичная вуаль
В проекте клубного дома в Харитоньевском переулке бюро WALL повторили то, что обычно получается при 3D-печати полимерами – в кирпиче: сложную складчатую форму, у которой нет ни одного прямого угла. Кирпич превращается в монументальное «покрывало» с эффектом театрального занавеса. Непонятно, как он на это способен, но в том и состоит интрига и драматургия проекта.
Визуальная чистота
Как повысить популярность медицинской клиники? Квалификацией врачей? Качеством услуг? Любезностью персонала? Да, конечно, именно эти факторы имеют решающее значение, но не только они. Исследования показали, что дизайн имеет огромное значение, особенно если поставить перед собой задачу создать психологически комфортное, снижающее неизбежный стресс пространство, как это сделало бюро MA PROJECT в интерьере офтальмологической клиники Доктора Самойленко.
Конный строй
На территории ВДНХ открылся крытый конноспортивный манеж по проекту мастерской «Проспект» – современное дополнение к историческим павильонам «Коневодство».
Первобытная мощь, или назад в будущее
Говорящее название ресторана «Реликт» вдохновило архитекторов бюро LEFT design на создание необычного интерьера – брутального и немного фантазийного. Представив, как выглядел бы мир спустя годы после исчезновения человечества, они соединили природную эстетику и постапокалиптический дизайн в харизматичный ансамбль.
В ритме Бали
Проектируя балийский отель в районе Бингина, на участке с тиковой рощей и пятиметровыми перепадами, архитекторы Lyvin Properties сохранили и деревья, и природный рельеф. Местные материалы, спокойные и плавные линии, нивелирование границ между домом и садом настраивают на созерцательный отдых и полное погружение в окружающий ландшафт.
Манифест натуральности
Студия Maria-Art создавала интерьер мультибрендового магазина PlePle в Тюмени, отталкиваясь от ассоциаций с итальянской природой и итальянским же чувством красоты: с преобладанием натуральных материалов, особым отношением к естественному свету, сочетанием контрастных фактур и взаимодополняющих оттенков.
Маленький домик, русская печка
DO buro разработало линейку модульных домов, переосмысляя образ традиционной избы без помощи наличников или резных палисадов. Главным акцентом стала печь, а основой модуля – мокрый блок, вокруг которого можно «набирать» помещения, варьируя площадь дома.
Домашние вулканы
В Петропавловске-Камчатском по проекту бюро АТОМ благоустроена территория у стадиона «Спартак»: половина ее отдана спортивным площадкам, вторая – парку, где может провести время горожанин любого возраста. Все зоны соединяет вело-пешеходный каркас, который зимой превращается в лыжню. Еще одна отличительная черт нового пространства – геопластика, которая помогает зонировать территорию и разнообразить ландшафт.
Тактильный пир
Студия дизайна MODGI Group радикально обновила не только интерьер расположенного в самом центре Санкт-Петербурга кафе, входящего в сеть «На парах», но, кажется, перепрограммировала и его концепцию, объединив в одном пространстве все, за что так любят питерские заведения: исторический антураж, стильный дизайн, возможность никуда не бежать и достойную кухню.
Каменный фонарь
В конкурсном проекте православного храма для жилого комплекса в Москве архитекторы бюро М.А.М предлагают открытую городскую версию «монастыря». Монументальные формы растворяются, превращая одноглавый храм в ажурный светильник, а глухие стены «галереи» – в арки-витрины.
Внутренний взор
Для подмосковного поселка с разнохарактерной застройкой бюро ZROBIM architects спроектировало дом, замкнутый на себе: панорамные окна выходят либо на окруженный деревьями пруд, либо в сад внутреннего дворика, а к улице обращены почти полностью глухие стены. Такое решение одновременно создает чувство приватности, проницаемости и обилие естественного света.
Коробка с красками
Бюро New Design разработало интерьер небольшого салона красок в Барнауле с такой изобретательностью и щедростью на идеи, как будто это огромный шоу-рум. Один зал и кабинет превратились в выставку колористических и дизайнерских находок, в которой приятно делать покупки и общаться с коллегами.
Каскад форм
Жилой комплекс «Каскад» в Петрозаводске формирует композиционный центр нового микрорайона и отличается повышенной живописностью. Обилие приемов и цвета при всем разнообразии создает гармоничный образ.
Лепка формы, ракурса и смысла
Для участка в подмосковном коттеджном поселке «Лисичкин лес» бюро Ле Ателье спроектировало дом, который вырос из рельефа, желания сохранить деревья, необходимых планировочных решений, а также поиска экспрессивной формы. Два штукатурных объема брусничного и графитового цвета сплелись в пластическую композицию, которая выглядит эффектно, но уютно, сложно, но не высоколобо.
Технологии и материалы
«Сухой» монтаж: КНАУФ в BelExpo
Минский BelExpo возвели на год раньше плана. Ключевую роль сыграли технологии КНАУФ: в основе конструкций – каркасно-обшивное перекрытие, собранное как конструктор и перекрывающее 6 метров без тяжелой техники, а также системы «потолок под потолком» с плитами КНАУФ-Акустика.
Полы, выращенные бактериями
Нидерландско-американская исследовательская команда представила напольную плитку на основе «биоцемента». Привычный цемент, выполняющий роль вяжущего вещества, авторы заменили на выработанный бактериями известняк. При производстве плитки Mimmik в среду попадает на 60% меньше выбросов – по сравнению с традиционной.
Живой металл
Анодированный алюминий занимает все более заметное место в архитектурных проектах – от жилых комплексов до аэропортов. Его выбирают за выразительный внешний вид и стабильные эксплуатационные характеристики. В России с архитектурным анодированием системно работает завод полного цикла «25 микрон». В статье на примере его технологий и решений разберем, как устроен процесс анодирования и какие свойства делают этот материал востребованным.
Обновленный шоу-рум LUCIDO: рабочая среда для архитектора
Бутик Итальянской Плитки LUCIDO, расположенный в особняке на Пречистенке, завершил реконструкцию. Задача обновления – усилить функциональность пространства как инструмента для профессиональной работы с материалом. В новой экспозиции сделан акцент на навигацию, сценарии освещения и демонстрацию крупных форматов в условиях, приближенных к реальному интерьеру.
Стальное зеркало терруара
Архитектурная мастерская «АКАНТ» превратила здание винодельни в Краснодарском крае в оптическую иллюзию при помощи полированной нержавеющей стали «СуперЗеркало» от компании «Орнамита». Материал позволяет играть со светом и восприятием объемов, снижать теплопоглощение и создавать объекты-магниты, привлекающие яркой образностью, оставаясь при этом практичным и ремонтопригодным решением.
Осознанный выбор
С каждым годом, с каждой новой научной и технологической разработкой и запуском в производство новых полимерных материалов с улучшенными качествами сфера их применения расширяется. О специфике и форматах применения полимерных материалов в современной общественной архитектуре, включая самые сложные и масштабные объекты, такие как стадионы, мы поговорили с заместителем генерального директора по проектированию ПИ «АРЕНА» Алексеем Орловым.
Сёрфборд для жилья
Гавайская архитектурная фирма Hawaii Off-Grid занялась производством строительных блоков из досок для сёрфинга. Разработка призвана побороть проблему нехватки жилья на островах и чрезмерных отходов сёрфинг-индустрии.
Бетон со знаком «минус»
В США разработали заполнитель для бетона с «отрицательным» содержанием углерода. Технология позволяет «запечатывать» CO₂ в минералах и использовать их в качестве заполнителей для бетонных смесей.
Японцы нашли ключ к «зеленому» стеклу из древесины
Исследователи из Университета Осаки разработали технологию получения прозрачной древесины без использования пластиковых компонентов и объяснили физику процесса, открывающую путь к управлению свойствами материала.
​Полимеры: завтрашний день строительства
Современная архитектура движется от статичных форм к адаптивным зданиям. Ключевую роль в этой трансформации играют полимерные материалы: именно они позволяют совершить переход от архитектуры как сборки деталей – к архитектуре как созданию высокоэффективной «оболочки». В статье разбираем ключевые направления – от уже работающих технологий до горизонтов в 5-10 лет.
Земля плюс картон
Австралийские исследователи, вдохновившись землебитной архитектурой, разработали собственный строительный материал. В его основе – традиционный для землебитной технологии грунт и картонные трубы. Углеродный след такого материала в четыре раза «короче», чем след бетона.
Цифровой дозор
Ученые Пермского Политеха автоматизировали оценку безопасности зданий с помощью ИИ. Программное решение для определения технического состояния наружных стен кирпичных зданий анализирует 18 критических параметров, таких как ширина трещин и отклонение от вертикали, и присваивает зданию одну из четырех категорий состояния по ГОСТ.
Палитра возможностей. Часть 2
В каких проектах и почему современные архитекторы используют такой технологичный, экономичный и выразительный материал, как панели поликарбоната? Продолжаем мини-исследование и во второй части обзора анализируем мировой опыт.
Технадзор с дрона
В Детройте для выявления тепловых потерь в зданиях стали использовать беспилотники. Они обнаруживают невидимые человеческому глазу дефекты, определяют степень повреждения и выдают рекомендации по их устранению.
Палитра возможностей
Продолжаем наш специальный проект «От молекулы до здания» и представляем вашему вниманию подборку объектов, построенных по проектам российских архитекторов, в которых нестандартным образом использованы особенности и преимущества поликарбонатов.
Поглотитель CO₂
Немецкие ученые разработали метод вторичной переработки сверхлегкого бетона. Новый материал активно поглощает углекислый газ – до 138 кг CO₂ на тонну – и дает ответ на проблему огромных объемов строительных отходов.
Новая материальность: как полимеры изменили язык...
Текучие фасады, прозрачные оболочки весом в сотни раз меньше стекла, «пассивные дома» – сегодня все это стало возможным благодаря активному применению полимеров. Этим обзором мы открываем спецпроект «От молекулы до здания», где разбираемся, как полимерные композиты, светопрозрачные конструкции и теплоизоляционные системы расширяют возможности проектирования и становятся самостоятельным языком архитектуры.
Юбилейный год РЕХАУ
В этом году компания РЕХАУ отметила две знаковые даты – 30 лет с момента открытия первого представительства в Москве и 20 лет со дня запуска завода в поселке Гжель Московской области. За эти годы компания превратилась в одного из ключевых игроков строительного рынка и лидера оконной отрасли России, предлагая продукцию по трем направлениям: оконные технологии и светопрозрачные конструкции, инженерные системы, а также мебельные решения.
​Формула Real Brick
Минеральная плитка ручной формовки белорусского производителя Real Brick выходит на российский рынок как альтернатива европейской. Технология заводского пропила под системы НВФ позволяет экономить до 40% бюджета проекта на логистике и монтаже.
​Вертикаль, линия, сфера: приемы игровых пространств
В современных ЖК и городских парках детская площадка – все чаще полноценный архитектурный объект. На примерах проектов компании «Новые Горизонты» рассматриваем, какие типологии и приемы позволяют проектировать игровые пространства как доминанты, организующие среду и создающие идентичность места.
Сейчас на главной
Дом-Пингвин
Дом с выгнутым фасадом на Брестской – один из манифестов российского неомодернизма начала 2000-х, скульптура – таком смысле его рассматривает Анатолий Белов, говоря о «разрыве с модернистским каноном и средовым подходом». Не во всем согласны с автором, но взгляд интересный.
Байкальская рекурсия
В Иркутске завершился двадцатый фестиваль «АрхБухта». Темой этого года стала «Рекурсия». В конкурсной программе фестиваля участвовали 23 команды из разных городов России. Победу одержала команда «Футурум» из Иркутска с арт-объектом «Эхо». Рассказываем о проектах-победителях.
Волна и вертикаль
Проект премиального жилого комплекса, разработанный бюро GAFA для участка в Хорошевском районе, реагирует на ограничения – дугу проезда, водоохранную зону реки Ходынки и инсоляционные нормы – изобретательным массингом. Композиция строится на сочетании двух планов: протяженный дом-каре и укрытые за ним три башни создают силуэт и ракурсы, а также семантическую наполненность, которую усиливают фасадные решения. Еще одна особенность – большой приватный двор, дополненный общегородским линейным парком.
Офис на Трубной
Продолжаем публикации проектов Валерия Каняшина. Дом, четверть века назад определенный как «тихий модернизм», в чьей-то памяти таким и остался. По убеждению Анатолия Белова, его главное качество – незаметность. По словам авторам, архитекторов «Остоженки», главную скрипку здесь играет контекст и ландшафт; перепад высот. Но не такой ведь и незаметный, правда?
Оправдание добра, или как не промотать наследство
Книга доктора искусствоведения, академика Марии Нащокиной «Апология наследия» – всеобъемлющий труд, собравший под одной обложкой острые проблемы сохранения наследия в нашей стране и за рубежом. Глубокий научный подход сочетается в ней со смелостью говорить правду, порой нелицеприятную, и предлагать здравые решения. Публикуем рецензию и отрывок из книги.
Первый международный
Этой публикацией начинаем серию текстов, посвященных работам Валерия Каняшина, одного из основателей бюро «Остоженка», недавно ушедшего из жизни. Так получилось, что проекты, к которым он причастен, во многом иллюстрируют наше представление о бюро и его истории. Первый – Международный Московский Банк на Пречистенской набережной.
Звезда Индии
Sanjay Puri Architects построили в индийском Нагпуре офисную башню Stella с необычным многослойным фасадом, рассчитанным на экстремальную жару.
Искушающая нежность
Бюро «Синица» умеет совершать большие и маленькие чудеса, создавая для магазинов не просто интерьеры, а целую философию. Магия дизайна привносит в пространство новую атмосферу и эстетику, а брендам – дает ключ к пониманию своей миссии.
Третий подход к снаряду
Бюро gmp предложило провести Экспо-2035 в Берлине на территории бывшего аэропорта Тегель, который эти архитекторы спроектировали в конце 1960-х.
Правдиво о конкурсе Правды
Конкурс на дизайн внутренних пространств редакционного корпуса газеты «Правда» завершился в феврале. В нем участвовали пять претендентов: GA, AQ, ASADOV Interiors, LeAtelier, Above. Победу одержал проект AQ. В данном случае у нас есть возможность показать комментарии жюри – что очень, очень интересно и познавательно. Спасибо Метрополису за столь детальный отчет о конкурсе, всем бы так.
Между сосен
Публикуем новый кампус Физмат школы Новосибирского государственного университета (НГУ), построенный по проекту AI Studio в Академгородке. Это весьма удачная попытка вписаться в глобальный контекст современного образования, перенеся центр тяжести с фасадов на качество обучающей среды.
«Цветение» по-русски в Поднебесной
В рамках совместного российско-китайского студенческого фестиваля студенты Нижегородского государственного архитектурно-строительного университета посетили китайский город Хефей, где на фестивале деревянной архитектуры воплотили в жизнь три лучших проекта, участвовавших в конкурсе на создание проекта беседки. Показываем проекты победителя и других участников, российских и китайских.
Ячейка и кривуля
Детский сад, построенный по проекту BuroMoscow в столичном ЖК Грин парк, удачно балансирует между языком модернизма и эстетикой сделанного цветными карандашами рисунка. Кубический объем с регулярной фасадной сеткой отсылает к сортеру – развивающей игрушке, помогающей в числе прочего почувствовать форму. Роль объемных фигурок для сортировки играют залы, которые выбиваются из общей матрицы и делают элегантные фасады чуть менее серьезными. Яркий цвет этих залов сообщает нежный рефлекс помещениям холлов и групповых комнат, преимущественно белых. Среди других находок: отсутствие забора, встроенные в фасад скамейки и кадки для цветов, деревянные створки на панорамных окнах.
Между лучшим и нужным. Обзор новых проектов за 9–15...
Припозднились мы слегка с обзором проектов за прошедшую неделю, но зато выходим ведь, да? На сей раз нет «засилья башен», а есть каждой твари по паре, в том числе и творческих высказываний, даже с подвывертом, как то бывает у ряда авторов. Грустные новости – о сносе АТС на Большой Ордынке. Не смогли пойти по пути похожей АТС на Басманной, а ведь могли.
Путь к истокам
Бюро SEEU подошло к проекту реконструкции популярного в Калининграде ресторана «Соль» как к исследованию истории края и поиску в нем ключей к построению гармонии между европейской и азиатской дизайнерской традицией и философией.
Зов традиции
Проект современной юрты в Ботаническом саду Алматы казахстанское бюро Cogarts готовило, что называется, для души. Однако в процессе работы подвернулся подходящий конкурс, который способствовал кристаллизации идей. Юрта стала местом для проведения небольших культурных событий и принесла бюро несколько архитектурных премий.
Павильон грибоводства
Бетонный павильон по проекту OMA для выращивания грибов в арт-кампусе Casa Wabi в Мексике задуман также как инкубатор для общественных связей.
Защита чувств
В Нижнем Новгороде объявили победителей 16 архитектурного рейтинга, который проводится в этом городе, как правило, один раз за два года. Напомним, победителя тут съедают в виде торта, что, с одной стороны, забавно, а с другой – не лишено тонкого смысла. Архитекторы взаправду пугаются прежде чем «разрезать свой объект ножом»! И вот наш небольшой репортаж. В победителях 5 бюро и 7 объектов. В премии впервые появилась номинация. Угадайте, угадайте же, кто у нас «Царь горы»?
Бетонный переплет
Жилая башня 900 Saint-Jacques по проекту Chevalier Morales Architectes взаимодействует со достопримечательностями Монреаля и предлагает альтернативу скучным стеклянным высоткам.
Скорлупа под антаблементом
Архитектор Егор Рыбин спроектировал ТРЦ для коттеджного поселка «Боярское» в 30 км от Нижнего Новгорода, прочитав его как парковый павильон. Кирпичные экседры считываются как фрагменты ротонды, а прорастающее сквозь центральную арку дерево символично напоминает о главенстве пейзажа.
Против ветра
Общественно-деловой центр «Графит» построен по проекту бюро FUTURA-ARCHITECTS в новом жилом районе, который развивается за южной границей Санкт-Петербурга, недалеко от Финского залива. Авторы отрефлексировали близость холодного Балтийского моря, придав зданию динамику преодоления и скругленные, словно от ветра и воды, края.
Следуя за ландшафтом
На черноморском побережье в черте Стамбула строится жилой район Ion Riva. Мастерплан разработан Snøhetta, также в проекте заняты BIG и MVRDV.
Вне стресса
DA bureau продолжает ломать стереотипы и задавать новые тренды. В новом медицинском центре, практикующем биохакинг, они материализовали дизайн, который раньше, если где-то и встречался, то в мультфильмах о воображаемых мирах, светлых и настолько умиротворяющих, что не понятно, где проходит граница между сном и анимированной реальностью.
Игра противоположностей
На месте снесенной пожарной части в Ижевске построен жилой комплекс «Монблан». Авторы проекта из бюро «АП-Групп» собрали композицию из двух объемов, соединив классическую сетку одного с деконструктивистской свободой ломаных форм другого.
Анфилада архетипов
Выставка «Архетипы авангарда» в новом здании Третьяковской галереи предлагает посмотреть на творчество русских художников начала XX века под особым ракурсом: экспозиция проводит параллель между художественной революцией и психоанализом. С помощью 12 архетипов кураторы показывают, что за дерзкими экспериментами Малевича, бунтом Родченко и детской искренностью Пиросмани стоят живые люди с узнаваемыми чертами. Архитектура выставки от бюро ХОРА делает идею осязаемой.
Примечательности в тренде и вне его. Обзор проектов...
На фоне все более отчетливо проявляющихся тенденций к аффектации архитектурного облика большинства новых московских проектов интересно наблюдать размытие понятия авторского почерка, вплоть до полного его исчезновения и попытки некоторых архитекторов отстоять свое право работать в менее техно-эмоциональной манере.
Форма радости
Архитекторы бюро MARAT MAZUR interior design получили необычный заказ – разработать дизайн киоска для продажи мороженого My Gelato в одном из торговых центров, который был бы эффектным, образным, удобным и, самое главное, необычным. И им это удалось.